北美PI设计大奖,一个源自北美的专业奖项,创立于2012年,以促进建筑和室内设计发展为己任,目的在于表彰在建筑和室内设计项目中最佳的原创性、布局、结构、和谐性和概念化的作品。全球有包括墨西哥、加拿大、美国、危地马拉和中国多个国家的设计师参与,是业内公认的盛事。
△点击查看《2022北美PI设计大奖获奖名单》
自大赛举办以来,涌现了许多优秀的设计师和建筑师。下面请欣赏北美PI设计大奖(北美赛区)2022年 WINNER 获奖作品。
▲ 2022 北美PI设计大奖(北美区)
建筑类·独栋住宅建筑 WINNER Arkham Projects
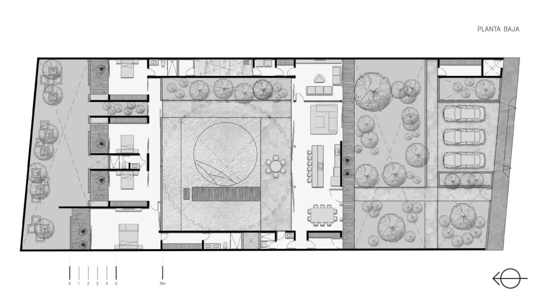
Wóolis受到了工人的洗礼,或者更确切地说是受到工匠的洗礼,他们赋予了建筑空间生命。Wóolis在玛雅人中的含义是球、圆、圈。他们以这种方式命名这座房子,建筑的中央圆柱体是该项目的核心。
Wóolis位于墨西哥尤卡坦州的梅里达市北部,是一个让我们观察和回忆起源的地方。这是一个当代天文台,它使我们发现时间的流逝,太阳光透过圆柱体的上格子,通过一天不同时间绘制在墙上的笔触的改变,跟踪太阳的倾斜角度。
利用地形的朝向,保证光线照射到泳池的中心区域。但由于其巨大的坡度,它在日出和日落期间为空间提供了充足的阴影,从而免除了露台上屋顶的使用,允许在一天中的大部分时间使用屋顶。
它的战略位置就在内部区域旁边,通过滑动门的设计打开所有分开的室内外,实现了两个空间之间的联系。
在内部社交区的另一边是一个带有大型杨树的露台,可以让人们从远处看到圆柱体。Wóolis共有三个露台区域,第一个是开放的公共露台,最后面的则是私密的,其中包括三个十字架;根据三个露台之间的差异,依次囊括服务、公共空间和私人空间。
项目信息
项目名称:Wóolis
主创设计:Arkham Projects
项目地点:墨西哥·梅里达
项目面积:4865 ft²
竣工年份:2021
获奖类别:建筑类·独栋住宅建筑 WINNER
项目平面图
北美PI设计大奖亚太区合作伙伴
本文来自微信公众号“APDC亚太设计中心”(ID:apdcawards)。大作社经授权转载,该文观点仅代表作者本人,大作社平台仅提供信息存储空间服务。










