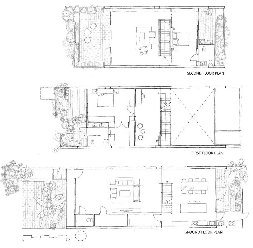
作品集2024-03-12 植物盒住宅 / Formzero " 绿色住宅 建筑师:Formzero 建筑面积:340m² 建成时间:2017 这是为一对热衷于种植食物的退休夫妇设计的住宅,充满植物的植物盒住宅看起来不太明确,因为它的外观像花园、农场或者住宅,期待着重新定义现代热带住宅。 ▲植物盒住宅植物 设计师设计出一种全新的绿色盒子,让房屋的每一层都有40多种可食用植物,与周围的建筑形成强烈的视觉对比。 其凹进的正面为邻里之间的互动提供了额外的公共空间。在边界之外,第一个种植箱是围绕一棵现有的茉莉花树。这个种植园提供城市家具,将这对夫妇和他们的邻居联系起来。 ▲植物盒子住宅中的可食用植物 ▲植物盒子室内 内部空间充满了业主对热带可持续城市社区生活和农业的态度。在打开大门的时候,人们可以体验到光线和流动的风,同时也可以看到整个一楼,因为在前面和后面之间只有玻璃墙和窗户。 建筑被客厅和房子的中央楼梯分隔开,后部是一个双容积的厨房和用餐区,有一扇通高的玻璃窗,可以向外打开,朝向后面的绿墙。 ▲绿墙 ▲绿墙 参考资料: 植物盒住宅 / Formzero | ArchDaily 编辑 夏婉婷 责编 柯思思 本文来自微信公众号“匠山行记”(ID:gh_d836161f0f54)。大作社经授权转载,该文观点仅代表作者本人,大作社平台仅提供信息存储空间服务。 TAGS: 住宅建筑植物 相关文章Kleoniki Andr…这是大王Day.281获奖作品《2020最佳图书…精选头像|搞怪来袭!安东尼奥·布埃诺 作品配色清新梦幻的场景插画,充…美国Jennifer Mc…【小鹏设计】设计小改/动力…【首发】地点空间丨打破空间…谢商家不坑之恩!只骗有钱人…