生白
I
生出光明。
《庄子,人间世》:“瞻彼阕者,虚室生白,吉祥止止。”陆德明释文:“崔云:'白者,日光所照也。'司马云:'室比喻心。心能空虚则纯白独生也。”唐白居易《奉和李大夫题新诗.忘筌亭》:“只开新户牖,不改旧风烟。虚室闲生白,高情淡入玄。”一说,谓产生纯洁的道心。
玄关
I
玄关的动线按照元宝的生活习惯依次是:
鞋柜—防尘区—外套区—挂衣区—试衣镜—香水柜—水吧。
鞋柜—容纳300双鞋,不用把鞋子放到室内。
防尘区—利用地暖层做了5cm落差,刚好可以放包包和随手物品。
外套区—家里所有的外套都挂在这边,出门的时候放和拿都很顺手。
挂衣区—进门挂外套和围巾等的区域,一面墙,可以挂很多。
试衣镜—异形的镜子,刚好嵌入在柜子中间,
香水柜—穿好外套,选一个适合的香水,这个我真的喜欢。
水吧—进门后,刚好方便喝水。
客厅
I
客厅看起来空无一物,实际上整面墙的电视柜,超级能收纳,简单线条感的沙发,慵懒却实用,大幅的装饰画是元宝和设计师沟通好设计后,找专业美院画师定制的,画真的是点精之笔,让空间有了灵动感。
整面的电视墙一直延伸到阳台区,客厅没有设置任何的桌面,这样可以防止随手乱放,层板柜里面放着展示的的可爱小包,而且是封闭式的,赏心悦目又好打理。
餐厅
I
把原先餐厅的墙体进行了延伸,点缀了小型的玻璃砖,看上去很精巧,而且挡住了卫生间的门。
书房
I
书房是从餐厅区域隔出来的一个小部分,但是这个部分对于男主人来说非常重要,因为他需要一个比较独立的空间去工作。
书房的旁边是非常窄的生活阳台。虽然它很窄,但是足够全家人使用。晚上洗完衣服晾干的话,就通过晾衣杆烘干。
主卧
I
看起来平平无奇的主卧室,其实大藏玄机。L型的超大衣柜放下了男主人和女主人所有的衣服,而且都是用的悬挂式的。床的背后一面墙延伸了一部分,后面是一个专门用来储藏行李箱,从正面根本看不出来。
空的小格子是放的最近要用的包包,一目了然,也好搭配衣服。
所有的化妆品全部展示出来,每个小格子都可以用来抽。化妆品既避光,又可以完美展示。
儿童房
I
儿童房两侧都没有用床头柜,开放格给毛绒玩具安了家,又可以展示,拿取也方便。
门旁边的柜子是元宝按照带娃的经验自己设计。我个人觉得呢,也是比较实用的。因为小朋友个子比较矮,最下面的开放区,就是让娃拿平时看的书。大部分的书是放在有门的区域的,元宝能会定期的帮娃进行更新和迭代。上面的书,就是大人拿起来比较顺手的区域。
厨房
I
这个厨房间看似平平无奇,但它真的是所有家庭“煮”妇的一个理想厨房。
柜子里大部分都是用的抽拉装置,不仅方便拿取而且非常好收纳。
左边的墙看起来是墙,但其实已经集合了非常多的功能:零食柜,蒸烤箱,锅具柜都在这边墙上,但是却完全不会有压抑的感觉。
洗手间
I
元宝当时说选房子的时候,挑了卫生间最大的这个户型买的。她的首要需求就是卫生间要足够大。
这个卫生间不仅大,而且储存空间也非常大。镜柜和马桶后面的柜子超级能装。镜柜的开放格子是元宝坚持要这样做的,真的生活经验满满!
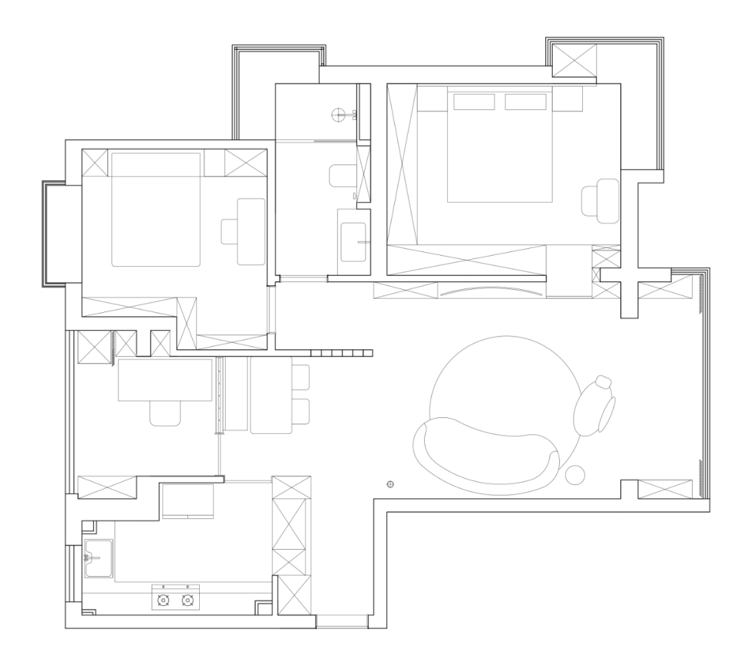
平面图
I
项目地址 | 上海合生江湾公寓
套内面积 | 108㎡
主创设计 | 辛举鹏
设计助理 | 谢宏超
空间摄影 | 陈楠
本文来自微信公众号“辛举鹏设计工作室”(ID:x18221177736)。大作社经授权转载,该文观点仅代表作者本人,大作社平台仅提供信息存储空间服务。










