/只有16套的小公寓,小而美的阳台让外立面更好看

只有16套的小公寓,小而美的阳台让外立面更好看


前言
PREAMBLE

这是最近刚完工的一栋精品住宅楼项目名为「NO.6 SYDNEY STREET」,位于澳大利亚墨尔本市。



该住宅由 V-Leader 开发,建筑和室内邀请了 Wood Marsh Architecture 设计,景观则由 Eckersley Garden Architecture 打造。

 # 建筑设计 # 
整个建筑共 6 层,外观呈现自然流畅的弧形造型,由于住宅楼所处的该场地可以欣赏到 Orrong Romanis Reserve 和 Toorak 公园的壮丽城市景观,以及远处城市还未建成的景观,于是设计师就将这一场景作为设计灵感,运用到了建筑中。

单一的材料做不对称的建筑整体,打造出了富有层次且独特的造型,纯白色调更是将其衬托出一股雕塑感,喇叭形的柱子设计柔化了直线的玻璃床架,使整体看起来更协调。


大面积玻璃墙运用让建筑看起来更加通透,也增加了室内采光,扩大了视野。

入口隐藏在小径的最内侧,在郁郁葱葱的绿植的掩饰下显得不那么起眼。

 # 室内设计 # 

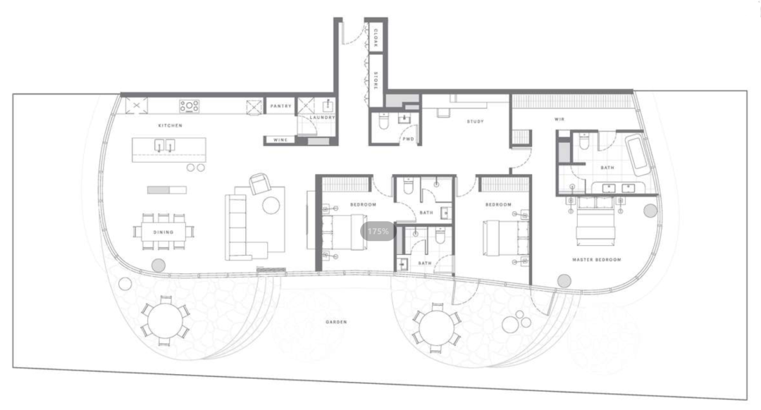
建筑内共 16 个住宅单元,二居室户型面积为 90㎡~95㎡,三居室户型面积为 161~338每个住宅都是独一无二的,拥有不同的光线、视线和露台。


该户型位于建筑二层,是一个三居室的布局,室内选用天然饰面材料,包括石灰华、木材、抛光石膏和天然羊毛等,这些材料的运用为空间注入了精致、优雅的氛围

△户型图

沿着过道往里就是起居空间,最内侧的客厅铺着灰色地毯,周围摆放白、黑色布艺沙发,角落处设有壁炉。


中间黑色子母茶几上摆放着装饰花瓶,同橘色调的沙发抱枕一起为室内增添了色彩与艺术感。

南立面全长的露台与落地玻璃窗,将较低的楼层开放,带来充足的自然光。


露台外种植了大量绿植,营造出自然、透气的视觉吸引力,另一定程度上也起到保护室内隐私的效果。


厨房用天然木材和深灰色大理石做饰面,增添了空间的温馨感与对比感。

较宽的岛台集备菜、洗菜、吧台、隔断于一身,实用性非常强。


在卧室里,柔软的地毯、轻盈的窗帘增添了舒适触感,营造出轻松自在的休息氛围。


床头的艺术挂画,与抱枕花纹呼应,床尾对应的墙面还做了开放式储物格,让电视与艺术摆件都有一个合适安放的去处。


步入式衣柜与卫生间相对▽


卫生间内合理规划了双洗手盆、独立浴室、淋浴间区域,墙面做了两种处理,一半铺贴卡其色马赛克瓷砖,起到防水防潮效果,另一半则是大白墙。

次卧设计营造出了一种简雅大方的氛围感▽

每一间卧室都带有配套的卫生间▽

因为建筑形态的关系,室内每一层每一户所对应的阳台也皆有不同。这是位于较上层的一个三居室户型。

△户型图

客厅正对落地玻璃窗,将视野最大化开放,能看到室外的绿树和蓝天,搭配上简约有型的家具,凸显出别样氛围。

用餐区部分被遮挡,营造出半私密的用餐体验,墙体一端的倒圆与上方深色曲线吊顶设计,呼应了建筑造型。

厨房选用黑白色调搭配,有着浓浓成熟的气息,看起来很有质感,既简约又优雅。


卧室拥有极好的视野,浅色系的空间叠加上一抹深色调点缀,给人带来安定、放松之感。


卫生间墙面采用石灰华马赛克瓷砖包裹,为空间提供细腻的质感,双洗漱台选用黑色大理石与染色木材搭配,形成鲜明的质感对比。

室内效果图▽






//

一起设计新媒体矩阵






将我们设为「星标」才能第一时间收到推送

一起设计官网

点个赞

点在看

本文来自微信公众号“一起设计”(ID:together-design)。大作社经授权转载,该文观点仅代表作者本人,大作社平台仅提供信息存储空间服务。