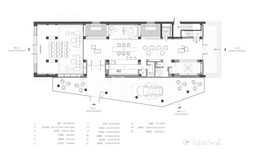
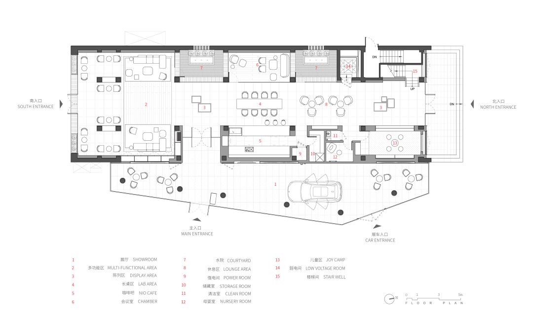
△ 坐落于城市中心的混合建筑体
△ 沿街空间,3个坡屋顶和2个内庭院
△ 改造后的南外立面
△ 新旧共存的建筑外貌
△ 梁柱结构当中的开放布局贯通南北,
提供清晰通透的穿堂视野
△ NIO Café 在车主俱乐部的中心位置
△ 在坡屋顶与天窗下的聚会场所
LUKSTUDIO芝作室由陆颖芝女士于2012年在上海创立,是一支国际化的空间设计团队。团队成员拥有不同的文化与专业背景,因为挑战环境现状的共同愿望而相聚,旨在为每个空间提供有意义的设计解决方案。
我们坚信“万物皆可改变”的理念,积极突破景观、建筑、室内及产品设计的界限。在设计完成一系列商业、文旅、办公及住宅空间后,我们积累了丰富的项目经验,在打造复合型空间方面拥有强大的实力。
我们的设计法则注重于创造以人为本的体验,通过最大限度地挖掘场地潜力,把控商业与艺术的微妙平衡,运用材质与光线完善细节等方式,以最少的干预实现最好的空间效果。
成立至今,芝作室先后荣获A&D Trophy Award、Architizer A+ Awards、Design for Asia Awards、Frame Awards、Hospitality Design Awards、WIN Awards等奖项,获得亚洲及国际权威平台的认可。我们的作品也得到Archdaily、Designboom、Dezeen、Domus、Gooood、有方等专业媒体的广泛报道。
LUKSTUDIO 芝作室 | 水城会客厅 - 南昌首间NIO House
LUKSTUDIO芝作室 | 叠层历险记 - 尼康上海直营店
本文来自微信公众号“Trends Plus”(ID:Trends-Plus)。大作社经授权转载,该文观点仅代表作者本人,大作社平台仅提供信息存储空间服务。










