01
个人简介
平均绩点:3.76/4.0
aps:1.9
offer:亚琛工业大学建筑学课程匹配程度只差6学分(30学分以内被录取)
斯图加特大学建筑学作品集评分16分以上/20分(16以上被录取)
kit和kassel的录取通知书
02
为什么会选择出国?
德国富尔达应用技术大学的一个研究创新中心,Ausfuhr
德国富尔达应用技术大学的一个研究创新中心,Ausfuhr
德国富尔达应用技术大学的一个研究创新中心,Ausfuhr
03
德国研究生与国内的不同
德国这边主要还是以德语授课为主,亚琛工业大学也是标准的授课型硕士教学模式。一般是两年的课程+30学分的本科补课+半年的实习。
亚琛工业大学(RWTH Aachen)在教学方式上和很多地方也有所不同。
• 硕士期间需要报名一些必须参加的必修大课(Vorlesung):例如建筑遗产保护(Denkmalpflege)、建筑理论(Architekturtheorie)、建筑史(Architekturgeschichte)、艺术史(Kunstgeschichte)、建筑法规(Baurecht)。这些必修课一般是以笔试和口试的考试形式结课。
• 在主修上面所提到的这些大课的基础上,每学期还会有大设计(Projekt),选修研讨课(Seminar)以及一些实地调研(Exkursion)。这些课一般是以展示图纸和即兴介绍成果(Präsentation)的考试形式结课的。
•学院下设不同的研究所(Lehrstuhl)。每个研究所都是由教授和助教组成。每个教授的研究方向和领域都不同,因此,每个学期每个研究所都会提供不同主题的大设计(Projekt)和讨论课(Seminar)以及实地调研(Exkursion)。学生可以不受研究所限制以自己的兴趣随意选择大设计以及选修课。
04
作品集及申请经验
•我是在大五的寒假开始做作品集的,耗时一个半月完成。作品集主要以本科的设计课内容为主,在原来设计的基础上,更改了表达的形式和出图的风格。
•德国每个学校申请的时候侧重点是不同的,有的更看重作品集,有的更看重课程匹配度和成绩,有的也会关注你的面试情况。因此,作为过来人,个人建议申请德国学校的时候,最好要亲力亲为,甚至可以diy。这样你会非常清楚的知道每个学校申请的时候,需要特别注意什么。
•德语水平不是申请的关键,但却是留学期间最大的绊脚石!由于专业原因,我们每次上课,都需要不断地和教授沟通自己的设计和想法,但很多时候都会因为语言问题,教授会误解你的想法。这对于我们来说致命的。因此,如果可以的话,一定要在本科期间好好学德语,本科成绩尽量考的高一些。
05
设计过的最满意的作品
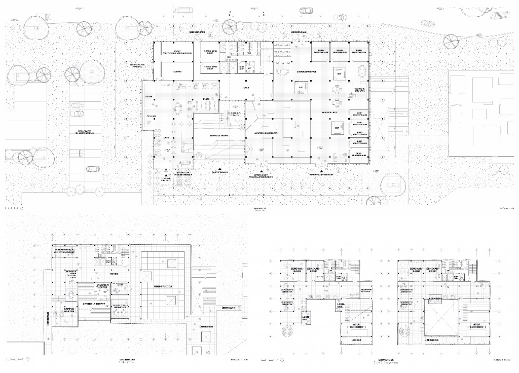
最满意的应该是这个学期刚刚结束的大设计。设计题目是在德国富尔达应用技术大学的一个研究创新中心。第一学期主要以城市设计和案例研究为主,找到设计的切入点,并完善整个地块的运营形式。第二学期主要是以单体建筑设计为主,在城市设计的基础上,细化建筑内部的每一个空间以及材质和构造。简单放几张图吧,详细的设计说明我放在我自己的小红书上了,如果有需要也可以在小红书上搜索Ausfuhr。
德国富尔达应用技术大学的一个研究创新中心,Ausfuhr
德国富尔达应用技术大学的一个研究创新中心,Ausfuhr
德国富尔达应用技术大学的一个研究创新中心,Ausfuhr
德国富尔达应用技术大学的一个研究创新中心,Ausfuhr
德国富尔达应用技术大学的一个研究创新中心,Ausfuhr
往期推荐:
【学校体验】
在英属哥伦比亚大学UBC读(建筑、景观)环境设计专业本科是怎样的体验?
在南加州建筑学院做“Le Musée Imaginaire”Studio是怎样的体验?
在哥伦比亚大学做“Copula Hall ”Studio是怎样的体验?
在米兰理工大学申请到建筑学全额奖学金是怎样的体验?
在UCL的读建筑学Part2 Pre-MArch是怎样的体验?
在UCL建筑学申请到全额奖学金是怎样的体验?
在TUD学房地产管理是怎样的体验?
在TUD学BUILDING TECHNOLOGY是怎样的体验?
在墨尔本大学建筑学院 'The Robotics Lab' Studio是怎样的体验?
【升学经历】
CXA:UCL、NUS、阿尔托、谢菲、爱丁堡part2...建筑offer快被包圆了!
问题贼多的王同学:从双非室内设计专业到全球15爱丁堡大学王牌专业!
LXT&CQY:情侣这么磕就对了! 老四校建筑申城设, 一起拿遍UCL/NUS/UPenn/等offer
FGL:重大学长圆梦NUS!建筑城设混申收获UCL、港大、爱丁堡、米理offer9九宫格!
7:老八校城规质朴星人的offer11选:TUD/UPenn/UCL/CMU/NUS......
靳雪婷:作品集糊了还能收到康奈尔offer ?!极限挑战DDL强势逆转三无背景
YY:北林学姐连获宾大UPenn/TUD/NUS等7张景观offer, 多角度申请TL规划, 必看!!
骆肇阳:拿遍各种奖金的MIT联合培养博士谈建筑带给他的热爱与痛苦
李紫晗:景观转建筑拿下UCB伯克利offer,北林女孩的设计探索之路
黄晶:从IBM裸辞的工作党,跨专业申请建筑,圆梦宾大/密大/华盛顿
杨思敏:环境科学转景观/城规,零基础拿下谢菲/港城市/NCL等offer!
刘昱廷:兼顾学业与申请,同济学姐获梦校米理建筑历史offer终圆满
Harry:工作五年后,我用包含行为艺术的作品集敲响了加拿大顶尖景观院校的大门
Zi Xuan:考研党转战留学无悔,执行力满分斩获六所景观名校offer
Lang:“一张图能说清就别画两张” (囊括欧美英亚名校+奖学金)
Xu:梦圆AAM!斩获瑞士门德里西奥建筑学院/阿尔托大学全奖offer(欧洲名校全开图)
Josery:困难但有意义的攀登(第一封offer就来自伯克利的幸运儿)
L:同济学姐多线程备战拿下哥大/UCLA/TUD/USC等顶尖藤校offer
Feng:人生路美梦似路长,路里风霜风霜扑面干(北工大学子爆肝藤校)
Arain:崇尚快乐申请的规划生 (剑桥MAUS项目成功收入囊中)
TT:离哈佛一步之遥的吉建大学子(数张藤校入场券帮助建立自信)
Hao:申请是个自省的过程 (死线斗士是如何得到Yale的爱的?)
Ivy Zhang:考研or出国?小姐姐坚持自我圆梦世界第一名校
Joe:"出图狂魔" 执着空间逻辑,青理工学长拿下爱大/曼大Part2项目offer
Ming:1/2的转行心 (成功摘得UCB&TUD交互的建筑选手)
Heize:赶图怎能没有女团?(流线式作品获哥大宾大UCL青睐)
Leslie Zhang:看建筑鬼才少年如何从恐怖题材电影中汲取建筑设计的力量
Panni:愿兴致盎然地与世界交手(感谢哈·普·麻·耶的亲睐!)
本文来自微信公众号“UniDesignLab”(ID:UniDesignLab)。大作社经授权转载,该文观点仅代表作者本人,大作社平台仅提供信息存储空间服务。










