20世纪初,爱森斯坦开创蒙太奇电影实践的先河。在其蒙太奇巅峰电影作品《战舰波将金号》中的经典片段“敖德萨阶梯”,平均3秒一个镜头切换的密集节奏,让人在观影中感受到强烈的紧张与压迫。
爱森斯坦执导的电影《战舰波将金号》
点击观看深圳龙华行知中学视频 ©山间影像
人与人之间的交往变革
架空层的设计是这个“哑铃形公共空间模型”的延续,操场的跑道被延伸至架空层,各种类型的户外活动也自然被带进架空层。
巨大而空旷的架空层空间被设计植入的合班教室、微格教室、社团活动室等功能分隔成连续的多个大小不一的多功能空间场域,相互渗透,趣味开放,既是全天候条件的运动空间,又是多样的社团活动和丰富学习探索认知体验的第二课堂空间。
同时,又成为分隔静态私密教学空间和动态公共教学空间的物理分界和管理边界。
“∞”型公共交流环
在主楼的静态教学区,通过置入一个“∞”型的公共交流环立体链接教学区各层的休闲退台,空中平台,半室外阶梯课堂等各类非正式交往空间,为青年学生提供了多元化,个性化的开放交往机会,同时串联起主要的辅助功能教学空间形成全方位泛教育体系。
北侧“∞”型休闲退台 ©吴清山
我们所希望的,是不单以老师或成人的角度设计学校,而是回归以学生为本,以服务教育为理念来设计校园,最终创造开放性、个性化、多元化、多层次的交流空间,营造立体复合共享的校园空间。
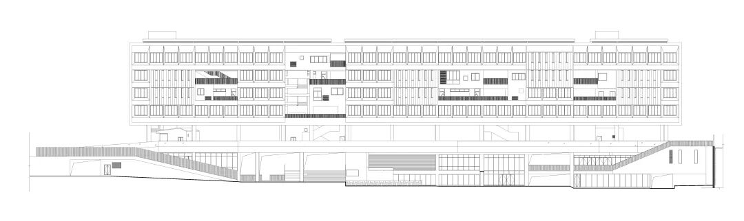
北立面图 ©筑博设计
幕墙设计:深圳市朋格幕墙设计咨询有限公司
建设单位:龙华区政府投资工程前期工作管理中心/龙华区工务署
代建单位:深圳市万科城市建设管理有限公司
本文来自微信公众号“筑博设计”(ID:ZHUBO-DESIGN)。大作社经授权转载,该文观点仅代表作者本人,大作社平台仅提供信息存储空间服务。










