地址:美国 纽约
面积:3,484 平方米
时间:2021年
摄影:James Ewing
Tags:家具/制造,超大空间、开放协作、灵动多元、圆形、工作社区、声学、温暖木色、景观视野、图形设计、时尚办公网
Architecture Research Office设计团队精彩呈现床垫制造商Casper位于美国纽约的办公室。Casper是一家电子商务初创公司,成立于2014年,主要销售助眠产品和电子产品。
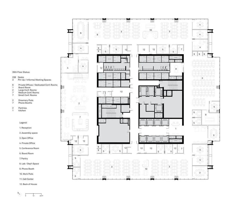
项目位于纽约世界贸易中心三号大楼(Three World Trade Cente)的39层和40层。超大的开放式工作区,其间穿插点缀着各式协作空间——从会议室到电话亭应有尽有。两个楼层都在建筑西侧规划了大而开敞的公共区域,这里享有广阔的城市景观视野和充足的日光,并通过一座木制楼梯上下紧密连接。
设计以部门为单位组建工作“社区”,并沿着建筑外窗布局。设计团队在方形建筑平面的中央核心区巧妙规划环境导向设计:原始的混凝土墙面上绘制的图形标记出东、西方向;而半透明的会议室所在处则代表了南、北方向。较大的会议室位于四个角落布置,以支持就近团队的便利使用。
拱形门洞、柔和的配色、圆润的曲线、以及温暖轻柔的木色,所有的细节设计都旨在将该品牌俏皮梦幻的美学融入到工作场所的设计中。而其卓越的地理位置、开敞的天际线视野,带给人们犹如在云端一般的愉悦体验。
本文来自微信公众号“时尚办公网popoffices”(ID:popoffices)。大作社经授权转载,该文观点仅代表作者本人,大作社平台仅提供信息存储空间服务。










