GOOD CYCLE BUILDING
办公楼改造
△改造前(左)改造后(右)
△非专业员工手涂的墙壁
此外,设计师大胆地组织“业余”的施工人员参与到建设中来,为大楼带来了富有创意的内部空间。该建筑已于2021年9月竣工并投入使用。
01
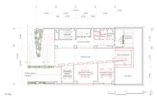
建筑位于日本的名古屋,浅沼株式会社(Asanuma Corporation)是一家总部位于大阪市的综合建筑公司。公司创建于 1892年,以“为人类和地球创造良好的循环”为经营理念。
△改造前的浅沼集团办公楼
此次更新的大楼 GOOD CYCLE BUILDING 作为浅沼名古屋分公司的旗舰楼,有着30年的历史。
△改造后
项目邀请建筑师 川島範久(Norihisa Kawashima)共同参与设计。“阳光、风、泥土、石头、还有动植物等生命,生活在与自然相联系的环境中有助于身心健康和创造力的提高。”他这样描述道。
在改造中,设计师将主立面(西向)的玻璃幕墙向后收进 2.5 m,形成阳台空间。阳台区域填补了办公室缺少的户外休闲空间,同时也优化了通风环境,为室内引入了更多的自然光。
在此之前,玻璃幕墙由于西晒,百叶窗一直拉着,而增加的阳台空间种植有吉野杉等120余种植物,能够有效缓和夏日强烈的阳光。同时,这些土墙花盆内植物能让使用者在工作的同时感受外界的自然属性和城市空间。
另一处明显的改动是立面上新增的一系列圆柱,这些被称为“杉”的柱子来自森林中收集的 130 年树龄原木——纪念公司诞生130周年。值得注意的是,设计师并没有统一各个柱子的粗细,以减少废料的产生。
△工人将木构件吊装至滑槽固定
从底层开始,木柱从大到小以不同的尺寸排列,模仿树木在森林中的自然生长方式,同时最大限度地减少木材开裂的可能性。
△剖面细节
02
△入口大厅
在室内,设计师大量运用了天然的可回收材料来装饰空间,以此建造一座在未来大楼寿命结束时能“回归土壤”的建筑。
他们也确实做到了——接待大厅的墙壁被象征着可持续理念的“土壤”和“树”覆盖。二楼的地板被拆除,以创造一个通高空间。
接待室室一共有三间,“土房”的座椅和沙发由施工剩余的泥土制成。
“木房”的桌椅实际上是建筑立柱加工刨下的雪松树皮及边角材料。
在“高级房间”里,有一张水磨石桌子,由建筑入口处的台阶碎石制成,用石膏固化后打磨平整,造型简约而现代。
接待室之间由隔墙划分,墙砖使用浅沼公司开发的专利天然材料“返土块”。
此外,创新的施工方式也是项目的一大亮点,浅沼公司召集了约 120 名非专业员工,将附近工地上的约 12 吨施工剩余土粉刷在室内的墙壁上,余下的材料还可以再次回收以供使用。
△墙壁上可以看到员工用手指划过的图案
通过让员工参与制造过程,让他们对建筑物产生依恋,如果出现损坏也可以自行修理,并进行维护。通过业余人员而非专业人士的参与,室内的土墙呈现出独特的造型样式。
与周边其他利用现有框架重建新建筑的情况相比,此举让该项目在施工期间减少了约85%的碳排放量,同时,建筑还获得了“ZEB ready”认证,将运营期间的能源消耗降低到原建筑的50%以下。
△号召非专业的员工参与到建设中来
建筑的3至6层是办公空间,经过改造后变得更加通透而温暖,无论是功能上还是视觉上。设计师增大了开窗面积,浅色雪松板的运用以及露台上绿色植物的引入,室内外空间自然浑然一体。
改造前的办公空间▽
贯通的大露台满足了员工的活动休闲需求,设计师还在这里布置了方形的粘土花坛,植物的枝丫向上延伸,形成绿色的遮阳屏障。
会议室位于建筑七层,桌椅等家具大量采用石材、木屑等建筑边角料或回收的涤纶面料制作,以此充分利用资源并强调项目的可持续理念。
△会议室废弃塑料制成的方桌板
△废弃木材制成的圆桌板
8楼的局部屋顶板被拆除,更多的阳光可直接照进室内,设计师在这里创造了一个明亮的活动空间。
从活动活动空间一侧来到室外露台区域,这里布置有大片的草地以及一间鸟居。
为了进一步贯彻绿色可持续的理念,大楼原本的两部电梯减少为一部,作为补偿,设计师对楼梯进行了大幅度的改造,将它设计为“让人想爬的楼梯”。
墙壁上写着邀请人们使用楼梯的文字“这是你身边的运动”。
浅沼组名古屋分店属于中型建筑,这种规模的写字楼在当地拥有大量二手库存,是一个很有前景的市场。对于这栋建筑的可持续性改造,在经过数据上的分析后,未来将很有可能应用于医院和办公建筑以及其他的公共设施。
点个赞
点在看
本文来自微信公众号“一起设计”(ID:together-design)。大作社经授权转载,该文观点仅代表作者本人,大作社平台仅提供信息存储空间服务。










