/一家只做木模板清水混凝土建筑的事务所

一家只做木模板清水混凝土建筑的事务所



 BESONÍAS ALMEIDA

官网:https://barozziveiga.com/b:v


世界建筑事务所专辑 NO.2


BESONIAS ALMEIDA  是一家阿根廷建筑事务所,他们的实践善于运用木模板混凝土这种材料,项目多数为一层的私人住宅和酒店,场地常位于自然环境中。在建筑形式上透露着巴塞罗那展览馆的气质,翻梁的结构让无柱空间成为可能。



BESONÍAS ALMEIDA 是由阿根廷建筑师 María Victoria Besonias 和 Guillermo de Almeida 共同创办的建筑事务所。

MARÍA VICTORIA BESONÍAS 1947 年 10 月 18 日出生于西班牙马德里。她于 1975 年在布宜诺斯艾利斯大学获得建筑和城市主义学位,是布宜诺斯艾利斯大学 FADU 的讲师和 FADEA评审团成员。

GUILLERMO DE ALMEIDA  1945 年 11 月 12 日出生于布宜诺斯艾利斯。他于 1975 年在布宜诺斯艾利斯大学获得建筑和城市规划学位。他在布宜诺斯艾利斯大学和莫龙大学教授建筑学。他是布宜诺斯艾利斯大学建筑学院高级委员会及其陪审团的成员。吉列尔莫是巴西利亚 2006 年双年展的客座讲师。参加了2007年CPAU青年讲师系列、2008年Carlos Paz建筑师

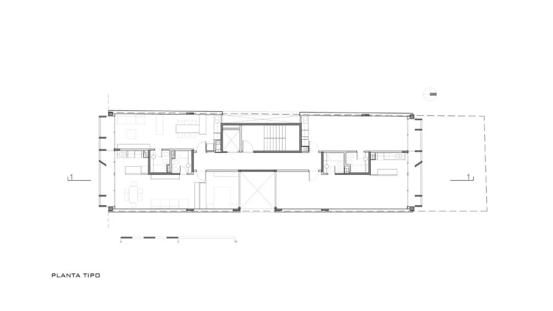
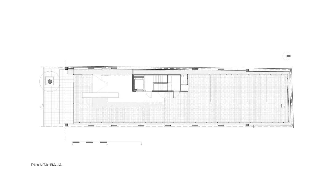
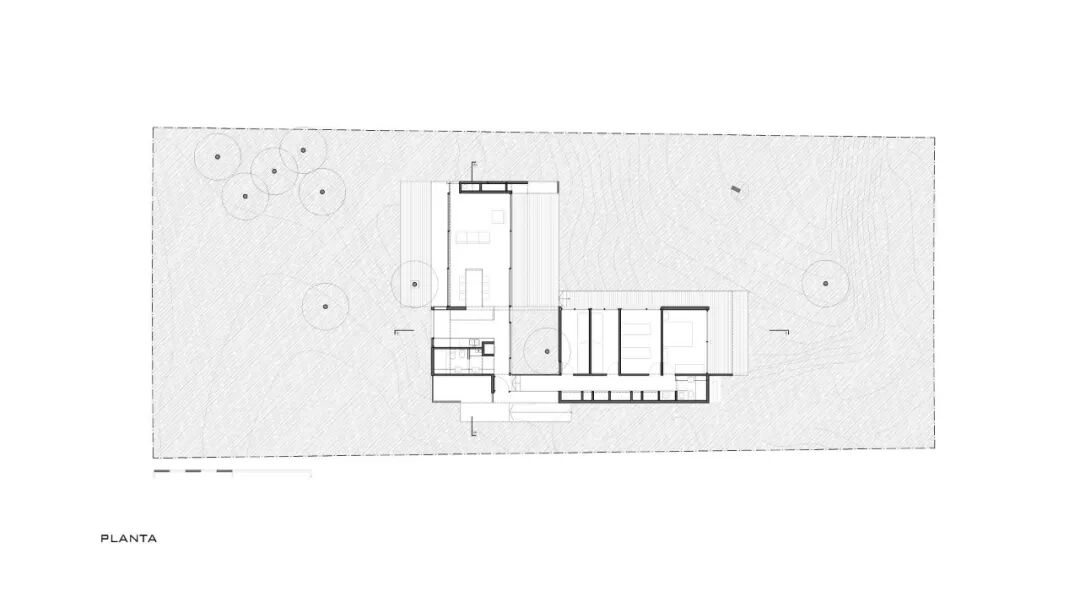
郊 区 别 墅

托 尔 卡 托 之 家

卡拉塞尔之家酒店

波 罗 之 家 酒 店

美 国 大 厦

本篇文章作者

望歸山

排版 | 审稿:望歸山


☝客服小东
找书请加
(48h 内回复







注:

书籍搜集自互联网,我们不会影印和盗版任何资料。资料仅供学习交流使用,如果觉得资料不错请购买正版。



東西小院工作室

◐ 拆书稿 | 闲情杂谈 大房子、小房子 ◑
转载及合作:ZRY517517

本文来自微信公众号“建筑手记”(ID:DongXiXiaoYuanStudio)。大作社经授权转载,该文观点仅代表作者本人,大作社平台仅提供信息存储空间服务。