一对设计师的60平米房子,住出庭院别墅的感觉!
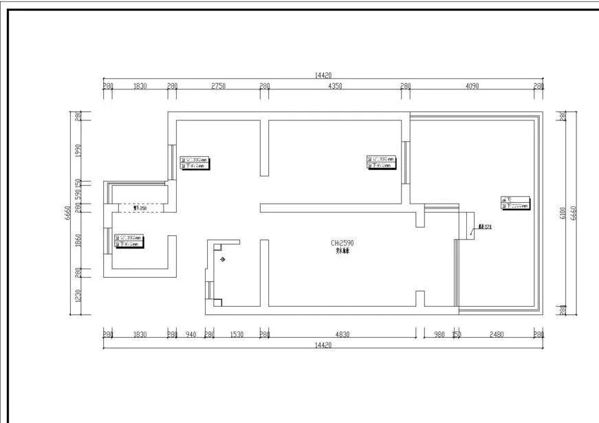
设计师夫妻的家,孩子要上学买的学区房,建筑面积61平,套内面积50平,上海的6层老公房底楼,天井改造成花园
原始户型不是很好,厨房、客厅很小,花园从主卧进入不方便
把原始客厅改成儿童房,主卧改成客厅,从客厅进入花园,动静分离
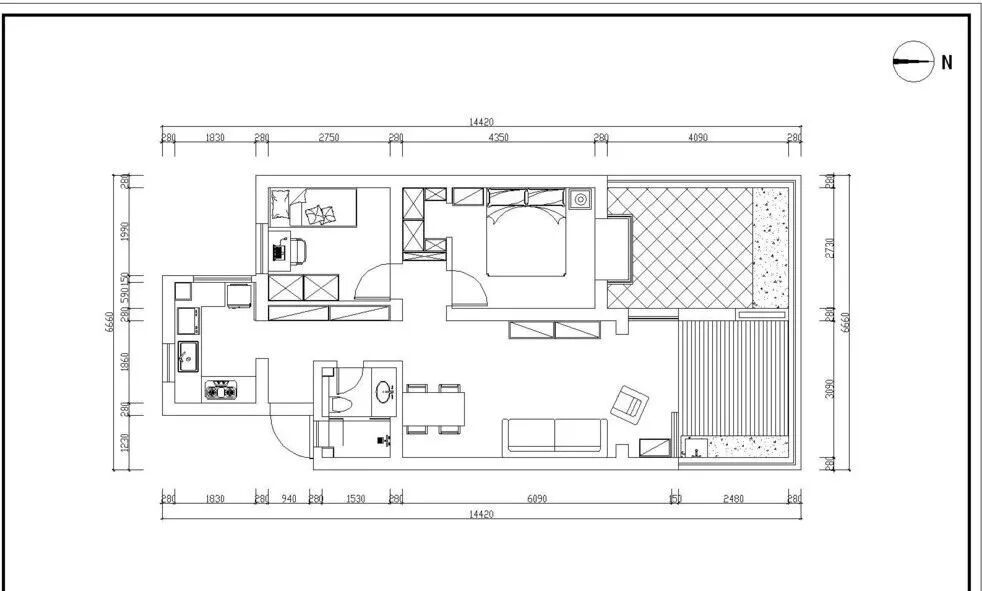
入户的位置,内嵌了一个小鞋柜
进门区域,迎面是一面橘色的黑板墙,上下都做了储物柜,下方储物柜兼具换鞋凳功能,上方可存放换季鞋
进门右边过了过道之后是进入餐厅客厅区域
做了地暖,选了软木地板,采暖效果比较好
餐厅选的实木餐桌,一盏摇臂灯,吃饭的时候可以摇到餐桌上方,平时也可以摇到沙发上方
餐厅还能改造成工作区,照明全部采用点光源,对于层高不高的老房子来说,舍弃吊灯、顶灯是一个比较好的选择
把原本户型超大的卧室打通阳台后改造成餐客厅,和户外花园相连
进门左侧的厨房面积不大,但功能齐全,角落用搁板利用,前面也用挂杆提高空间利用率,美观又实用
小卫生间用浴帘替代隔断,壁挂式马桶,镜柜增加收纳储物
利用过道端景内嵌了一个小型书柜,除了增加储物空间之外,也成了一处风景
简洁的主卧,阳光很好
主卧飘窗外就是天井一角,景色宜人
儿童房位于主卧对面,选用的高低床,上面睡觉,下面活动区
床的楼梯还带抽屉储物
对面是宜家的儿童衣柜
客厅和主卧都用了大面积的玻璃窗,增加采光的同时,也可以随时看到天井花园中的美景
用防腐木分层设计,增加了花园空间的层次感
围墙上装了红外警报装置,出门在外或者晚上的时候打开就行
所有的照片并非是同一时期拍摄的,所以景色以及室内陈设也都会有改变
设计师的理念是不希望装修好是超好的状态,而是住进去之后通过时间慢慢的增加房子的人文气息
这个案例其实以前发过的,只是就像设计师说的,一直在改变,已经和首次发的时候完全变样的,所以说,热爱生活的人,60平米的房子也能住出庭院别墅的感觉
如需学习或设计的朋友,
可加好友注明(报课或设计)联系
一个会画画的设计师
本文来自微信公众号“花园院子”(ID:hyyuanzi)。大作社经授权转载,该文观点仅代表作者本人,大作社平台仅提供信息存储空间服务。










