设计团队:张国梁、万向隆、李文兰
项目团队:吕烨文、戈靖
地址:中国 深圳
使用面积:580 平方米
设计周期:2022.6-2022.7
建设周期:2022.7-2022.9
摄影:.patch Studio
Tags:金融投资,中国、深圳、人文与自然、严谨、活力、舒适
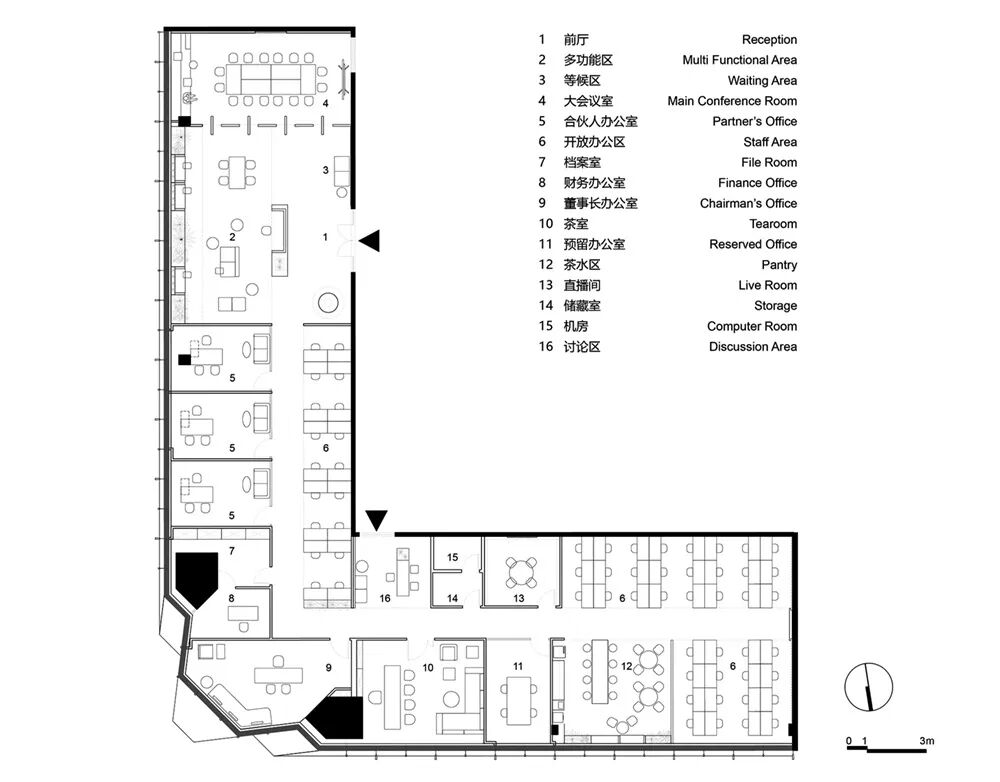
洛克资本是国内知名的新锐投资公司,新总部位于深圳市前海鸿荣源中心。年轻化是洛克资本给设计团队的第一印象。设计师思考如何能在本次的空间设计上打破对于传统金融公司的固化形象,塑造一个能够体现洛克资本气质的办公空间。
设计师希望这个空间既充满人文的严谨,又具备自然的活力;既可以严肃的工作,又可以活泼的玩耍;既可以效率的办公,又可以闲适的休憩,尽可能地模糊掉工作与生活的边界。
— 这是POP君分享的第 53 篇深圳办公空间 —
感谢帕奇设计的分享,图文版权归原作者。
本文来自微信公众号“时尚办公网popoffices”(ID:popoffices)。大作社经授权转载,该文观点仅代表作者本人,大作社平台仅提供信息存储空间服务。










