“空间的一半依赖于设计
另一半则源自于存在与精神”
“Half of space depends on design the other half is derived from presence and spirit.”
——安藤忠雄(Tadao Ando)
-
累了便想起了家,
家里有亲人,有生活,可以疗愈疲惫的灵魂。
家是飞行人的港湾,
Flying people drift around, running day and night,
When you are tired, you think of your home,
There are loved ones and life at home, which can heal the tired soul.
The home is the pilot's harbor,
After the rest, set sail ...
一方水土养育一方人,
受江南水乡文化的熏陶,
设计之初,
我们希望未来不管房子形式走向何方,
The house designed this time is located on the side of Yangzhou Slim Lake.
One side of the soil and water raising one person,
Fived from the culture of Jiangnan Water Village,
At the beginning of design,
We hope that no matter where the house forms in the future,
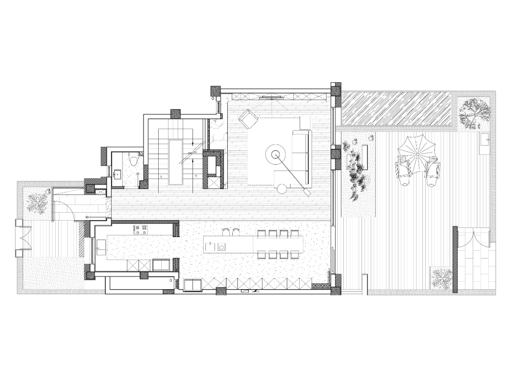
客厅双主墙的考虑方便在起居
和会客之间自由切换;
岛台与餐桌一体化,
We hope to be free and diverse in public space,
The consideration of the main wall of the living room is convenient to start living
Switch freely with the guests;
Island platform and dining table are integrated,
将顶、墙、柜、岛台形体体块化,
Originally, the visual presentation of the space tended to flatter,
The shape of the top, wall, cabinet, and islands,
在客厅顶上遗留了一根横梁,
我们以浪花推进为原型,
由餐厅至客厅创造出一个流型的顶面,
Due to the misalignment of the new function area and the original function area,
A beam left on the top of the living room,
We are promoted by waves as the prototype,
From the restaurant to the living room to create a stream top surface,
恰如其分的诠释温润如玉却又热情似火。
The collision between shallow walnut and stone, glass and metal,
楼梯是空间中的重要构件,
都增加了行走的乐趣。
The stairs are an important component in space,
It interrupted and continued in other functional areas,
Whether it is the catalytic of light and shadow,
Or the event that happened in the space,
我们在材质选择上尽可能的避免了布料,
The owner's child is easy to be allergic,
We avoid the fabric as much as possible in the selection of materials,
-
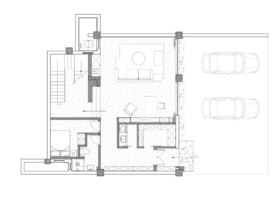
FLOOR PLAN
平面方案 / DESIGN FLAT PLAN
项目名称:飞行人的港湾
项目类型:私宅
项目地址:江苏 • 扬州 • 万科第五园
项目面积:450m²
设计单位:一野设计
设计主创:朱震熙
摄影:徐义稳空间摄影
-
朱震熙
一野设计 | 首席设计师
苏州一野室内设计工程有限公司 创立于2006年,是一家专门从事室内环境设计公司。十二年来,凭借一批高水准的设计师,以良好的服务独特的经营理念,在苏州及周边地区,乃至长三角地区室内设计行业中赢得了很高的知名度和美誉度。一野设计专注于为追求高品质室内设计的客户服务,我们力求设计科学与视觉艺术的完美结合,倡导高品质的生活方式。
新作×远校设计 | 至简承载 • 流光印迹
首发 | TATIANA ALENINA • 纯净的静谧
INDULGE IN GLOBAL AESTHETICS AND DEVELOP DESIGN THINKING
本文来自微信公众号“美集志”(ID:MJZ-DESIGN)。大作社经授权转载,该文观点仅代表作者本人,大作社平台仅提供信息存储空间服务。










