从消费物品到消费体验,品牌“场景化”被更广泛地运用,80%以上的线下消费者为空间付费,品牌通过对消费环境的提升与创新营造来吸引消费者,丰富消费体验,打造流量胜地,为品牌增值。从商业综合体花样百出的场景化体验升级,到各类消费品牌的现象级设计出圈,设计带动品牌玩转消费体验升级。
咖啡店也纷纷玩出了场景设计新高度,消费的不是咖啡,而是体验 —— 喝一杯咖啡的时间,品一场设计。
成都 宽窄巷子% Arabica咖啡店 |
设计:B.L.U.E.建筑设计事务所
项目场地是一间传统的川西民居,位于在井巷子中段的一个小广场旁边。宅院共一进,有两侧厢房和正房。南侧和西侧是两个传统的木构门头,分别面向井巷子和广场。古建筑青砖黛瓦,古朴素雅,满是成都的记忆。很多原住民仍然生活在井巷子周边,这里仍有着地道老成都的生活状态。
项目所在地:四川省成都市
项目类型:店铺
建筑师:⻘山周平,藤井洋子,刘凌子,邹德静,川岛雅矢 / B.L.U.E.建 筑设计事务所
照明设计:B.L.U.E.建筑设计事务所
业主:% Arabica
用地面积:320m² 总建筑面积:270m²
设计周期:01. 2020 – 05. 2020
施工周期:05. 2020 – 08. 2020
摄影师:夏至
韩国 首尔咖啡厅益善洞分店 |
设计:LABOTORY
Seoul Coffee 力求创造一种八九十年代首尔的怀旧氛围。设计的重点在于使用过去保留下来的物件,而不是用全新的东西来复刻那个年代。但仅仅凭借老旧是不足以保证其使用的,设计需要各种各样的传统元素,哪怕是新的。设计团队拆除现有的墙,还换掉了天花板,引入阳光照亮室内空间,同时保留了可以用作庭院功能的空间。材料上选择过去使用的材料,例如过去用作磨石的花岗岩,碎石用于模糊地面和外部的界限,这些都是韩村新旧融合的元素。
项目地点:韩国首尔
韩国 EYST 1779 Café |
设计:T-FP
位于庆州校洞韩屋村入口处的唯一历史建筑被改造成咖啡馆。在尊重该地区的历史和文化背景的同时,设计团队希望这个项目成为连接过去和未来的象征。长期以来,砖是最常用的材料之一,将来还会使用很长时间,因此 EYST1779以砖为一个概念关键点。
越南 风与巢穴September咖啡店 |
设计:Red5studio
September是一个咖啡品牌,Red5工作室在其推出第一家咖啡店时便参与了设计。在第二家店铺中,设计师带来了“风与巢穴”的故事,以延续之前“秋与落叶”的主题。贯穿天花板、墙面和地面的弧线是风的象征,在空间中创造了一种轻盈的感觉,就像微风吹过每个角落。
项目地点:越南 西贡 HCMC第4区 Vinh Hoi 街47-49号
设计与建造:Red5studio+Ben Decor
客户:西贡 September咖啡店
合作伙伴:Ben Decor, A Thông, Zero Furniture, Jati Tile, Nhật Phương
Concept: Lại Chính Trực
概念设计:Lại Chính Trực
设计团队:Lại Chính Trực, Nguyễn Vịnh Nhi, Trần Thị Kim Duyên, Phạm Hoàng Duy Nhân
面积:260平方米
图片摄影:Phú Đào
广州 Vista 主题咖啡店 |
设计:Karvone Design
设计给人们在空间中的体验带来了全新的轻盈感和想象力。空间中的艺术造型装置由白色金属网格搭建,装置本身如一件建筑作品,打造出一个独立的主题梦幻空间。渐变玻璃也进一步强化了空间的梦幻感,并且扩展了视觉上的空间。辅以主题观赏绿植,在城市中创造了一个超现实主义的白色花园。
室内设计: Karvone Design
面积 : 945 m²
项目年份 : 2020
摄影师 :King Ou, Jimmy He
主创建筑师 : Kyle Chan
设计团队 : Jimmy He, Yujie Peng, Amber Ho, Reeta Wu, Kennys Zeng, Derrick Liang, Edwiin Ng
品牌顾问 : Sophie Shu, Larrissa Yan, Florine Jin
客户 : Fuzhou Vanke
泰国 布恩玛咖啡店 |
设计:Sher Maker
项目与一片巨大的私人森林和无序的自然景观融为一体。通过创造出一个完整的弯曲窗帘轨道的形式来创建一个可以反射的圆。所有内部氛围的布置主要是为了给建筑物内部的人最好的视野,使他们可以从外部露台看到树木和景观。
韩国 波奥克咖啡馆 |
景观设计:lab D+H 首尔工作室
首层采用开放式架空结构,空间通透,将周边风景融合引入,形成优雅的自然框景。天井庭院辅以白桦、苔藓、置石营造自然小景,形成最佳打卡点。户外客厅以开枝较高的橡树林提供荫庇,沙地与小径营造放松野趣。
完成年份:2021
项目面积:1,243 m2
项目地点:韩国抱川
设计公司:lab D+H 首尔工作室
主创设计师:沈宝园, 崔荣埈
设计团队:沈宝园, 崔荣埈, 崔炳吉, 赵在衍
客户:波奥克咖啡馆
合作方:Spacemaker A1(施工单位), SN Architecture(建筑单位)
印度尼西亚 Tanatap环形花园咖啡厅 |
设计:RAD+ar
项目的核心理念是“嬉戏共处”,设计团队希望打造出令人耳目一新的、充满活力的、可持续发展的城市空间。在上层,整个环形花园可以看作是城市与景观之间的过渡。项目利用场地高差形成别具趣味的多层次小森林,优雅的环形场地,围合之下层层露台错落相连,不断向下形成更加安静的下沉空间,被葱茏的植被覆盖,营造大自然中充满层次感的社交休憩空间。 功能齐全的综合咖啡店隐藏在这花园与森林之下。玻璃砖模糊了室内外空间,保护内部隐私的同时透过充足的自然光。
Office Name: RAD+ar
Social Media Accounts: @radarchitects
Firm Location: Jakarta, Indonesia
Completion Year: 2021
Gross Built Area (m2/ ft2): 750m2
Project Location: Jakarta, Indonesia
Lead Architects: Antonius Richard Rusli
Other Designer: Felda Zakri, Partogi Pandiangan, Leviandri
Photo Credits: KIE , Mario Wibowo
韩国 Glin Park |
成都 源野% Arabica咖啡店 |
设计:ARCHIEE
来自日本的咖啡品牌“% Arabica”,以极简的店铺为全世界提供高品质咖啡。源野店的设计需要融合法国、日本和中国文化,店铺的活跃氛围以巴黎咖啡文化为灵感,空间是对中国园林的诠释与解读,结构设计则基于日本设计的细节感。隧道形式还通过顾客在室内外的流动创造独特的空间,从而使店铺和庭院之间产生连续感。
项目名称:%Arabica coffee(REGULAR源野店)
设计公司:ARCHIEE
主创设计:Yusuke Kinoshita
结构设计:Takuya Imai
空间主材:钢板、油性石膏漆、人造石、白色乳胶漆、玻璃
摄影版权:Kobe
项目客户:%Arabica coffee
韩国 全州云朵咖啡馆CUUN |
设计:Design Studio Maoom
马来西亚 BAKER NEXT DOOR |
广州 东风广场store by .jpg |
设计:5+2.studio
项目名称:store by .jpg广州东风广场店室内设计
项目面积:约80㎡
项目地点: | 广东省广州市越秀区
设计公司:5+2.studio
设计总监:易永强
设计主创:黄竞、卢瑞琳
设计团队:钟南、熊焕玲、李紫玲
拍摄后期:广州山人文化发展有限公司
日本 广岛宇品咖啡馆 |
设计:IGArchitects
该咖啡厅坐落于海岸。设计要求是要能从客座上眺望大海,以及室内能栽下一棵大树。玻璃的开放感让食客得以在自然中享受美食,而内部的植物则营造出一种内外空间的延续。多片楼板作为人的屋顶、树木的屋顶,构成了大小不一的空间。天花板仿佛想要接近外部空间一般下坠,又仿佛要远离室外外部空间一般上扬。与此同时,内外空间被反转,跟着楼板的层叠,创造出人工与自然中间、内与外中间的各种“中间空间”,形成层层渐变的环境。
建筑师: IGArchitects
面积 : 56 m²
项目年份 : 2020
摄影师 :Toshiyuki Yano
厂家 : ATOM LIVINTECH, AutoDesk, ModuleX, Panasonic, RELINCE, Sanwa, Trimble Navigation
主创建筑师 : IGArchitects, Masato Igarashi
设计团队 : IGArchitects
客户 : Mayumi Yamada
结构 : Yousuke Misaki EQSD
MEPF : Noriko Ito ZO Consulting Engineers
景观设计 : Yuuta Itagaki Solso
灯光设计 : Eri Nagao ModuleX Incorporated
厨房设计 : Hironobu Hosoda Maruzen
百慕大咖啡厅及餐厅 |
设计:STUDIÉ
使用红砖或彩绘砖,以三角形的建筑外观形成视觉亮点。建筑并非直直地与道路相对,而是与道路形成 45 度夹角,使行人从道路上看到的三角形建筑具有不同的构图,形成不一样的感受。
建筑设计: STUDIE
面积: 500 m²
项目年份: 2021
摄影师: Mario Wibowo, Andhy Prayitno
厂家: American Standard, Daikin, In-Lite
主创建筑师:Ivan Eldo
责任建筑师:Ilham Sulthony
韩国 LEEDO SAU咖啡厅 |
设计:ATMOROUND
“顾客购买咖啡,就是购买他们花在咖啡上的时间。”在这个概念上,项目希望为顾客提供一段独特的时间体验。建筑为一个简洁的金属正方体,安静而神秘的形态,粗糙与精细质感的对比,共同塑造了极简现代而充满情节感的建筑外观。走进入口便呈现一个中庭,让空间更具向心力。林木间萦绕的雾气模糊边界,让事物看上去更加简略写意,更能帮助人们专注于自己的内心。植物与天空随时间和季节变化形成不同的景象,暗示着生命的不断循环。
Architecture Firm: ATMOROUND
Completion Year: 2020
Gross Built Area: 296m2
Project location: 4-8, geumnammyeon hwang-yongli, Sejong Metropolitan Autonomous City, South Korea
Video credits: Park woo-jin
Lead Architects: ATMOROUND
Design Team: ATMOROUND
Clients: LEEDO coffee
Engineering: ATMOROUND
Landscape: Anmadang the lab
嘉兴 梦桃文创濮院店 |
设计:陈卓军
“回归到自然中去。”是本次设计的中心主题。自然,它象征着年轻以及旺盛的生命力;通过“制造热带”让渴望自然、向往户外的消费者能在有限的空间中感受生命。通过占据整体空间三分之一的绿植去强化空间,以不同种类的植物去表明生态的多样性,并搭配火山石以及树皮营造出一个小型的植物生态系统。精心构建的景观类型体现了植物群落相互依存的关系,以大量群落植物为人们营造出一种具有“原始安全感”的空间氛围感,并打造出“被空间所包裹,被植物所包裹”的沉浸式体验,从而以场景去模拟人们在自然中自由惬意的时刻。
项目类型:休闲娱乐 餐厅 餐吧 咖啡厅
设计方:陈卓军(独立设计师)
项目设计:2021.12 完成年份:2022.08
项目地址:嘉兴桐乡市工贸大道1998号13F
建筑面积:1000㎡
摄影版权:光圈漫游映画
施工单位:杭州典昌装饰
照明设计:杭州力诚照明
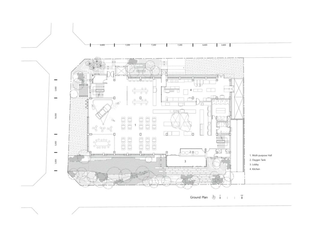
韩国 首尔坎通咖啡厅 |
设计:California Design Lab + S.E.E.D haus
坎通咖啡厅位于首尔江南区的狎鸥亭,是首尔最具城市气息的地方,该设计是将当地一座长期空置的旧建筑,改造为文化空间,考虑如何在老建筑、孤立的空间与城市之间建立新的关系。这是与当今城市文脉的碰撞,也是最大程度地在消除过去与现在之间的隔阂。通过展示出城市中让人不熟悉一面,定然会激起人们的兴奋感和期望。一座原始的花园被摆放在建筑的外部,仿佛它本来就在那里一样。原始花园体现的是对这座城市中那些消失的花园的回忆。室内设计中最关键的要素,是“将氧气持续输送到建筑内的管道系统”,这也是一种将人们与城市和日常生活隔离开来、从而给人们带来完全不同的情感的工具。
北京 首钢星巴克咖啡冬奥园区店 |
设计:筑境设计
对工业遗存现场以适应性更新策略展开的思考催生了北京首钢星巴克咖啡冬奥园区店。法除尘器八个干法除尘罐体和七层检修平台间形成了强烈蒙德里安线条和色彩构成的“七横八纵”式的构图,具有很强的工业美学特征。从城市服务职能的空间设定角度看,它应该成为一个聚会、交往和休憩的空间,咖啡店似乎是契合度最高的功能植入选择。
建筑师: 筑境设计; 筑境设计
面积 : 378 m²
项目年份 : 2017
摄影师 :黄临海, 筑境设计
景观设计 : 易兰(北京)规划设计股份有限公司
.END.
*部分文字来自设计单位项目推文,仅用于交流学习。
- 编辑/看见景观 -
本文来自微信公众号“景观设计小学徒”(ID:laxxt2013)。大作社经授权转载,该文观点仅代表作者本人,大作社平台仅提供信息存储空间服务。










