1
Background
项目背景
品类分析 西昌人的夜生活便是从烧烤开始的。西昌烧烤,绝对算得上西昌的最佳美食,从火盆烧烤,到传统小签烤串,再到大竹签火盆烧烤,每一种烤法都是西昌最具特色的美食。
案名分析 何为五样儿?醉虾、烤河虾、烤牛筋、烤鱼片以及烤粉肠。
产品卖点 为最大程度保持菜品口感,烧烤都是采用传统生烤工艺,即生品直烤。烤串每天新鲜采购,保证了菜品的原汁原味,鲜香可口。不用专程跑西昌,就能吃到最有特色的本土美食,鲜香嘎嘣脆的烤河虾、满口爆汁的烤牛筋、鲜嫩爽口的烤鱼片和外脆内糯的烤粉肠。鲜虾和酒的完美搭配,令人食欲满满。
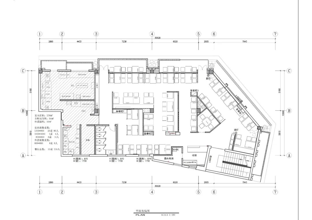
2
3D模型图▽
充满交通街道氛围的有趣环境,空间中融入了街头元素,年轻人可以在这样一个“放松”的场景中更加自由的释放和社交。
门头处于一个十字路口的交叉处,又是在街道的二楼,其展示面非常的好,在设计上我们用大面积的橙色冲孔板把整个门头串联在一起,同时又打造了充满街景的小场景,在此基础上,采用暖色的金黄光来营造温暖舒适的就餐氛围。
整个平面和空间都是围绕的复古街道走街串巷的场景来表达,走入大门就是一个十字交接的三叉路口,两侧的就餐区域就像坐在路边的小摊位,过道就像置身于人行道中,收银台则是街边的小卖部,靠近街边则真的是一个内外穿梭的小阳台,可以在阳台上吹着微风,看人来人往,尽收人间美景。
空间中还融入了复古元素,小推车备餐柜,街道的围栏,小商铺两侧的雨棚,街边昏暗的路灯、公路的十字路牌,都在描述着一个市井,充满烟火气的就餐环境。
五样儿川式烤串 | 2022
空间设计 | 蔡蔡
本文来自微信公众号“禾树设计”(ID:HESHU-186)。大作社经授权转载,该文观点仅代表作者本人,大作社平台仅提供信息存储空间服务。










