/武汉高合旗舰体验中心 — 未来宇宙穿越之径|INGROUP

武汉高合旗舰体验中心 — 未来宇宙穿越之径|INGROUP


*感谢INGROUP对OffsetDesign设计偏移的分享*
PROJECT BY:

INGROUP

LOCATION: 

Wuhan, China


INGROUP为高合HiPhi打造的武汉旗舰体验中心位于天地壹方北馆首层,地理位置优越,与项目周边中高端家庭消费群体定位高度契合。凭借对客户品牌定位与理念的充分理解以及INGROUP二十年的商业零售设计经验,INGROUP将品牌理念中的高度融合又合而不同的哲学理念融入到空间的设计中,作为新世代的高端纯电品牌,空间也延续了高合品牌中包容与发展并存的哲学。

©YUAN STUDIO

©YUAN STUDIO
©YUAN STUDIO
空间灵感:Future²

在未来的未来,人类可以自由穿行宇宙,而天际线就是连接宇宙与地球的“时空隧道”, 悬于穹顶的天际线将现实与未来折叠,原点即为现实,而那些目所不及之处被定义为破晓者们的Future²——未来的未来。

空间概念手绘 ©INGROUP

天际线下的黑白世界:现实与未来

由代表陆地最强的HiPhi X、来自未来宇宙的HiPhi Z以及天际线Y组成整体空间的三个轴线相互交织,天际线下分割出代表时尚的酷黑空间展示HiPhi X,与银白色代表未来数字生命的GT-HiPhi Z展区,结合如银河般的超大LED曲面屏,带来震撼的未来科技场景感受。


天际线分割出黑白两个不同的物种世界 ©YUAN STUDIO
©YUAN STUDIO

时尚HiPhi X展区 ©YUAN STUDIO
©YUAN STUDIO

未来数字科技的HiPhi Z展区 ©YUAN STUDIO

HiPhi Z ©HiPhi

畅想未来:飞船舷窗

在天际线的中间,极具科幻感的月球墙构建了整个体验中心的接待和社交空间,可以在这里畅谈未来。月球型屏幕像飞船舷窗嵌入墙面,放眼望去仿佛置身于太空中,日升月落尽收眼底。


接待区灵感 ©INGROUP



©YUAN STUDIO


空间的流动感 ©YUAN STUDIO



©YUAN STUDIO

实用选配区

在天际线的尾端,亚克力材质撑起的中岛台以及背面选配墙的三角形简洁线条,呈现了空间的未来主义感,与内饰、外饰和轮毂实物的科技感相呼应。

选配区设计来源于宇宙概念  ©INGROUP


©YUAN STUDIO

选配墙的三角形线条延续空间流动感 ©YUAN STUDIO

©YUAN STUDIO


科技感选配区 ©YUAN STUDIO

数字化体验策略

以“人的体验”为核心,整合体验式设计理念,建立注重人与人之间的互动感官情感和展览空间。空间中运用数字化表现手法增加多样性互动体验,如LED屏幕可以切换不同的场景,让人更真切地感受到产品的应用场景。同时结合产品及品牌宣传策略,满足场地的多种功能需求。


©YUAN STUDIO

空间与产品的交互 ©YUAN STUDIO

开放空间结合LED曲面屏展示  ©YUAN STUDIO

空间与人的互动  ©YUAN STUDIO

©YUAN STUDIO

次入口空间 ©YUAN STUDIO

©YUAN STUDIO

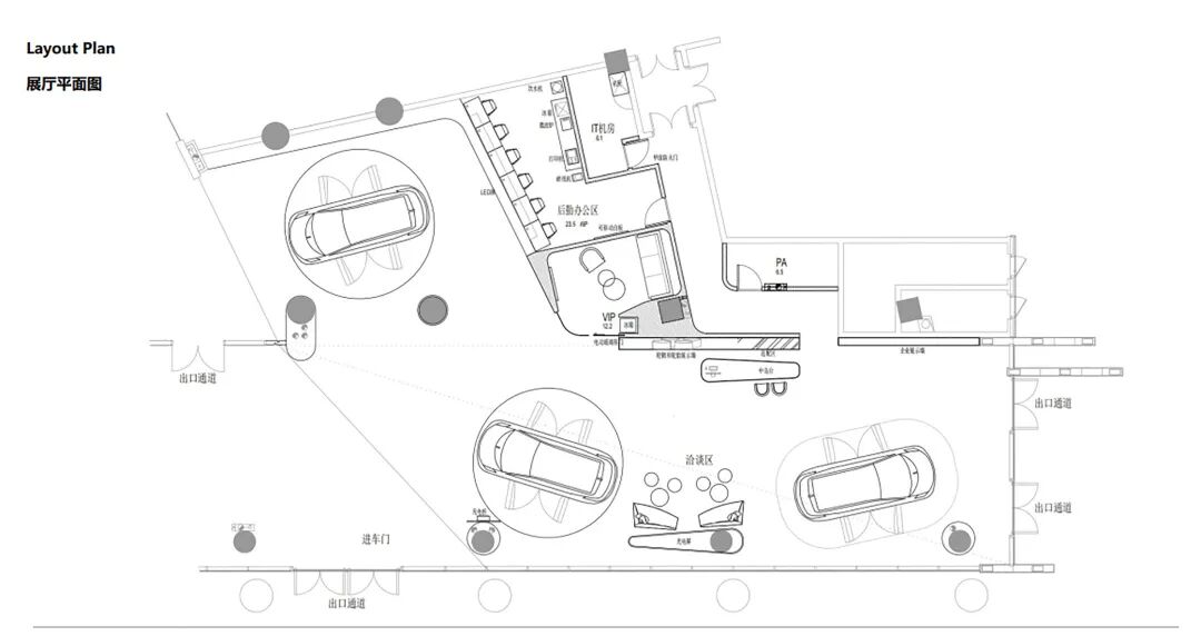
▼  项目图纸

©INGROUP

项目类别:零售空间

建成时间:2022.09

建筑面积:360㎡

内设计:INGROUP

设计团队:Raven Wang、林虹辰、李鹏、李丹

项目地址:中国,武汉

目业主:高合汽车 HiPhi

项目图片:YUAN STUDIO


▼ 公司简介


INGROUP团队简介


魔都最”IN”设计厂牌——INGROUP,2004年成立于上海,20年专注商业空间设计,拥有跨界多元的优秀设计团队和前沿国际化的创新视野,是国内最具创新实力的商业设计公司之一。以空间设计为核心,对接体验经济时代的新消费人群,探索商业设计的趣味性,以独特的策略帮助品牌唤新,打造有趣有型有意义的新消费体验场景。围绕:品牌年轻化,建店数字化,⼯程装配化的三维⼀体核⼼战略,为企业提供从品牌定位,原创设计,数字化全国展店,及⼯程优化的全维度解决⽅案。



为众多国际知名品牌提供多元化跨界设计服务如极氪、JEEP、高合、兰博基尼,McDonald’s、喜茶、太二、Tissot、百威、迪桑特、adidas、Reebok、丝芙兰等,作品荣获中国金外滩设计奖,法国巴黎DNA设计奖,美国缪斯设计大奖,LEED全球节能环保设计金奖等众多殊荣。




▼  往期推荐

奥地利采尔湖之家 — 将复杂丢弃在阿尔卑斯山|Steiner Architecture
武汉好利来概念店 — 在流动形体的渐境中玩味甜品美学|SLT
成都 WEZO HOTEL — 打造都市社交精品酒店|惟道创意
谷Cereal Whisky Bar — 山谷庇护中,放下伪装与疲惫|HOOOLDESIGN
澳大利亚 Heathpool 住宅 — 极致的纹理与细节|Proske Architects


本文由OffsetDesign设计偏移原创/编辑内容
未经授权,严禁转载
欢迎给OffsetDesign设计偏移分享、点赞、在看
你的喜爱是我们的动力!谢谢!
▼  更多精彩内容

本文来自微信公众号“OffsetDesign设计偏移”(ID:offsetdesign)。大作社经授权转载,该文观点仅代表作者本人,大作社平台仅提供信息存储空间服务。