设计不是一种技能,
而是捕捉事物本质的感觉能力和洞察能力。
——原研哉,《设计中的设计》
项目名称 / 万科五龙山九墅
地点 / 四川 成都 新都
Location / Scihuan Chengdu Xindu
项目面积 / 285㎡
Area / 285㎡
设计时间 / 2019年12月
Design Period / December 2019
设计事务所 / 维度设计
Design Studio / Dimension Design
设计师 / Jarrell Zhang
Designer / Jarrell Zhang
项目背景
住宅作为人们安居乐业的立足点,承载着人们日益丰盈的物质生活和精神诉求。而设计师对于住宅的营造也浓缩了人们对理想生活状态的愿景。
本项目是位于成都市新都区万科五龙山九墅的清水复式别墅。作为一对90后新婚夫妇的业主,想要将该房作为婚房进行设计装修,同时还要男主人的父母和爷爷奶奶四位长辈的日常起居。此外,男方家也有两位已婚的姐姐偶尔回来拜访暂住。
家人常在,四季相伴,一家人其乐融融的场景是业主向往已久的生活状态。
在装修风格上以女主人的意见为主。由于其个人首套房装修是以大面积木饰面为主材的装修风格,因此该套房女主人提出的要求是尽量减少木饰面的使用,更倾向于墙布、涂料、金属和不锈钢等材料,偏向于意式轻奢风。
施工现场实拍
功能布局
别墅一共三层,设计师将下两层作为静区(起居空间),上层作为动区(休闲空间)。
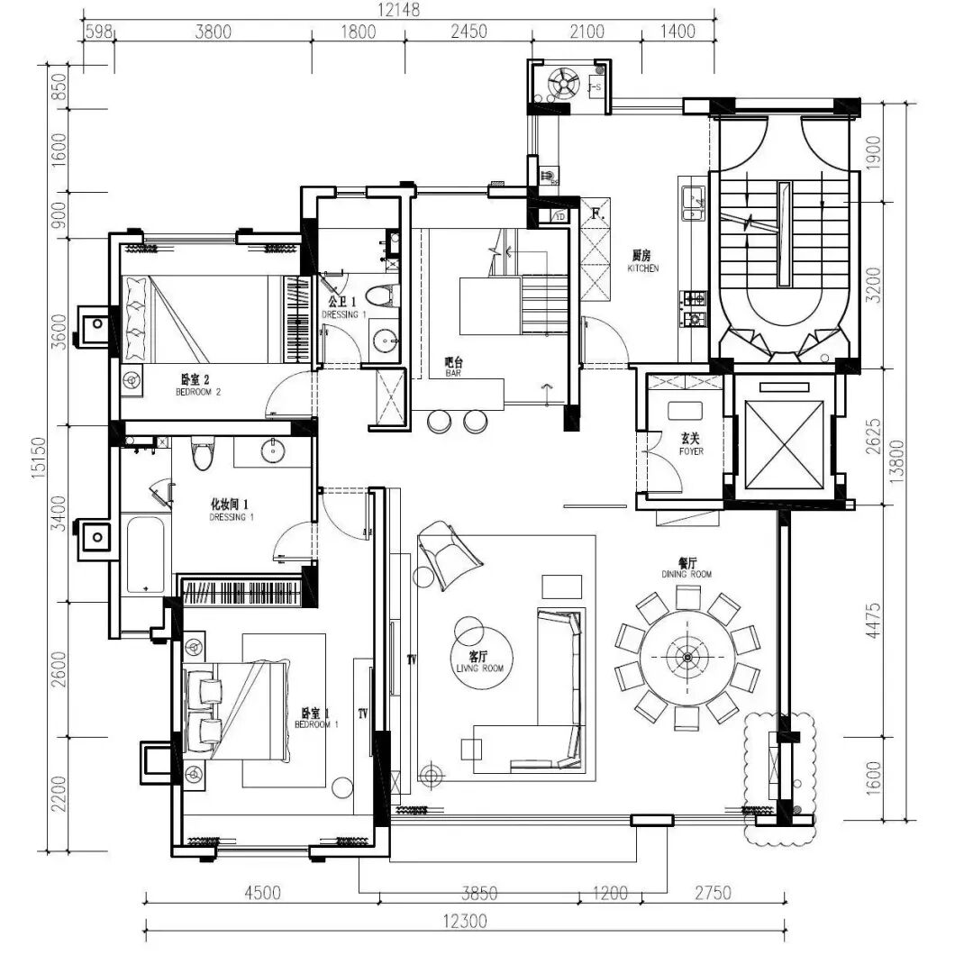
01. 首层客餐厅
▬
一层是客餐厅、厨房带两间卧室。原户型的客餐厅是一个横厅设计,同时带一个小型窄长的外阳台。为了从视觉上增强客餐厅的空间感,同时扩大客餐厅的使用面积,设计师拆掉了原阳台的落地推拉门,并将原先的开放式阳台做了封窗处理,这样阳台就能纳入使用面积,也能将自然光线引入室内,让空间变得通透。
外阳台拆除工作
在住宅的首层有两间房,设计师将其作为男主人父母卧室和爷爷奶奶的老人房。通常来说,避免动线的复杂是老人房的首选,一楼空间方便长辈的日常起居,减少走动的次数,以及方便买菜、做饭、看电视等事宜。
在一层到二层到楼梯处,设计师利用楼梯下方的空间做了一个红酒吧台兼早餐台,满足屋主休闲小聚的需求。也通过过渡的手法营造出循序渐进、张弛自如的感觉。
设计前后对比
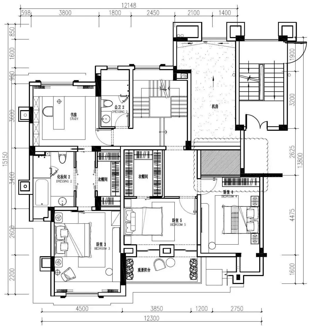
02. 二层主卧
▬
卧室应该是人们回家之后最让人放松的空间,功能性和舒适性是最关键的。
二层原有的空间布局是两个分开的卧室带一个露台,设计师将两个卧室及中间的主卫连通,形成一个大套房,并加入了书房和独立衣帽间,可以作为屋主人的婚房使用。同时将原来的二层露台改成两个客卧,方便男主人两位姐姐回家探望。
大面积的墙面留白和温润的木饰面拼接形成了简练的对比,格调素雅,营造出温暖、自然、舒适的空间感受。
主卧方案效果图
03.屋顶花园
▬
三楼是由屋顶搭建的阳光房、娱乐室、棋牌室,在这里还可以体验沉浸式的观影。与自然亲密融合的同时,也在家人的谈笑风生中呼应着慢生活的点滴温柔。
生活态度丰盈了,思想也会充实起来。
SU效果图
设计理念
瑞士建筑大师彼得卒姆托(Peter Zumthor)在《思考建筑》中诠释:
“好的设计的感染力在于我们本身以及对情感世界和理性世界的认知能力。好的设计给人以美感,好的建筑设计是深思熟虑的。”
01. 选材&配色
▬
大理石、乳胶漆、扪布
室内墙面的装饰以白色为主,朴质无华的大理石白电视机墙面沉稳内敛,光滑的涂胶漆天花板和大面积的肌理感素色扪布三者有序配合,从坚硬向柔软过度,有着丰富的交错层次和干练的块面关系。
大理石、夹丝玻璃、不锈钢
客厅地面是大面积的灰色带花纹的大理石地板砖,温熙的底色潜藏着一种闲情逸致,也诠释出家的自在与归宿。
位于玄关处的通高布纹夹丝玻璃屏风与空间形成有机碰撞,并将空间的层次进行了拓展,夹丝玻璃若隐若现的特质让简约时尚中又带有一丝朦胧的韵味。
意式轻奢感的深色磨砂不锈钢金属元素起着局部点缀的作用,主要运用在吧台、楼梯扶手、墙面细节线条的勾勒以及电视机壁龛收口处,凸显灵动层次。
木饰面、亚麻布、皮革
木饰面的运用应业主要求在空间中不占主导地位,而是在局部出现,强化空间的变化感,如电视柜和酒柜。
在软装布置上,客餐厅占据面积较大的沙发和餐桌也起到了画龙点睛的作用。建议采用皮质和布艺搭配的沙发以及深色石材圆桌,圆桌自古以来就有着团圆的寓意。
同时,哑光和亮面的材质错落交替,细腻的色泽变化丰富了空间的肌理脉络。
原始平面图
构思手稿图
平面布置图
首层空间
First Floor
二层空间
Second Floor
撰文、编辑|Lexi WANG
图片|维度设计、Pinterest
本文来自微信公众号“维度设计 Dimension Design”作者:Lexi Wang(ID:Dimension2021)。大作社经授权转载,该文观点仅代表作者本人,大作社平台仅提供信息存储空间服务。










