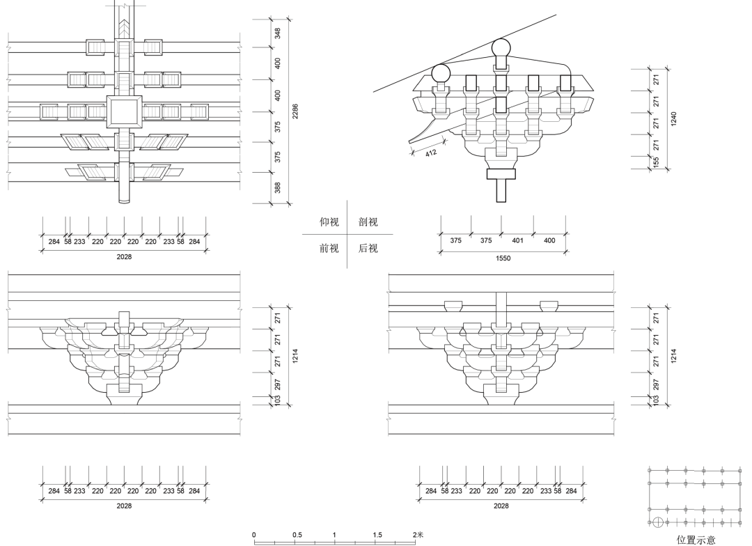
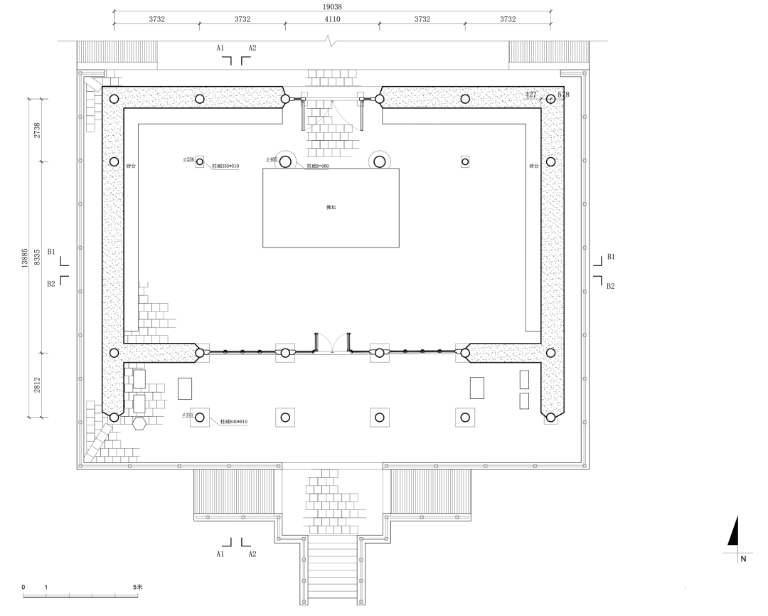
2021 年6 月底,清华大学建筑学院于山西柳林香严寺展开了为期一周的测绘课程。本次测绘由刘畅担任指导教师,赵寿堂、迟雅元、侯欣江担任助教,测绘方式以手工测量和摄影测量为主。潘恒言、何谐、兰煐棋、朱珍妮等23 名本科生分为四组,完成了山门、大雄殿、慈氏殿、毗卢殿四座建筑的测绘工作。其中,大雄殿测图由何谐、闭楚苗、袁子凌、陈筱儒、芶静怡、徐世祺、侯悦欣绘制,赵寿堂整理完成。
相关阅读
2022年第1期
点击图片 直达购刊
2022年全年征订
点击图片 直达订阅
本文来自微信公众号“建筑史学刊”(ID:archhistory-journal)。大作社经授权转载,该文观点仅代表作者本人,大作社平台仅提供信息存储空间服务。










