/唐忠汉新作 / 顾家家居总部定制研发大楼

唐忠汉新作 / 顾家家居总部定制研发大楼


添加小编微信号:  tototo02   解更多前沿设计资讯

▲近期新书推荐《卡洛斯卡帕:超越物质》 
   
   
   
   



一旦问题被捕捉到
事情就开始运转了
——斯卡帕



斯卡帕的建筑空间是一种自由精神的体验,亦是一场自然艺术的旅行。几何形体的构成,让人仿佛置身于自然当中,如涓涓细流般微妙地与心灵触碰,人们的记忆和情感得到释放。





探索空间无限的精神体验


设计师运用理性与艺术相结合的手法,营造极具场域精神的空间感受。第一层次以切入建筑的方式,把自然引入室内,模糊空间中的里外界限。第二层次运用合理的动线,以及动线和局部空间的联动关系,营造移步换景的氛围。第三层次是注重细部设计和工艺,打造舒适宜人的尺度感和质感。


空间构成分析图





窗边的风景


空间与艺术相结合,相互对望。设计师将雕塑的概念运用到空间的设计语言中,艺术作为人与空间的媒介,成为连接彼此灵魂的精神导索。



△雕塑般的阶梯组合分析图



设计师在不断探讨生活真正的需求中,淬炼出最精简的空间本质。窗边雕塑般的台阶,一处一景,让生活的空间充满更多的可能性。





自然共鸣


设计师在中空区域运用仿生学设计抽象提纯,重色阶梯漫步于空中,光影交错,变化丰富。从而把自然与建筑形态引入到接待大厅。



自然光柔和地铺洒在建筑块体丰富的肌理表面,形成强烈的节奏感。空间在整体柔和的基调上,跟随着光影的线条进行延展,同时营造出具有现代极简和未来消隐的不同感受,极具“城市山谷”的气场,幽静深远。





隐秘的空间张力


空间借由形体、线条、色彩的形式组合来表现,添一分则累赘,少一分则寡淡,恰到好处地表现出空间的视觉张力。



大自然赋予万物的形体、累积而来的生活方式,皆在不同程度上丰富了建筑的内涵,挣脱了人与自然之间的界定,传递出更多关于未来的想象。

设计师希望以隐秘的轴线关系,结合品牌风格,表现出现代极简的空间感受。透过不同的材质和色彩,表现出空间的情感,自然、清晰地交叠出舒适的生活方式。创造出和谐的空间比例,形塑出空间的艺术精神!


在不同的空间场景中,设计师利用线条、框架等设计元素来表达空间的内在精神。金属格屏自然肌理、铁板材质的优雅姿态,以及特殊涂料的运用,在光线的投射下营造出层层的阴影,一幅唯美、静谧的画面顿时浮现于眼前。




情感回归


一切材质的表达,空间形态的构成,灯光的运用,最终都要回归到空间情感的传递。空间情感是更真实的存在,它脱离了时空的维度;空间情感是终极目标,是生活原始状态的回归。





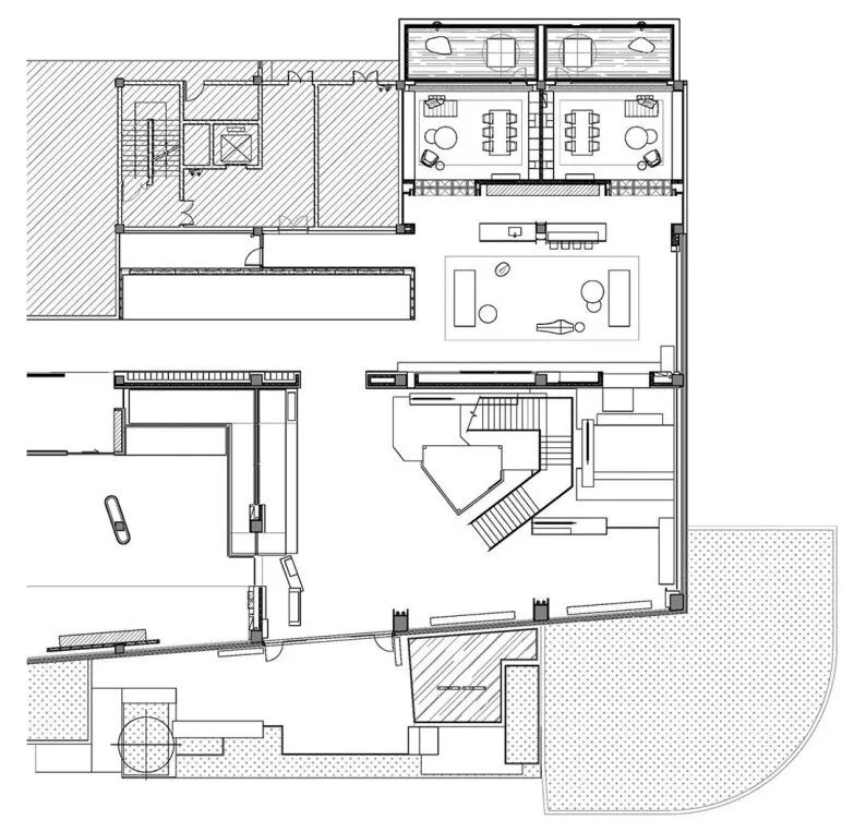
△平面图



项目名称 | 顾家定制研发大楼

项目地址 | 中国 杭州

设计公司 | 近境制作

设计总监 | 唐忠汉

项目业主 | 顾家家居股份有限公司

甲方团队 | 王海涛 陈丹

建筑面积 | 1500㎡

完成时间 | 2022年

项目摄影 | 李标视觉艺术




  DESIGNER  



唐忠汉 Tang,Chung-Han

近境制作设计有限公司 设计总监

远域生活(深圳)设计有限公司 设计总监

    严谨的标准工学 创造舒适的人性空间
    以室内建筑的概念
    流动的空气 过滤的光线 宁静的音律 宜人的温度
    相对於环境 形塑出诗意的空间

他被称为“台式风格”设计的代表人物,台湾新生代设计界的领军人物。16年来致力于追求回归空间本质的优秀室内设计,创作来自于“人 ”,从室内建筑理念出发 ,主题概念与空间陈述为辅佐,讲求非表面铺陈 ,而是内在美学展演,突显新生代生活态度。 

他透过室内建筑的方式,体验空间、光影、材质、细节,试图透过以人为本的思考,探索现代东方的住宅方式,回归真实的需要。提升心理仪式性的转换,让住宅不仅是满足基本的需求,而是到达体验的感受,让我们所看到的不仅是设计,而是对于生活的深刻体会。


  得奖纪录  

2020
荣获 TID台湾室内设计奖 居住空间奖/单层,复层|实品屋|样品屋|商业空间类|零售空间
荣获 美国国际设计奖
荣获 IDA国际设计奖
荣获 安德鲁·⻢丁 国际室内设计奖
英国伦敦杰出地产⼤奖-室内设计-优胜
2019
荣获 意⼤利A´Design⼤奖 意⼤利设计奖
荣获 2019红点传达设计奖 红点设计奖
荣获 TID台湾室内设计奖居住空间奖台湾室内设计奖 商业空间奖
荣获 ⽇本优良设计奖 优秀设计奖
荣获 美国国际设计奖 IDA国际设计奖
2018
荣获 台湾室内设计⼤奖 Taiwan Interior design award
荣获 德国iF传达设计奖
荣获 陈设中国 晶麒麟奖
荣获 空间陈设美学奖组的优秀奖
2017
荣获 德国红点传达设计奖 Red dot communication award
荣获 ⽇本优良设计奖 Good design Award
荣获 英国国际地产⼤奖-亚太区 Asia Pacific Property Awards
荣获 香港亚洲建+设⼤奖 A&D Trophy Awards
荣获 台湾室内设计⼤奖 Taiwan Interior design award
荣获 意⼤利 A’Design Award & Competition
荣获 居然杯CIDA中国室内设计⼤奖
荣获 中国北⽃名师 最佳物质领域设计奖
2016
荣获 意⼤利A’Design Award & Competition
荣获 韩国设计⼤奖 K-Design Award
荣获 美国国际设计奖 international design award
2015
荣获 INSIDE AWARD, World Festival of Interiors 住宅空间类⼤奖 – 纵观/场
景 Overview/Scene
荣获 Design For Asia Award 亚洲最具影响⼒设计奖 – 纵观/场景 Overview/
Scene
荣获 中国 Idea Stone IDS 年度⻛云⼈物
2014
荣获 意⼤利 A' DESIGN AWARD 银奖 – 纵观/场景 Overview/Scene
荣获 全球先锋设计(中国)⼤奖 Global Pioneer Design(China)Award
银奖 – 向限 Bounds
深居│对话 Seclusion│Dialogue
铜奖 – 隐序 Invisible Zone
荣获 成功设计⼤赛 Successful Design Award – 衍│⽣ Generative
荣获 TID 台湾室内设计⼤奖 The TID Award of 2014 Taiwan Interior Design Award
商业空间⼤奖 – 观/向 Perspective/Vector
居住空间⼤奖/复层 – 纵观/场景 Overview/Scene
居住空间⼤奖/单层 – 静。观 Tranquility
回域/穿廊 Breakthrough Boundary
沐暮光景 Twilight Scene
空间维度 Space Latitude
隐序 Invisible Zone
荣获 点⽯奖.2014 中国国际绿⾊建筑装饰设计精英赛 – ⾦奖
荣获 PChouse 中国⼗⼤⾼端室内设计 TOP 10
荣获 第⼗⼆届现代装饰国际传媒奖 年度家居空间⼤奖
荣获 ⾦堂奖 中国室内设计年度评选 年度⼗佳住宅公寓设计 – 沐暮光
景 Twilight scene
2013
荣获 德国 iF 传达设计奖 - 轨迹 Tracks
获选 安邸 AD100 中国最具影响⼒ 100 位建筑、设计精英
荣获 亚太设计师联盟 IAI AWRADS 商业空间⾦奖 / 评委会全场⼤奖 - 轨
迹 Tracks
获选 第⼆⼗⼀届亚太区室内设计⼤奖(APIDA)Living Space Best 10 – 阅读空
间的顺序
荣获 TID 台湾室内设计⼤
奖 The TID Award of 2013 Taiwan Interior Design Award
居住空间⼤奖/单层 – 复述 Multiple Depiction
重叠元素 Replace Elemental
墨染 Stillness of ink
引景 Cited shadow
空间层序 Leveling of space
取·⽣活 Moment
空间初相 Original Space 居住空间⼤奖/复层 – 衍│⽣ Generative
荣获 台北设计奖 公共空间设计类 评审特别奖 - 轨迹 Tracks
荣获 ⾦堂奖 中国室内设计年度评选 购物空间⼗佳 - 轨迹 Tracks
荣获 第⼗⼀届现代装饰国际传媒奖 年度展⽰空间⼤奖 -轨迹 Tracks
获选 2012-2013 美国《Interior Design》国际中文版年度封⾯⼈物
2012
荣获 英国 Andrew Martin 室内设计⼤奖
荣获 第六届中国(深圳)国际 IDCF ⼤中华区年度最具影响⼒设计机构⼤奖
荣获 TID 台湾室内设计评审特别
奖 The TID Gold Award of 2012 Taiwan Interior Design Award
居住空间/单层 – 沐光│对话 Light/Dialog、空间雕
塑 Sculpturing the Space
荣获 TID 台湾室内设计⼤
奖 The TID Award of 2012 Taiwan Interior Design Award
展览空间⼤奖 – 轨迹 Tracks
居住空间⼤奖/单层 – 留下⽣活轨迹 Save the moment
⽣活│向度 Life/Dimension
阅读空间的顺序 Made by art
轴向 Axial
界·现 Definition
居住空间⼤奖/复层 – 静境 Silence Space
荣获 现代装饰国际传媒 年度家居空间⼤奖-流动引景
荣获 晶麒麟 空间组优秀奖 – 留下⽣活轨迹 Save the moment
荣获 晶麒麟 产品组晶麒麟奖 – 构⽯
2011
荣获 ⾦典设计 室内标章类 - 绿光 L 宅 L House of Green
荣获 TID 台湾室内设计⼤
奖 The TID Award of 2011 Taiwan Interior Design Award
居住空间⼤奖/单层 – 本质│原点 Essence Origin
展开 Space
居住空间⼤奖/复层 – 青⼭│映
景 Blue mountain in reflection of scenery 光影│经过 Silhouette/passing through
荣获 2011 年度国际空间设计⼤奖 艾特奖 最佳住宅空间设计入围奖 – 共 4 项
荣获 2011 年度国际空间设计⼤奖 艾特奖 最佳商业空间设计入围奖 – 愿
意 Willingness
荣获 ⾦外滩 最佳创新设计奖 / 最佳办公空间奖 / 最佳居住空间奖
2010
荣获 TID 台湾室内设计⼤
奖 The TID Award of 2010 Taiwan Interior Design Award
居住空间⾦奖 – 绿光 L 宅 L House of Green
居住空间⼤奖 – 文艺侯宅 H House of Arts
春秋侯宅 H House of seasons
商业空间入围 – 盒⼦ The Box
2009
荣获 TID 台湾室内设计⼤
奖 The TID Award of 2009 Taiwan Interior Design Award
商业空间⼤奖 /居住空间⼤奖 / 居住空间入围
2008
荣获 TID 台湾室内设计⼤
奖 The TID Award of 2008 Taiwan Interior Design Award
居住空间入围 – 层次美学: 室内设计与⽣活轨迹
2007
荣获 TID 台湾室内设计⼤
奖 The TID Award of 2007 Taiwan Interior Design Award
居住空间⼤奖 – 转折深邃的⿊⾊美学 Black Esthetics




  讲座/授课经历  


2015
北京清华⼤学软装研修班《软装在样板间别墅中的应⽤实战》讲师
南京海尔热⽔器城市梦想+「论坛分享」 《探寻城之上居》新浪家居&欧派
设计文化交流之旅 设计⼤师主题演讲 安提阿设计讲
堂 Antio Design Lectures《设计中的状态》
深圳派意馆 50 顶级专业系列讲座《台湾与香港的设计视野》
上海同济·设计之都陈设艺术(⾼级)研修班授课专家《室内空间的情感设计与陈设
艺术》
DC501 校园巡回讲座 台北科技⼤学《设计中的状态》
台北清华⼤学计量财务⾦融学系选修课 特聘讲员《设计中的状态》
陶城报、陶瓷⼚商主办《呼和浩特-设计与市场》讲座
合肥市装协设计委员会、合肥市家装委员会主办《国际家居设计流⾏趋势发布
会》讲座


2014
武汉国际设计周邀请展 论坛 台北文化护照 空间设计《台北摩登古典美》讲座
“世界向东”中国杭州国际软装艺术设计周 导师/论坛 ⾼雄空间艺术协会 讲座
中国建筑学会室内设计分会郑州第⼗五专业委员会《名师有约,⼤师讲堂》第⼆

建 E 室内设计⽹、中国美术学院联合主办《中国青年设计师扶持计画暨中国美术
学院室内设计⾼研班全国巡讲公开课》
2016 世界设计之都 台北 Open Doors 活动 开放公司讲座
新联阳建设 总公司讲座《室内建筑的解构与室内陈设》
DC501 校园巡回讲座 中国科技⼤学《设计中的状态》
CIID 中国建筑学会 ⾸届中国(重庆)住宅设计奖 / 导师&评审
太平洋房屋 教育训练《格局破解》
北京清华⼤学软装研修班《⾼档空间的陈设设计及材料作⽤》讲师


2013
陈设中国·晶麒麟奖 评审团 第七届《⼤师选助⼿》活动 评审团
2013-2014 第⼆⼗届 CSID 中华⺠国室内协会 理事
中原⼤学室内设计学系研究所「空间特论」课程 讲师
亚太酒店设计协会 理事
台湾设计展暨台北设计城市展「设计玩家馆」评选会议
评审 IAI 亚太设计师联盟⼤中华区 理事
中原⼤学室内设计学系硕⼠学位论文 评审


2012
台湾设计展『⾦点设计馆』评选委员


2011
CSID 中华⺠国室内协会 理事
中国科技⼤学室内设计课程客座讲师
台北世界设计⼤展 TDA 台湾设计联盟展区 策展⼈之⼀



往期作品 


唐忠汉新作 / 中海·荔府售楼处,“隐逸自然”



唐忠汉新作 / 台北豐居,看見生活的動作和表情



唐忠汉新作 / BAUNIS 高奢定制家居展厅



唐忠汉新作丨转衍之域 / 澎湃温暖的画内空间


唐忠汉力作丨三亚海棠湾700㎡独栋别墅


 唐忠汉新作丨本来之间,将自然变化引入空间,于宁静中唤得惬意


  唐忠汉新作丨光影纪录



 最新访谈 





极简诗意所描述的是怎样的设计理念?

在他看来,诗意即为内心的感觉。作为设计师,我们要做的设计应该是能够与人产生共鸣的空间,在这里情绪可与自我对话。


而极简,并非仅仅是简单之意。所有的极简并不代表简单,而是追求简单、纯粹的过程。他认为室内设计应该透过以人为本的理念,去思考设计的内核。在追逐生活方式、满足生活需求后,我们的内心应该能被感知和了解。唐忠汉说,“对设计者来说,这是从练达设计技巧往内心探究的思维转换。”


唐忠汉说,一个学习设计的人,最先从看得见的设计开始。由形式、机能、技巧、概念开始,思考设计的来龙去脉。当你系统地掌握了这些表象的设计与技巧,我们会逐渐发现,这一切不过是为了表达自己内心的情绪。

 

01

Q1:对一个新人来说,应该怎样培养自己的风格呢?

 

唐忠汉:对做设计的人来说,我认为追求风格并不是主要的课题,重要的是清楚自己的喜好。在设计的过程中慢慢地提升自己的审美和风格体验。这是一个自省的过程,透过自我的了解,对喜爱之物的积累和沉淀,最终把这些东西呈现表达出来。因此我们应该往内心的方向去寻找喜爱的事物,而不是单看外在的形式,这样才能慢慢形成自己的风格

 

02

Q2:创业过程中遇到比较棘手的难题是什么?

 

唐忠汉:在不同阶段,我们都会遇到不同的问题。在创业之初,最难的一点就是大家并不了解你。在这个过程中你需要用好的作品来证明自己,而当还没有好的作品面世的时候,要让业主认识你,最直接的办法就是与他面对面沟通,从相互沟通中去让他知道你是如何替他思考,帮助他解决问题的。这些方法都可以让业主切实去熟悉和信任刚刚起步,还没成熟起来的初创时候的你。以真诚、真实的姿态面对客户让他们了解你的认真和负责。


03

Q3:怎么看待未来家居的发展趋势?

 

唐忠汉:经过2020的疫情,我相信更多人会开始了解到家对于他们的重要性,我们对这个空间越来越依赖了。因此我觉得在未来空间会有更多的改变,在这里会形成更多更细腻的东西,比如我们会怎样在这个空间里长时间待着,产生更多的生活情节呢,这些东西不仅仅是表象的形式,而是会透过形式,反映内心情感的真实表现。

 

04

Q4:现代化住宅如何平衡批量化的需求和纯粹美学的关系?

 

唐忠汉:在我做设计的过程里,并没有批量化需求的问题。因为我们不是做产品,也不是做艺术创作。对于如何平衡两者之间的关系,我觉得重点在于项目中是否能够拨开层层复杂的东西,预算、空间规划细节、业主喜好等等的因素,看到自己清晰的表达,这是非常重要的。

本文素材图片版权来源于网络
如有侵权,请联系后台,我们会第一时间删除
Images copyright from the official website if 
there is any infringement,please contact us 
and we will delete it as soon as possible




- END -




▲季裕棠 / 如何理解对家庭生活以及纯粹住宅精神思考?(30分钟)


▲全球TOP3酒店设计公司:CCD掌门人郑忠谈顶级设计 (16分钟)


▲琚宾解析东西小院 / 淡然无极而众美从之(7分钟)


                         
                         
                         
                         












将【云想设计美学】设为“星标公众号
可第一时间接收设计圈最新精选内容

本文来自微信公众号“云想设计美学”(ID:Yunxiang_Design)。大作社经授权转载,该文观点仅代表作者本人,大作社平台仅提供信息存储空间服务。