水相设计
Taiwan, China
「江流天地外,山色有无中」是唐代独有的壮阔
风景无论入画入诗皆是一次新生
假如以建筑书写天地辽阔
本案长型基地一侧拥有连贯窗景和带状露台,熟悉山林的屋主迁至市郊生活仍择邻近故宫、一处有山有溪的住所,希望自然曾经带给他们的情怀能在此继续生长。
水相设计将起居环境视为呼应户外溪林的文本,企图在故宫藏品间找到表现空间的调子。
©李国民空间摄影
以釉寓景,灰调的山色
瓷器贴近生活、贯穿古今,古代多处著名窑厂所制瓷器,其独到釉色转注天地四季例如月白、天青、洒蓝,呈现山川在烟雨朦胧中的古雅,点到为止。因此设计师以瓷釉串接景色生活,用瓷器当语言将具象写入建筑。
©李国民空间摄影
©李国民空间摄影
©李国民空间摄影
©李国民空间摄影
©李国民空间摄影
©李国民空间摄影
而漆料矿物粒子折射日光的强弱变化,使早晨清丽如未散的薄雾,翠色漫着一层灰白;当夕阳直射入室,色温使墙转为带着光泽的碧绿;入夜开启照明时,白中带绿的层次似暖玉,随视角变换色阶,如山色在有与没有之间最美。
©李国民空间摄影
©李国民空间摄影
©李国民空间摄影
©李国民空间摄影
以釉色匀墙,地面便想以水墨衬出场景重量,因为若以常见橡木色衬底,重心不足会使秘色显得飘忽犹疑,反而以黑棕色为地坪,就如水墨画中奠定层次的浓墨,在大尺度画纸上稳住各个元素的定位。且相较于浅色木质,夕阳映入室内时,黑棕色地面更能衬出明暗节奏,在沈定的轴线上悠悠晾着光影。
©李国民空间摄影
©李国民空间摄影
©李国民空间摄影
为强调窗景和动线流畅,设计师拉大落地窗跨距,规划格局也避免墙体垂直接触、切断窗的连贯性,带状露台也在外形成另一串连起居的小径,微风能随生活在此间游走。
主卧床头与更衣室隔间墙变与窗脱开距离,绿意和晨昏光景能延续、穿梭。主卧浴室同样不以隔墙柜体阻断采光,但基于隐私更换为雕刻玻璃,梳洗之余仍可感受个人与自然相连。
即便有隔间,屋里景色仍是流动的,如玉石的静谧与光润都是一气呵成。当风自树梢窜入拨动映在各处绿影,那是生活倚傍自然的况味,下一刻风又静下,山在画外。
©李国民空间摄影
©李国民空间摄影
©李国民空间摄影
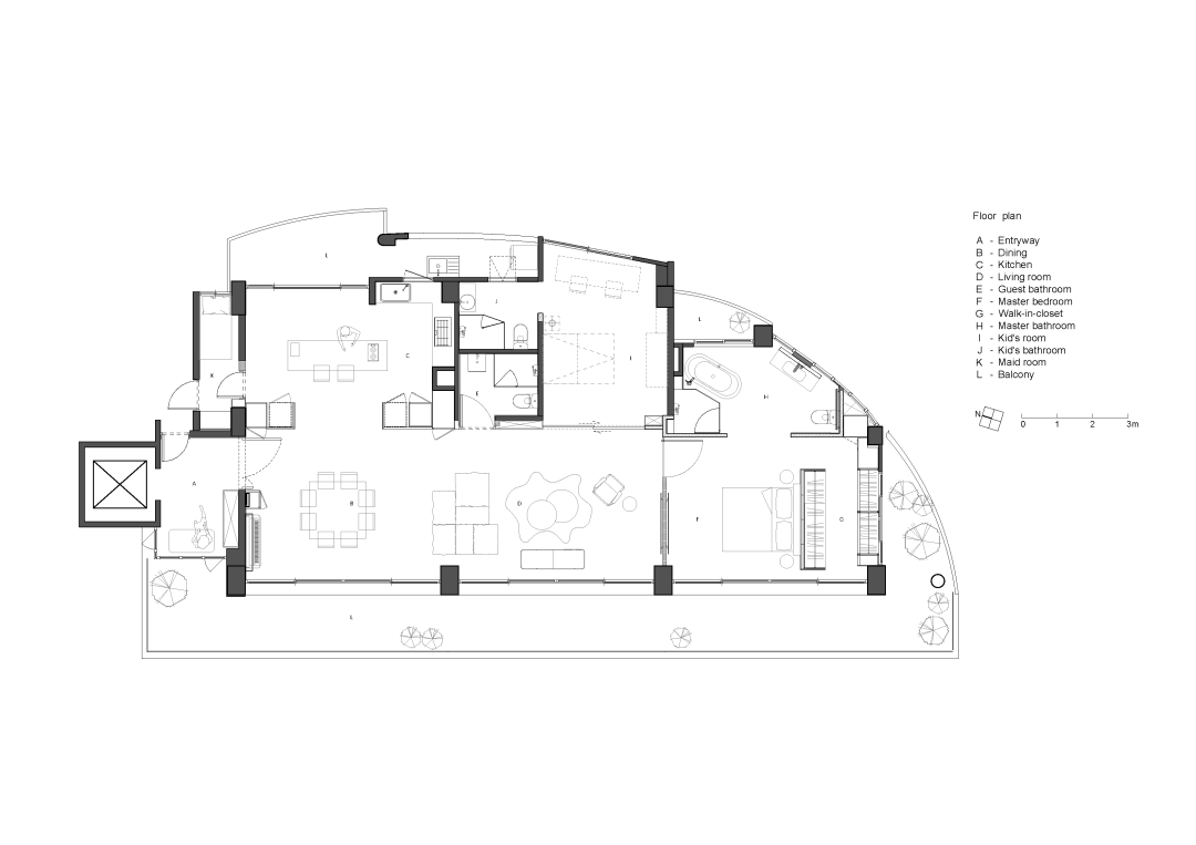
▼ 项目图纸
©水相设计
室内设计:水相设计 Waterfrom Design
设计主创:李智翔
设计团队:廖婉君、陈沛滢、张碧庭
项目地址:中国,台湾
项目业主:Individual Clients
项目图片:李国民空间摄影事务所
本文来自微信公众号“OffsetDesign设计偏移”(ID:offsetdesign)。大作社经授权转载,该文观点仅代表作者本人,大作社平台仅提供信息存储空间服务。










