项目信息
项目名称:苏州工业园区星浦实验中学
项目业主:苏州工业园区教育局
设计单位:苏州华造建筑设计有限公司
代建单位:苏州工业园区城市重建有限公司
项目地址:苏州工业园区胜浦街道
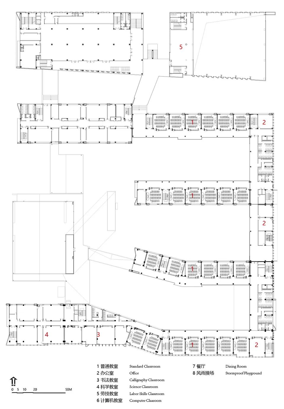
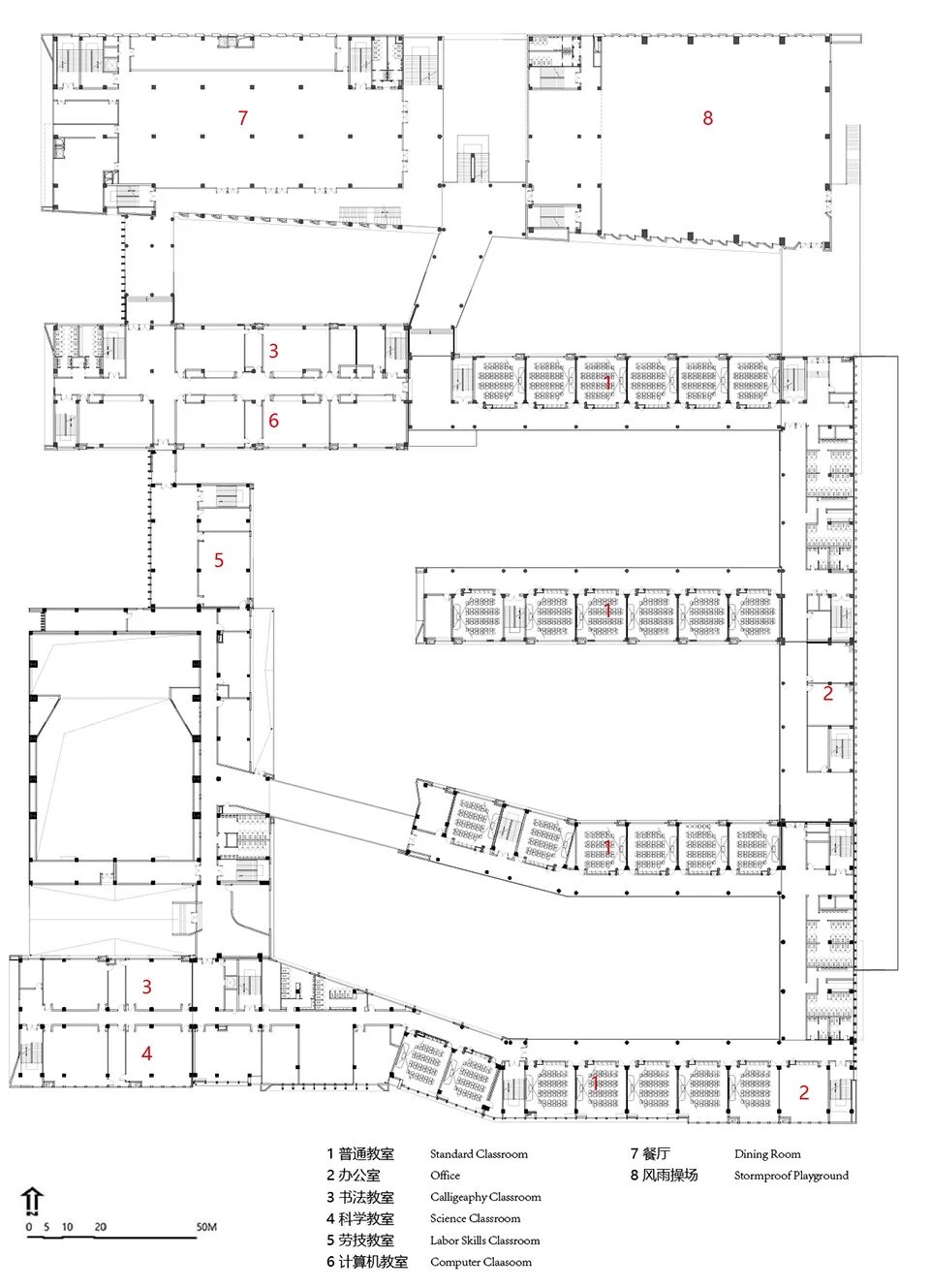
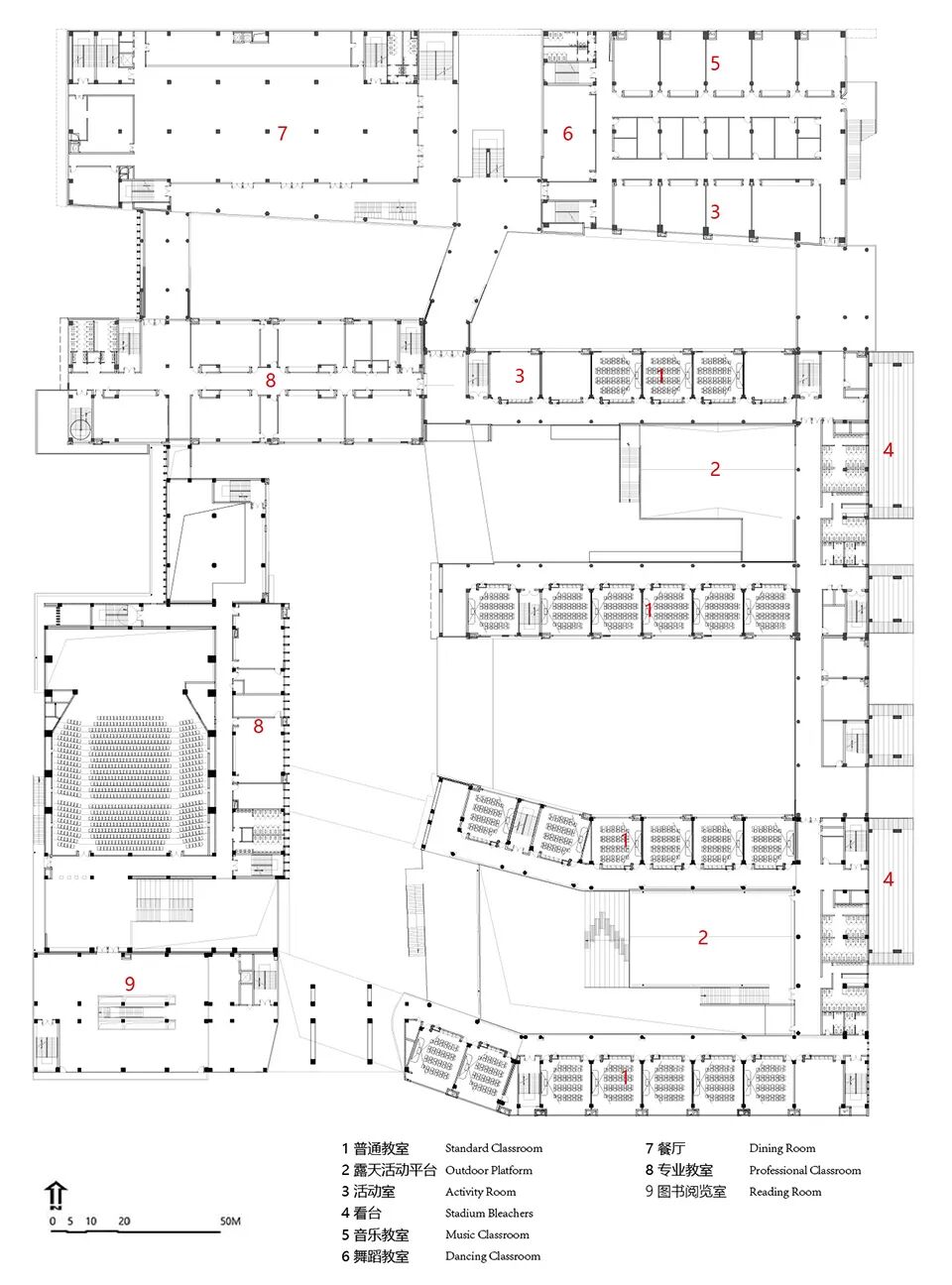
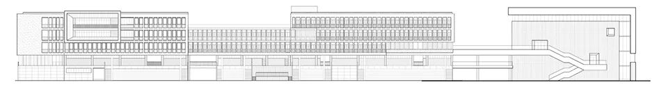
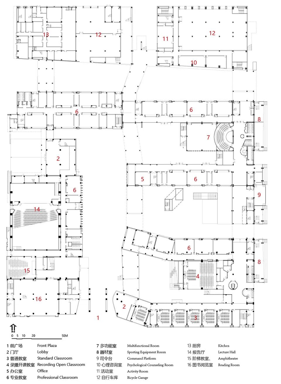
项目规模:建筑面积8.7万平方米,90班
设计时间:2020年1月
完工时间:2022年9月
设计总负责人:顾柏男
项目负责人:王志斌
建筑:王志斌、徐宏伟、谈敏、徐向东
结构:陈劲丰、殷韦、顾曦
给排水:罗志华、陈媛
暖通:陆勤俭、姚俭
电气:黄斌斌、贺青波
室内:杨晨、董亚丽、姚刚
摄影:仲几发
—END—
公众号文章仅供内部交流,版权归原作者所有
如有部分权属不清导致的侵权请联系我们
我们将第一时间删除
建筑室内景观项目
全球报奖/合作/投稿
请联系微信:sheji2415
【青年建筑】旗下新媒体平台
【设计快讯】
总监:魏一鸣
主编:郑利江
本文来自微信公众号“设计快讯”(ID:arch-headlines)。大作社经授权转载,该文观点仅代表作者本人,大作社平台仅提供信息存储空间服务。










