/隋唐大运河文化博物馆 / TJAD 若本建筑工作室

隋唐大运河文化博物馆 / TJAD 若本建筑工作室

© 姚力



隋唐大运河是世界上开凿最早、规模最大的运河。公元 605 年,隋炀帝下诏开凿通济渠,历经 5 年,建成以洛阳为中心,南起余杭(杭州),北通涿郡(北京),全长 2700 余公里的大运河。大运河的开通产生了久远而积极的影响,对中国经济文化的发展起到了巨大的促进作用。隋唐大运河文化博物馆是新时期国家运河文化战略的重要节点工程,也是国家“十三五”重点文化工程。博物馆坐落于洛阳市主城区瀍河入洛河口的西北角,内设展览陈列、公共休闲、研学会议、文物储藏等多个功能区,是集文物保护、科研展陈、社会教育于一体的综合性运河主题博物馆。
© 姚力
© 姚力
© 姚力
场地是位于洛河与瀍河交汇处的三角形用地,空间组织先天比较局促。博物馆建筑布局一方面尊重并呼应洛河大堤上已经形成的仿唐建筑群“瀍壑朱樱”的中轴线,另一方面在内部空间组织上用层层递进的功能空间布局规避不利的地形影响,形成了完整连续的展厅单元和富于变化的内部空间体验。
© 姚力
© 姚力
建筑风格方面,博物馆所在的隋唐大运河国家文化公园正处于隋唐洛阳城遗址的范围,周边规划了大量的仿唐风格景观建筑。按惯常思路,这座运河博物馆必是唐风建筑无疑。我们的设计试图跳脱出仿唐风格的包围和束缚,寻找对隋唐历史文化的不同切入视角。
© 姚力
© 姚力
隋唐时代是我国古代技术发展的一个高峰期,跨越洛河而规模宏大的洛阳都城规划,明堂、天堂、龙门石窟等体量巨大的土木工程以及大运河的开凿都集中出现在这一时期。所以,我们抓住隋唐大运河这一古代水利工程的技术特征,以洛河上架设的拱桥结构为原型,用现代建造技术的自然呈现来取代对传统风格的具象模仿,从而实现古今文明的对话。
© 姚力
© 姚力
结构的对偶运用,在平面组织上采用横向与纵向交织的拱形剪力墙形成有效的双向抗震结构体系,在剖面组织上上部屋面采用预应力混凝土悬垂板+端部混凝土“唐瓦当”与下部基座的拱形剪力墙共同组成闭合的剪力墙传力体系。平面对偶的结构特征通过大模板的清水混凝土浇筑形成清晰的室内空间架构,而剖面对偶的结构关系则通过陶瓷和青砖的材料组合赋予特定的历史记忆和文化内涵。
© 姚力
© 姚力
展陈空间的布局突破传统博物馆的封闭展陈模式,除了对温湿度影响敏感的展品之外,大部分展厅采取开放格局,与公共空间和公园景观融为一体。
© 姚力
© 姚力
© 姚力
功能组织上特别强化南面向洛河开放的公共会议区,以及北面向大运河公园开放的文创展示和教育体验区,使博物馆成为名副其实的城市客厅。
© 姚力
© 姚力
建筑主材的选用强调在地性的原则,即“洛阳造”。室内外大量采用改良后的洛阳三彩陶瓷挂板饰面,较好地缓解了清水混凝土建筑易给人带来的疏离感以及内部空间声学方面的缺陷,其中的吊顶《云帆》由 126986 个三彩陶瓷单元组成了迄今世界最大的陶瓷吊顶艺术作品。
© 姚力
© 姚力
© 姚力
我们在设计过程中与洛阳当地的工艺美术家郭爱和、高水旺反复讨论试样,把传统手工陶艺与现代设计、加工技艺相结合,助推洛阳传统陶瓷产业的创新发展。
© 姚力

© 姚力
© 姚力

总平面图 ©TJAD若本建筑工作室




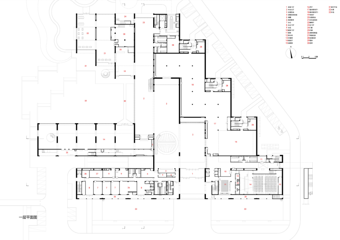
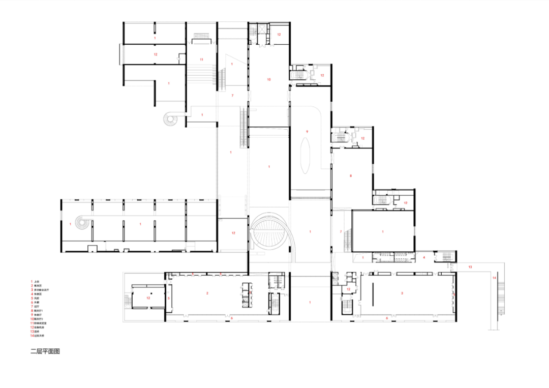
平面图 ©TJAD若本建筑工作室


剖面图 ©TJAD若本建筑工作室
项目信息
项目名称:隋唐大运河文化博物馆
项目类型:文化建筑
项目地点:河南省洛阳市
设计单位:同济大学建筑设计研究院(集团)有限公司若本建筑工作室
主创建筑师:李立
设计团队:高山、王文胜、肖蕴峰、周峻、胡海宁、叶雯、郝竞、李飒、申银珠、李霁原、张溯之、黎彦希
结构设计:张准、张锦骁、马卫强、高文虹、高戈
三彩陶艺制作:郭爱和、郭家启(室内)、高水旺(室外)
灯光设计:杨秀、卞晨、杜怡婷、陈幸如、蔡文静、李彬豪
幕墙设计:金颖、闫云斌、张亮、李根恒
驻场建筑师:李飒
驻场结构师:孔忆辰
展陈大纲:中国文化遗产研究院中国世界文化遗产中心
展陈设计:上海宽创国际文化科技股份有限公司
展陈设计深化及施工:天禹文化集团
业主:洛阳市文物局
施工单位:河南三建建设集团有限公司
基地面积:31817平方米
建筑面积:32986.3平方米
设计时间:2018年10月—2020年9月
施工时间:2020年9月—2022年5月
摄影:田方方

本文来自微信公众号“匠山行记”(ID:gh_d836161f0f54)。大作社经授权转载,该文观点仅代表作者本人,大作社平台仅提供信息存储空间服务。