拥有十年私人和公共室内设计经验的设计工作室。我们专门设计具有独特无与伦比的特征的空间。
Design studio with ten years of experience in creating private and public interiors. We specialize in designing spaces with a unique and inimitable character.
这项任务是非同寻常的:为一对日裔美国夫妇建造一套度假公寓,可以看到格但斯克1000年的历史。
The task was extraordinary: to create a vacation apartment with a view of 1000 years of Gdańsk's history for a Japanese-American couple.
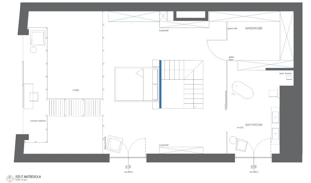
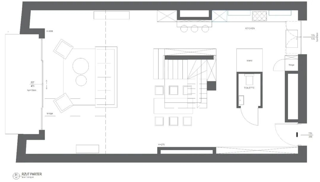
从功能上看,该项目类似于一栋独栋住宅:一楼有客厅、厨房和小浴室,另一层是一间带大浴室和更衣室的特殊主卧室。
Functionally, the object resembles a single-family house: on the ground floor there is a living room, kitchen and small bathroom and on the floor an exceptional master bedroom with a large bathroom and dressing room.
一个独特的元素也是我们在里面建造的桥:它位于客厅的左侧上方,通向一个特殊工作场所。但是,让我们非常自豪的是,汉萨传统融入了来自日本和美国的城市灵感。
A unique element is also the bridge that we built inside: it is located above the left part of the living room and leads to a part where there is an exceptional work place. But what is extraordinary and of which we are very proud is the incorporation of Hanseatic tradition in the city's inspiration from Japan and the USA.
如何结合三种不同的传统?他们的共同价值观和要素是什么?答案之一是巨石的真面目——我们在卡舒比工匠那里发现的大石头。
How to combine three distinct traditions? What are their common values and elements? One of the answers are true faces of boulders - large stones that we found with Kashubian craftsmen.
正是这种元素将日本和格但斯克房屋的传统联系在了一起,因为它在两种文化中都是一种门槛。这个空间里的家具和配件是当代全球设计的一场真正的音乐会。
It is precisely this element that connects the tradition of Japanese and Gdańsk houses, as it appeared in both cultures as a threshold inviting inside. The furniture and accessories in this space are a real concert of contemporary global design.
为了赋予空间最终的特性,我们参观了澳大利亚、日本、美国,当然还有波兰的仓库。最终的结果是将美丽的、我们的和当地的东西与非凡和大胆的东西相结合,例如在这个空间中创作真实绘画的大尺寸瓷砖。
To give the space its final character, we went through warehouses in Australia, Japan, the USA, and of course Poland. The final result is a combination of what is beautiful, ours, and local with what is exceptional and bold, such as large-format tiles creating real paintings in this space.
这个室内充满了细节、参考和微妙的极简主义,与独特的室内装潢和许多文化的影响交织在一起。地板上的浴室是日本和女性的精髓。
This interior is full of details, references, and subtle minimalism, which intertwines with unique upholstery and the influence of many cultures. The bathroom on the floor is the quintessence of Japan and femininity.
精致的传统东亚浴缸、花朵和地板上的几何图案。整体配有拉丝黄铜配件。我们邀请您在一个原始的空间进行探险,它远离显而易见和重复的内部。
Delicate traditional East Asian bathtub, flowers, and geometry on the floor. The whole completed with brushed brass fittings. We invite you to an expedition in an original space, which is far from obviousness and repetitive interiors.
本文来自微信公众号“设计诗designer”(ID:shejishi_designer)。大作社经授权转载,该文观点仅代表作者本人,大作社平台仅提供信息存储空间服务。










