北京大学协作式学习中心位于第二教学楼内,毗邻食堂与数学科学学院,如何将原有楼梯底下和旁边的边角位空间改造成融合北大元素,让学生都能有心理认同感的多元、交互、无界空间是本项目的重点。
北京大学是教育改革的先行者,我们希望在项目的改造设计中体现“守正和创新”的北大精神,并使之成为北大的人文景观新地标。这个空间是多元教育空间的试点,为自主式学习提供新场景。
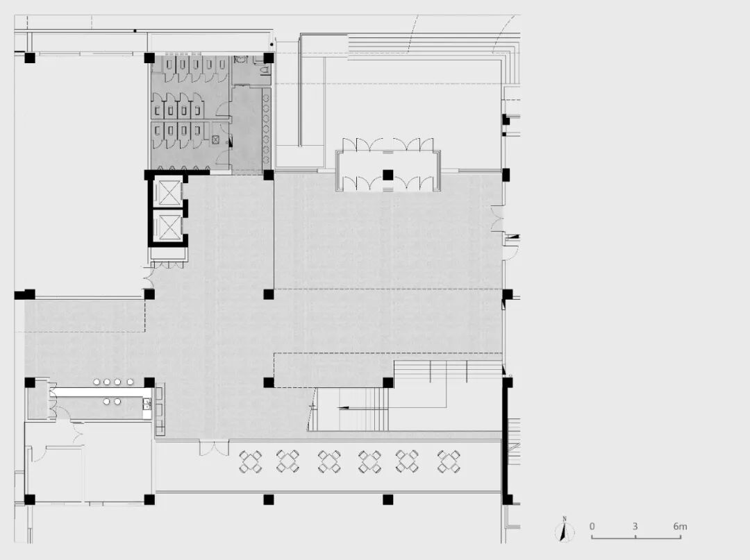
▲第二教学楼首层平面图 ©扉建筑
▲第二教学楼三层平面图 ©扉建筑
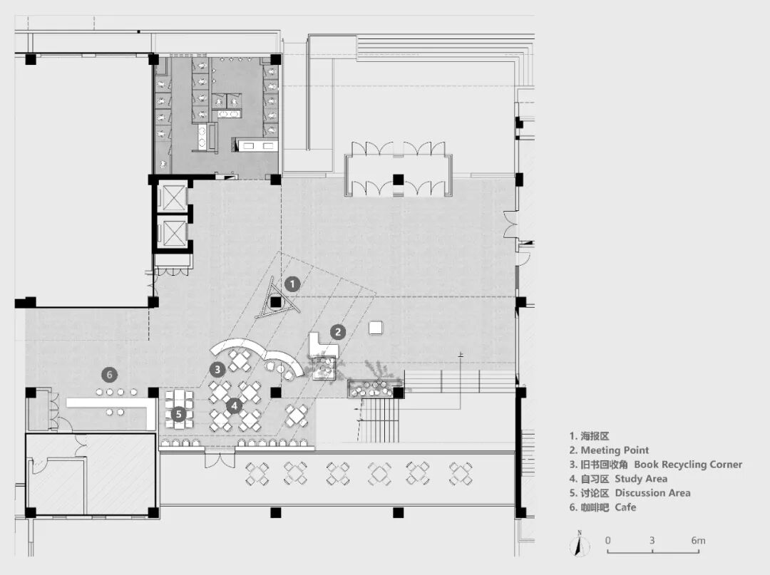
北区学习中心位于第二教学楼的首层,选址于此主要是考虑到方便课间短时间的自修,同时靠近与社会外界联系最密切的东南门,在功能上可以作为一个交汇点,方便校内校外人士于此交流会面。但由于有个大楼梯的存在,导致原有空间低矮零碎,没有人气。
为了引导人流,我们设计了一个朝向主入口大门的折形吊顶装置,并把原有低矮的楼梯底空间包了起来,木色材质也让人有了亲切感,将闲置空间变成了社交空间。大堂中间的柱子也被三面展板包了起来,成为了活动展演信息的传播墙。
▲北区学习中心改造前平面 ©扉建筑
▲北区学习中心改造后平面 ©扉建筑
▲北区学习中心改造前 ©扉建筑
▲北区学习中心改造后 ©扉建筑
▲北区学习中心改造后 ©扉建筑
南区学习中心位于第二教学楼三层的最南侧,址于此主要是考虑到能汇聚三个方向的人流,且靠近校园主干道,方便往来教学楼建筑群和饭堂的学生人群抵达使用,但由于从立面到天花都是玻璃幕墙,夏天阳光直射,又闷又晒。于是我们在三个方向人流的汇聚处围绕其中一根柱子设计了一颗“大树”,“树下”可以成为学习交流的空间,同时树顶飘荡着的团团星云又起到遮阳防晒的作用。
▲人流动线分析 ©扉建筑
▲南区学习中心改造前平面 ©扉建筑
▲南区学习中心改造后平面 ©扉建筑
▲利用现场的柱子作为“树”,设计“树下”学习空间 ©扉建筑
▲南区学习中心 ©扉建筑
“树”旁边还有两个别致的“树屋”——“德先生”和“赛先生”,身处其中,黑色的主色调让人沉静,注意力集中;而半封闭的空间设计,既不会干扰他人,又不使人完全孤立。
“人们聚集在村口的大树下,彼此交谈,相互协作,旁边还有两间小房子。这就是树下空间在自然界的映射,一种极强的归属感。”
—— 米笑(扉建筑创始人)
▲“树”旁的“赛先生”树屋 ©扉建筑
▲在“树屋”中学习 ©扉建筑
设计师在空间设计中充分考虑了各种各样不同的功能需求。中央的自由式舞台采用流线型的设计,让空间多了灵动感。台子不高,既可在平时随意就坐,也可在有分享活动时用作舞台。同时为了尽可能呈现空间的多样性和层次感,在每个区域都布置有屏幕可供讨论分享。
▲流线型的中央舞台 ©扉建筑
▲随处可见的屏幕 ©扉建筑
学习空间改造前有一处两层通高的口袋空间,由于过于空旷而令人无法安定。这个空间旁边正好是楼梯,于是我们决定拆除栏杆,把台阶延伸至这个通高空间形成阶梯式的多功能座席。不仅大大增加了学习空间的座位数,也让空间尺度更加宜人。
黑红相间的“梯田”与书柜墙搭配,台阶的错落让空间更加立体,为讨论式的学习提供一种新的可能性。有演讲演出的时候,这些稍微远离舞台的座席往往更受欢迎,它可以在参与与自修之间自由切换。
▲改造前的两层通高空间 ©扉建筑
▲改造后成为黑红相间的“梯田”空间 ©扉建筑
我们在改造的过程中利用PVC管设计了一件名为“智慧”的艺术装置,既是遮阳的措施,又是晚上照明的灯具,还是一件原创艺术品。艺术与设计的融合,营造了美与无界的体验。
▲原创艺术品:“智慧”灯 ©扉建筑
▲艺术与设计的融合 ©扉建筑
通过组织“北大红”艺术工作坊,在工作坊中被师生们选出来的心中的“北大红”被运用于设计当中。主题墙和书屋黑板的设计绘制也都由师生共同完成。“参与式设计”的方式让师生们从一开始就参与项目形象的构建,传达出了和而不同的理念,体现了北大的自由精神与多元文化。
▲被师生选出来的“北大红”运用于设计当中 ©扉建筑
▲随处可见的“北大红” ©扉建筑
▲由师生共同绘制的黑板墙 ©扉建筑
往期推荐:
【作品解读】
作品解读 | 下个屋顶见!【江苏政泰建筑设计集团】第八届紫金奖建筑赛
作品解读 | 为希望做顿好饭——共享厨房幸福的家【东南大学建筑设计研究院】第八届紫金奖建筑赛
作品解读丨重建边缘:以苏尔莫纳-卡尔皮诺内铁路和吉齐奥河畔的佩托拉诺镇为例
作品解读丨UCL UD毕设银奖质疑CBD空间使用权?用大数据分析与AI算法实现城市重构和空间平等!
作品解读 | 从前有座煤气罐——气罐社区营造记【中通服咨询设计研究院】第八届紫金奖建筑赛
作品解读 | 伞林间——城郊地上站区共享绿用【东南大学】第八届紫金奖建筑赛
作品解读 | 循级利用—H₂O与CO₂变奏曲【南京市市政设计研究院】第八届紫金奖建筑赛
作品解读 | 对北荷兰循环农业的可能性进行的深度景观空间探索
作品解读 | “挤”出来的空间【南京工业大学浦江学院】第八届紫金奖建筑赛
作品解读丨新园公社——对青年居住模式的探索【昆明理工大学】第八届紫金奖建筑赛
作品解读丨微观分形——城中村居住新解【郑州大学】第八届紫金奖建筑赛
作品解读|Isomatic 异构体-充斥着色彩和虚构人物的混乱游乐场
作品解读|一个不完整的无边界地图集 An Incomplete Atlas of Non-borders
作品解读|“kikai Shien Robotto”生态和能源可再生主题公园
作品解读|Blind Park 盲人公园-把无法看见的变成可感知的
作品解读|City Nomads 城市游牧民族-新的变化,新的时代,新的居民
作品解读 | 为了农业土地更好的未来(构建农业景观与农业定居点)
作品解读|伊斯坦布尔防灾中心 Istanbul disaster prevention centre
作品解读 | 为马德里附近的 Tetuán 建立一个新的维修中心
作品解读|“kikai Shien Robotto”生态和能源可再生主题公园
作品解读丨第五届天华杯全国大学生建筑设计竞赛三等奖:流动制造
作品解读丨开封竞赛获奖作品赏析:清园春韵---“新宋潮“特色文旅体验中心设计
作品解读丨国际建筑设计竞赛获奖作品:福建土楼(南靖)保护与活化利用
作品解读丨开封竞赛获奖作品:开封时间 TIME ON/OFF
作品解读丨渭南竞赛获奖作品赏析:银色田茂 情动预愈--全龄友好的村落式银发小镇再塑
作品解读丨UIA-霍普杯 2020 国际大学生建筑设计竞赛二等奖深度解读——衍聚-倚巷折坊
作品解读丨UIA-霍普杯 2020 国际大学生建筑设计竞赛三等奖深度解读——迷宫城市
【项目分析】
项目解析丨粉家金沙角小酒馆(淮海路店),上海丨之外建筑 ZZYYStudio
项目解析丨建筑师自宅 | 看卒姆托、贝聿铭如何打造自己的家?
项目解析丨昆山南站区域城市设计丨Aedas、筑境设计、日本设计PK,你中意哪个?
项目解析丨阜南县妇幼保健院淮畔世家托育中心,阜阳|张晓光建筑设计
项目解析丨睡眠研究所·Arch,北京|多么工作室Atelier d’More
项目解析丨同济院&MAD|超级工程全景揭秘——嘉兴火车站区域提升改造项目
项目解析丨ZEN正象设计 | “POTENTIAL SPACE”:重庆长嘉汇改造
项目解析丨不止是可持续,还有尊重:日本村镇的一间小屋,上胜町小镇公馆
项目解析丨看完这座嘉陵江畔的艺术独栋,解锁“诗意人居”的终极涵义
项目解析丨从一粒种子开始,构建生生不息的完整IP——阿飞森林主题乐园
项目解析丨LowLowLand文艺空间
项目解析丨森林Park+,共享垂直校区 | 重庆柏溪校区九年一贯制学校方案
项目解析丨SPARK中标苏州青苔中日工业设计村,再度打造滨水新地标
项目解析丨Diller Scofidio + Renfro:“最不可思议”的建筑
项目解析丨DA!作品《引力的影子》落天长江文化艺术周,以艺术之名 “还重庆以蓝天”
项目解析丨贩卖健康:理疗中心设计
项目解析丨也似建筑:锁不起来的艺术社区-深圳梅林中学设计方案
项目解析丨这3个珠宝店设计,都包含这个工作室对爱情不同的解读
项目解析丨GWP 新作 | 汤湖宋园温泉度假区·生活的诗意栖居
项目解析丨南京乡下废弃农舍打造民宿,海归建筑师的朴素田园牧歌
项目解析丨GWP 新作 | “放飞梦想,快乐成长”— 杭州临安·风之谷户外自然学校
项目解析丨矛盾之“间”|The ‘room’ between of contradictions
项目解析丨大美至简,传统与现代的交互演绎 | 杭州融创城示范区
项目解析丨DA!田坝村即兴创作实践作品《青榭竹里》——设计文本篇
项目解析丨以传统集市为原型的现代商业空间 | 临港新城配套公建
项目解析丨初生牛犊不怕虎?看新锐设计师如何在Benoy新作上讲海豚故事
项目解析丨100张图告诉你中国首座【建筑模型博物馆】里到底有什么?
项目解析丨Masdar城市入口设计,对自然的敬畏,对古典美学精神的追求和对技术革新的认同
项目解析丨寻美杭州8大地产项目,探索极致美学空间【环球建筑】
本文来自微信公众号“UniDesignLab”(ID:UniDesignLab)。大作社经授权转载,该文观点仅代表作者本人,大作社平台仅提供信息存储空间服务。










