001. 规划与概述
都市央心,无界交互,大盘名片
武汉龙湖·清能天曜项目地处武汉四大居住区之首江岸区后湖板块,周边为密集成熟住宅聚集区,紧邻二七滨江商务区,是长江主轴下的江城新央心。
⊙城市区位图
⊙区位分析图
项目位于板块核心区,1号、21号线双地铁上盖,规划约15万方天街,融合星级办公、街区商业、文化展示等业态为一体,自带九年一贯制学校(推进育才/长春系落地,武汉第一梯队)教育资源,距离堤角公园约200m,地理位置得天独厚。
⊙地铁换乘站区位
⊙整体效果(最终以报规为准)
先期建成的展示中心面朝城市公园绿地,南侧紧临后湖大道,东侧、北侧与未来街区商业紧密相邻。展示中心作为大盘首期开发,旨在营造未来都市商业核心,构筑TOD枢纽的地标,为城市片区注入新的活力,形成一个集商业、艺术、品质生活的未来都会核心,展示中心将成为项目面向公众的第一张名片。
002. 概念与构想
多元交互下的城市活力“聚”场
两江交汇,九省通衢,形成江河与城共融,山水与人共生的江城生态与都市文化,也造就了八方来客、千里相聚的城市精神。
© 图片来源网络
展示区设计以“城市引力聚场”为设计理念,将商业活动、艺术空间、文化互动、开放公园等汇聚于此,紧密串联,产生共振,相互影响,吸引着人们纷至沓来。
⊙大规划分析
⊙活力剧场分析
景观艺术与建筑文化汇聚于此,共同打造复合、活力、多元的未来城市聚场,为周边市民提供文化交流与休闲娱乐的生活场所。
003. 建筑与环境
生态互联,和谐共生
规划布局采用整体统筹开发形式,与西侧公园绿地一体化设计。建筑朝向公园与街道,起于街角,景墙、台阶、绿植、喷泉、广场、跌水,直至入口,一路走来,它是场地游览路径的终点,也是未来TOD大盘展示的起点。
⊙建筑与环境分析
建筑形态同时兼顾城市公园与后湖大道的展示功能,既与西侧公园景观相呼应,又与南侧城市街道整体风貌相协调。
004. 空间与形态
源于山水,融汇未来
江城武汉,依水而生,设计提取并抽象了长江曲折流淌的形态作为立面元素,进而演变成一条贯穿建筑整体的折型挑檐,汲取长江磅礴之势,刻画出硬朗挺拔的建筑形象。既是展示窗口,又是未来繁华的入口。
⊙形态提取
⊙体块生成分析
立面采用现代主义的设计手法,用几何形体诠释艺术与科技的体验感。建筑主体由一条金属挑檐贯穿整体,轮廓清晰,结构明了。
位于主入口的L型通高金色雨篷,朝向公园与城市街道,吸引我们进入一个艺术的世界。雨篷最大悬挑长度7米,充分展现建筑张立美感。三层通高的灰空间,为人们提供短暂的驻足休憩空间,或洽谈、或思考、或驻足观望。
005. 材料与视觉
都市气息的材料艺术
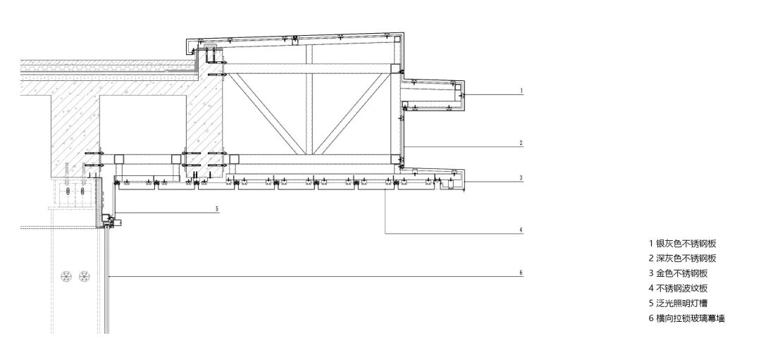
设计前瞻性的考虑使用大面积金色不锈钢波纹板,体现未来TOD大盘商业气质,材料本身具有独特的视觉效果,配合灯光亮化,彰显艺术气息和未来都会感。
通透的玻璃幕墙设计,模糊了室内外界限,与前场景观完美融合。南侧三层通高的横向拉索玻璃幕墙将室内艺术空间完美呈现,吸引来往的人们驻足观赏。
朝向西侧公园的9×24米超尺度多媒体展示窗口,成为激活场地凝聚力的重要载体,使整个建筑成为极具城市感、地标性、吸引力的TOD标杆。
西侧多媒体屏幕外层采用超白玻璃幕墙,内部安装P25分辨率的LED屏幕,不影响室内视线的同时,可清晰演绎多媒体画面。双层幕墙之间采用点支式连接构件,外侧的超白玻璃将气候幕墙对画面的影响降低到最小。
⊙节点大样图
⊙节点大样图
项目名称:龙湖·清能天曜展示中心
项目规模:2500㎡
设计时间:2021-2022年
建成时间:2022年5月
项目类型:文化建筑、TOD先行区
业主单位:龙湖集团武汉公司
设计单位:水石设计
设计内容:建筑设计
设计团队:商业公建设计部、建筑设计一部
照片摄影:直译建筑摄影
编辑排版:水石品牌
版权所有©水石设计,转载请留言获取授权
本文来自微信公众号“水石设计”(ID:shuishisheji)。大作社经授权转载,该文观点仅代表作者本人,大作社平台仅提供信息存储空间服务。










