"
塞戈维亚艺术与技术中心
Architect:S-M.A.O.
双锥圆顶
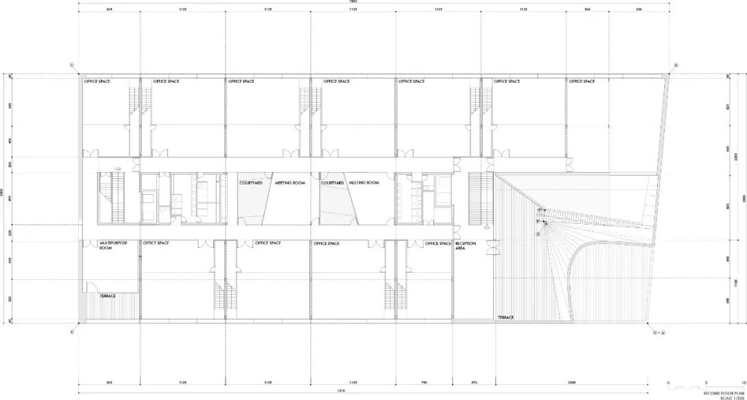
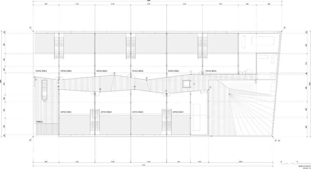
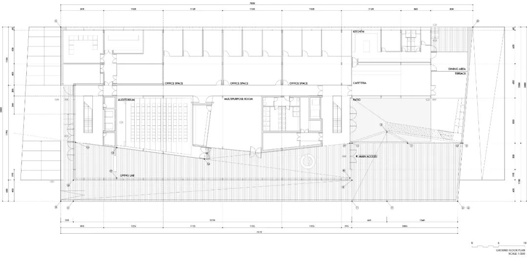
塞戈维亚艺术与技术中心(The Center for Arts and Technology ,CAT)包括三座建筑,每座都有各自的要求和用途,分别是知识中心、创新与商业发展中心和艺术创作中心,它们将分阶段陆续建造。
这三座建筑共同塑造出了一个城市空间、一个广场,彼此之间通过环绕的步道连接,另一方面也构成了建筑自身和外部之间的缓冲空间。建筑路径上的各个单点贯穿串联,实现了空间上的连续性。
本文来自微信公众号“匠山行记”(ID:gh_d836161f0f54)。大作社经授权转载,该文观点仅代表作者本人,大作社平台仅提供信息存储空间服务。










