/双层洞穴住宅,越南

双层洞穴住宅,越南

双层洞穴住宅

建筑类型:住宅

项目面积:190 m²

设计公司:H&P Architects
项目位置:越南 河内
项目时间:2017

双层外立面设计良好的阻隔了西晒光照,尘土和噪音等诸多不利的自然因素,同时将自然光照,雨水和风等有利条件带入居住生活空间里。


室内效果

细节效果

项目夜景

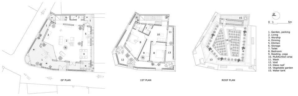
平面图

立面图

细节图

编辑 / 深海的带鱼一条   审稿 / 筱十九

本文来自微信公众号“建筑手记”(ID:DongXiXiaoYuanStudio)。大作社经授权转载,该文观点仅代表作者本人,大作社平台仅提供信息存储空间服务。