「宁波上宸美学馆」是大家地产携手界上设计,将现代地产体系的精工细作融入千年古城文脉的匠心之作。
竹亦得风, 夭然而笑。
——晋·王羲之《兰亭序》
序厅·错叠山水
整体而言,项目以在地自然与人文古韵为设计巧思,衍生出“错叠山水”的主题叙事场景,契合项目简约纯粹的美学属性。
序厅由一块贯穿的青色石台进行引导,灯光似流水般倾泻而下,顶面格子天花纵横阡陌,须臾之间模糊了室内外的界限,自然的材质勾勒轻盈线条,飞檐流苏,还原江南小镇诗画记忆。
“时间“,设计师在这里极力显现的主题。青台上的装置“新时器“趣横生,瓷”器“与石”境“对比,当代与传统共生;一隅的青铜异形凳上,光泽与斑驳共存,仿佛时光被写进颜色与肌理;摄影作品《石榴》更是用放大的细节展示时间轨迹。
△装置:新石器,艺术家:吴昊宇
殿宇·空间解构
沉淀·人文记忆
功能性与观赏性之外,本案通过精工细作的意式设计,在空间和软装之上,表达出了符合当代感的简约风格,以期观者产生内心的平静。
城市溪居
大理石包覆的隔断墙,遵循纯净灰白色调,创意设计的实木矮凳,为书房区平添艺术气息。
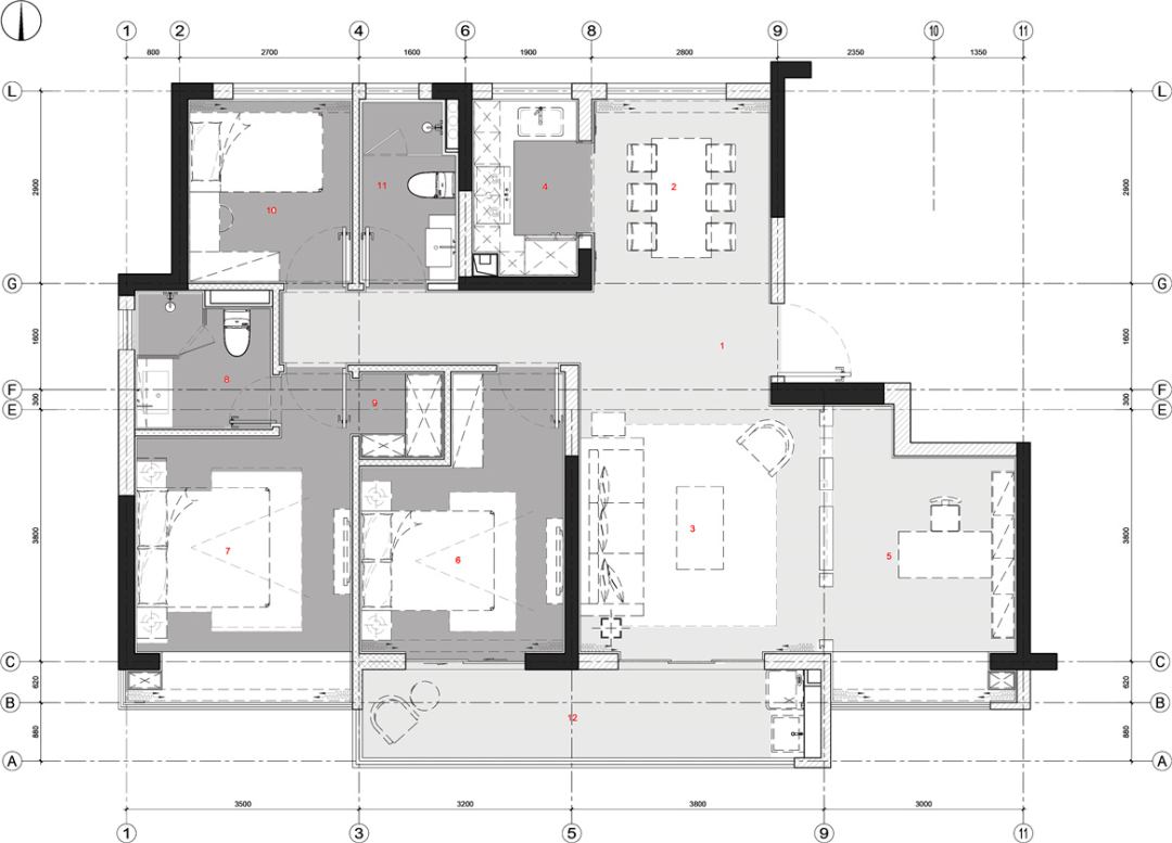
△平面图
「界上设计」是张蓉Jenny女士于2017年在杭州创立的室内硬软装设计品牌。张蓉女士曾与Promemoria、B&B、Molteni&C等四十余家意大利知名家居品牌展开亲密无间的合作, 并打造了众多标杆性的样板房和高端私宅项目。
作为较早将意式生活方式引入国内的室内设计品牌之一,「界上设计」秉承“超越边界,设计无疆”的理念,集聚国内外室内设计师,为高端房企提供售楼处、样板房整体解决方案,为追求个性生活的业主提供精湛的室内设计与陈设服务。
点个赞
点在看
本文来自微信公众号“一起设计”(ID:together-design)。大作社经授权转载,该文观点仅代表作者本人,大作社平台仅提供信息存储空间服务。










