南昌是一个古与今交叠的城市,
你能深深感受到它经时间所沉淀的文化
他又是一个充满闲适的城市走在街道上随处都是市井生活的气息…
她。简称“洪”或“昌”,
古称豫章、洪都。新中国成立后,
南昌制造了新中国第一架飞机,
是中国重要的制造中心、 新中国 航空工业的发源地。
土能生万物,地可发千祥。位于华侨城万科世纪水岸项目里名为山屿的218㎡华丽的联排别墅,紧邻多亩绿色森林,郁郁葱葱,周边院景以建筑做为主导展开,室内空间又以院景相互关联,“建筑个体,室内空间,景观庭院”紧密相连,缺一不可。
项目希望打造隐匿于绿色丛林中的世外桃源,透过寂静水庭、环绕廊道、采光天井、开放立面、自然景观等立体元素,营造沉浸式的自然体验。
▲平面图(车库+展示区+观影区)
-
在一个挑高空间的配置概念上,以营造空间的围塑感、三度空间的思维去安排区域和动线的体验,连接了场域和场域之间的关系,通过金属隔栅的隐喻分隔,制造了内空间的建筑连廊,同时让柜龛陈列更独立,空间又彼此相连。朦胧中营造出幽、雅、闲的天然真趣。
-
开放空间 没有局限的设定以材质表现连结整体空间 体验着设计的变化。
-
井然有序的做旧古铜板与格栅天花,开架形态,地面铺设,留有时间痕迹的艺术装置,无一不体现出空间对于人文情怀的注重。
-
机械展示区的柜子里陈列着父子俩收集的各种飞机模型和图册。墙上挂着儿子最得意的飞机手稿,边几上摆放着平时研究模型和图纸的放大镜和笔记本,沙发椅以飞机的弧线型结构为主,与此空间主题相契合。
-
负一楼为男主人重要会客空间与观影场地,整体材质色调以深色为主,浅色为辅。
-
石皮奠定空间的自然倾向,不锈钢表现出沉稳的调性,挑空区域的社交吧台延伸了空间视觉上的深度与广度。
-
整体空间各类材质做了完美的融合,巧妙地运用楼梯地台划分出区域的功能性。
-
平时父子俩在水吧台品酒,交谈,接待朋友。休闲观影区的电视里播放着父子俩爱看的电影,同时这是个父子俩平时接待朋友和相互交流的区域,展示柜里陈列着两人珍藏的收藏品和一些珍贵的雪茄工具。
-
在缺乏光线及景观的条件下将建筑的挑高层分块,增设夹层空间并开洞外推(向外向上发展),接受自然天光引入室内,新增设的夹层成了转换空间,在地下层也能感受到自然的光线。
-
夹层空间为家庭成员常驻活动场地,整体材质色调以浅色为主,深色为辅,整面墙的展示收纳书架,不仅构成了一处完整的阅读区域,也串联起了一家人的生活圈,每一本书籍都记录着时光的智慧,而每一件藏品都倾诉着流年的故事。
-
手作区以儿子的飞机模型制作为主题,儿子从小受父亲影响,成为一名飞机工程师,经常在家绘制飞机工程图纸, 研究一些飞机的机械零件。
-
书柜内摆放着一家三口经常阅读的书籍和平时旅行的照片, 周末夫妻俩陪伴孩子阅读绘本,儿子和儿媳喜爱旅行,喜欢看一些旅行类的书籍,同时身为服装设计师的 儿媳,会经常翻阅一些时尚类杂志和书籍。
▲平面图(客餐厅+玄关)
-
人们从室外回家,或者出门上班,是需要一些转换心情的链接。这些带有转换功能的设计会让人回家时彻底放松,抛开外界的疲惫;也可以出门后迅速切换工作模式,变得高效起来。设计师认为:这种室内的高高低低的韵律感,可以牵引心情达到一个自然而然的转变,在节奏较快的都市生活中是非常有必要的。
-
经过一处转折,应入眼帘的是开放大长厅的设计,将客厅沙发组与椭圆形大餐桌连成一线,六扇移门让厨房可开可合,功能让空间产生了火光与交集。视线随着室内天花按中轴线展开,感受中轴对称的儒学礼序关系和宗教的肃穆庄严,窗外园林的行望游居动线,让空间的进入感与空间层次感愈加丰富灵动,天花和壁面饰面的工艺缝隙处理让空间变得秩序井然,金属饰面的斑驳透露出时间的痕迹且让气氛变得严谨,天然石皮使得空间轻松的同时有效和室外的风景连成一线。
-
以大自然的石材、木皮组成灰阶调性的玄关,利用地坪划开既定的空间定义。立体的金属格栅屏风,洞孔矩阵似的分割,成为记录光线的地方。斑驳、扑簌的光影通过间隔映在墙面上和地板上,上演着关于光影的游戏。玄关处利用深色石材铺贴地坪与楼梯,幷特选用在漆黑中带有磨砂哑光纹理的低调保加利亚灰石材,压重玄关稳重地域性,达到空间缩放的效果。
-
独自享受品茗时光,在公领域也有一点私人的小空间,放松和思考。跟自己对话寻找一个片刻的安静。
-
依据建筑体的自然特点,在强调“写意”的休闲空间区域,设计师选择将室内外情景结合,庭院的悠然自得与室内的闲情逸致相辅相成,互为补充或许再多的功名成就都抵不过庭院的繁星漫天,品一杯茶的心境在此处被无限放大。
▲平面图(次主卧+公主房+儿童房)
-
次主卧为套房设计,进门材质分区,强调了仪式感,空间以铜板、灰、亚麻、黑色等深色为主,较之公共区域更添几分低奢感。整体大地的中性色系为空间注入了一个专属的调性,墙面运用了大量的橡木饰面,让空间整体更为温暖。壁面干练的线条分割与铜板表面的斑驳肌理,让气氛变得稍有严肃,黑色的奢石床头柜与乳白的发光云石背板让空间灵动起来,大片丝柔百叶漫射的温和光线,直接传达场域里安定温暖的情绪,并且配备独立的卫浴设备与衣帽系统,让各自拥有更多自我空间。
-
将空间切割再重新整合,运用再造原理,同时让不同时期的空间运用概念并存,不仅掌握各年龄层需求,提高既有的场域灵活性。
-
在空间的交叉规划中更强化人与人之间的交集与互动,多功能房之于各族群,一个跳脱框架的友善全龄化设计,新婚:夫妻共用书房,家庭 :-孩童用小孩房,整个架构让空间的可利用性更弹性多元。
-
低矮的床榻,阳角包弧,阶段性的设计考虑,父母放心让宝宝屋里嬉戏玩耍,软装饰品的置入,让氛围变得更加具有童趣,通过一片移门,空间可以得到更好的回应。
-
女儿房的材质色调浓淡上相对轻盈,符合稚嫩女孩的心境与喜好。营造得更加轻松舒适感,大面积的使用橡木饰面与床头壁布绷板,衣柜的玻璃门特地选用夹丝玻璃穿透间带有温暖颜色。
-
壁面线条转折到天花,让床品区充满包围感,床头两款壁布的交叠使用,让空间变得有层次起来。
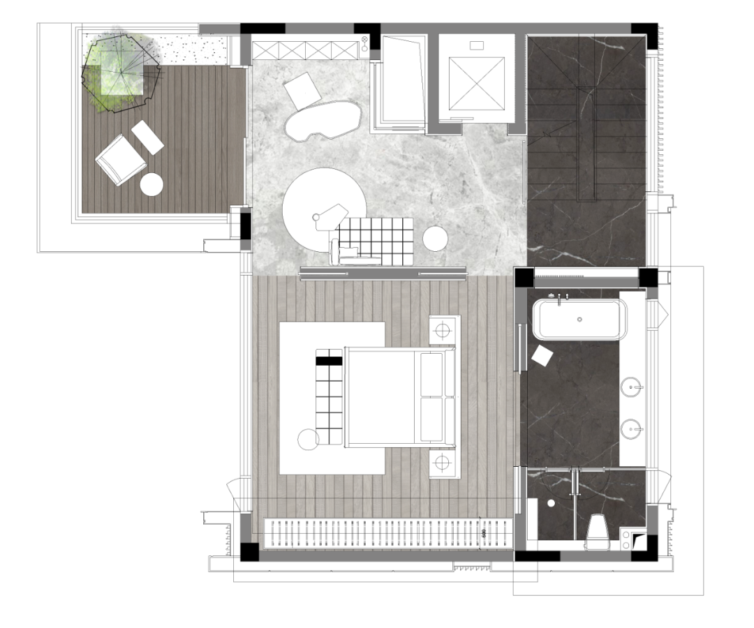
▲平面图(主卧+书房)
-
从书房设置的两道移门进入主卧室,这个动作可以看出两个空间的密切联系,主卧室整体以偏沉着,冷静的灰色系强调氛围感,橡木隔板序列组合为床品区带来一丝隐谧,主卧和衣帽柜以回廊形式相连,玻璃与黑色框架造就了一份错乱感,将几个区域的光景美妙衔接,床品南北摆放,映入眼帘是对岸的自然风景。
-
平面规划时,刻意放大的主卧卫浴使舒适性与空间感相对提升。壁面,地面以寒江雪做为主要材料,进入空间能感受到宁静致远的意境。
-
超长的台面不仅提供了足够的收纳,也满足了结构上的美感,光影透过屋顶格栅映衬到浴缸与地面。沐浴时,透过天窗望向无际的夜空,卸去身心上的疲惫,感受自然带来的惬意。
-
迈入三楼的第一个脚步,已然踏入了书房空间,但它其实是多元的,不仅作为书房使用,同时可以满足洽谈与起居的功能,或为男主人安于一隅的私用区域。
-
为增强感受,书房与电梯间共处一室,通过一扇转角玻璃,弹性划分了两个区域,映入眼帘的是寒江雪岩板刻画的背景,清晰可辨、纵横交错,和地面灰色保加利亚石材形成强烈的反差,背景上的壁灯为空间注入温暖的情绪,书架与粗狂的石材相结合,强调了人文和自然的整体氛围,通过屋顶天窗可以看到夜晚的繁星点点,左侧落地窗户可以看到城市脉络与四季的变化。
-
互动、守静、写意,在多量体建筑里,设计实现了多重意境,人文贯穿始终,而又自然共生。
Project Information
项目名称:华侨城万科 世纪水岸·山屿
项目地址:江西南昌
项目面积:218㎡
完工时间:2022年5月
设计单位:近境制作
軟裝單位: 遠域生活
摄影团队:山野攝影
About Designer
本文来自微信公众号“安德马丁”(ID:andemading)。大作社经授权转载,该文观点仅代表作者本人,大作社平台仅提供信息存储空间服务。










