“空间的一半依赖于设计
另一半则源自于存在与精神”
“Half of space depends on design the other half is derived from presence and spirit.”
——安藤忠雄(Tadao Ando)
-
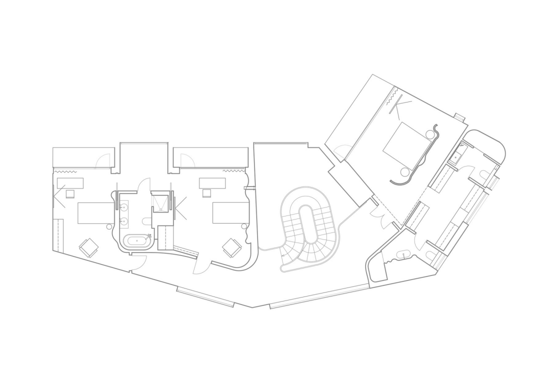
房子中央巨大的双光空隙激发了我们创造一个流动、优雅的楼梯的灵感。房子形状的棱角和锐利与内部形状和颜色的柔和形成鲜明对比。中央的壁炉向两侧开放,同时为楼梯走廊和带蓬松沙发的客厅供暖。
-
-
项目名称:HOUSE WITH THE STAIR
项目地址:阿联酋 阿布扎比
项目类型:住宅设计
项目面积:600㎡
主案设计:SERGEI COCHKIN
设计机构:LE ATELIER ARCHITECTS
-
SERGEI COCHKIN
LE ATELIER ARCHITECTS 创始人 / 建筑师
Le Atelier Architects 是一个专业团队,在建筑和设计领域创造和实施最具创新性和最大胆的想法。采用跨学科的方法,以便始终为的客户提供真正坚实的价值,在所有项目的开始就使用这些价值。资深的集体、对传统和最新建筑技术的无懈可击的知识、对所做工作的热情、无可挑剔的管理使团队能够通过设计完美的生活、工作和创意空间将所有这些想法和意义付诸实践.
首发 | LE ATELIER • 混凝土装置的艺术之家
ARTPARTNER | 安静纯粹的生活气质
BERTRAM BEERBAUM | 回归原始物境
INDULGE IN GLOBAL AESTHETICS AND DEVELOP DESIGN THINKING
本文来自微信公众号“美集志”(ID:MJZ-DESIGN)。大作社经授权转载,该文观点仅代表作者本人,大作社平台仅提供信息存储空间服务。










