.
项目类型 | 展厅空间
图片提供 | CSD.DESIGN
撰文 | 张轶青
这是设计师张灿带领他的CSD设计团队
历经三年的光阴
在富森美家居建材馆呕心打造的
在这个案例中,张灿以“突破・生长・生命”为破题契机,表达出我们对生长于土地之上生命的理解与敬意!这既是对“岩板”这种新型建材的本质性探讨,也是对“人”这种从弱小生命发展到今天,成为主宰世界发展格局的文明带着战栗的敬意!
在这里,张灿巧妙地避开了常规展示中心对产品的“物理性”的有机表达,转而深入到从岩石到岩板的概念生成,形成设计师的选材场所,让使用“岩板”这种材料设计的空间作品能够达到的视觉和触觉效果能够达到“同一性”的极限。
我们在设计中的很多设计修辞,都是通过材料,此外它也表达我们言外之意的,除了象征主义、暗示和隐喻。
设计师则是基于这样的想法和思维模式,用影射、借喻的手法,让“德赛斯岩板概念展示中心”有了“概念”的意指,让设计师在选材时有了回归初始的路径。
因此,在“德赛斯岩板概念展示中心”的构思中,设计师用类似于洞穴的空间建构方式,让我们在选材现场与实际岩板的应用空间之间,有了一段距离,而正是这段距离,产生了多种可能性,让我们有了表达。这可能正是设计师处心积虑的地方,他让德赛斯岩板概念展示中心与常规的展厅不同。
设计师反对现在流行的所谓“沉浸式空间设计”!因为那样太无能、太没有想象力了!他用土与火的变奏,构建出一种上万年的生命变迁的历程!
于是,在深灰的空间中,我们看到温暖的火光在闪动,充满诱惑、充满生的气息,硕长的条案是人们落座的场所,为了连接火的温暖和洞穴的坚硬与安全,设计师专门请知名的装置艺术家用草窠和竹片形成柔软的装置形成过渡,空间至此有了节奏的变化,也吟唱出生命由柔软到坚硬的变迁史。
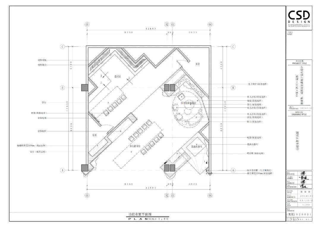
借用装置的散漫,设计师用极具抽象意味的“至上主义”方式,于是,在空间中不锈钢形成直线和圆,与草窠和竹片相互缠绕、形成“骨与肉”的关系蔓延着、生长着……设计师在这里用了“涩”的方式,使空间变得生动、性感、不再油滑:设计师利用空间的深度,将整体空间分为选材区和设计讨论区两部分,并最大限度地利用德赛斯岩板,在空间中划分出自然的形态,却不使空间憋屈、压抑,张弛有度,极具设计的戏剧性。
在众多夸张、极具表现性、奢侈品牌林立的富森美家居建材馆,“德赛斯岩板概念展示中心”以内敛、含蓄的方式独树一帜,在大多数展厅设计还在追求设计语言的流畅、空间利用率丰满的当下,张灿却用“涩”和戏剧化的场景作为语言,打动着我们,让我们思考生的意识,空间因而呈现出宁静而有意味的表情,这不仅需要设计师对设计要有深刻旳理解,也需要对社会上吹来的各种“风气”有自己笃定的认识。
MORE INFORMATION
ABOUT PROJECT
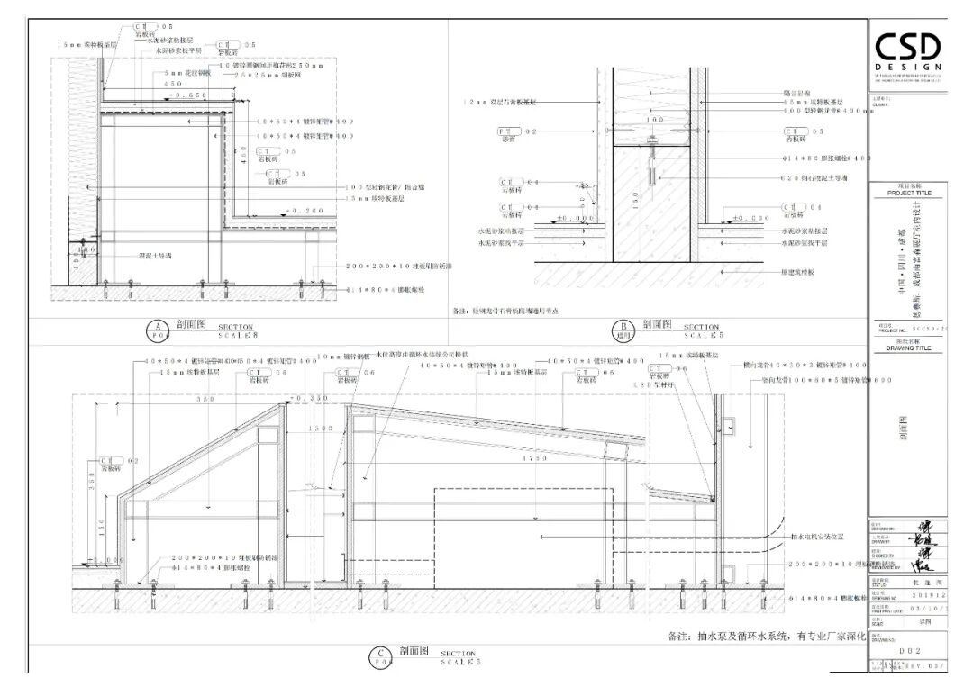
- 剖面图3-
CSD.DESIGN是创立于1998年,集建筑设计、室内设计、软装设计、陈设设计、园林设计、平面设计、品牌策划等综合性、研究性、国际化的专业设计品牌,在酒店、办公、会所、文创、豪宅等多类型空间的综合性设计研究上有独特见解。在研究和探索的过程中,我们始终抱着只为精品,体现设计的最大价值,按照图纸中的每一根线都是一份责任,来要求自己。CSD.DESIGN的品牌战略将从国内一线品牌发展为全球性品牌,我们参加全球性的赛事、建立国际化的合作,整合资源,共同完成项目的策划、研究及执行,从全球视觉为客户提供最优的解决方案。
CSD.DESIGN × 成都市当代艺术馆
CSD.DESIGN × 成都市天府美术馆
CSD.DESIGN × 成都图宴餐厅
- 近期好文 -
VGC韋髙成设计 × 天府国际商务中心
沈敏良设计 × 大益茶·徐徐泡茶
- END -
*本项目由CSD.DESIGN投稿,
版式由AXD编辑制作,
如需图文转载,请联系AXD授权;
如需获取项目相关资料,请联系CSD.DESIGN。
若您有明确的项目设计需求
且苦于寻找与之匹配的设计机构
可微信(ID:AXD_readers_club)与我们联络
我们乐于为您提供专业咨询与建议
为CSD.DESIGN点赞并点亮在看▼
本文来自微信公众号“AXD空间艺术”(ID:AXD_spaceart)。大作社经授权转载,该文观点仅代表作者本人,大作社平台仅提供信息存储空间服务。










