地址:捷克 布拉格
面积:150 平方米
时间:2022年
摄影:BoysPlayNice
Tags:媒体\出版,诗人文化气质、极简主义、绿植花房、白色、暗绿色、伊甸园、时尚办公网
建筑师Tomáš Císař和设计师Johana Sedláčková Vamberská联手为一家独具特色的初创公司——Poetizer——世界上最大的诗歌爱好者的社交网站和数字出版社——设计新办公室。项目位于布拉格最活跃的街道之一的一幢建筑的四楼。
Poetizer是世界上最大的诗歌主题社交网站,有来自120多个国家的用户在这里发布诗歌。这家初创公司的愿景是彻底改变出版业:他们最近推出的生态平台使出版过程民主化,允许任何人分享和销售他们的诗歌。他们在布拉格的办公室也体现了这种精神:室内设计是由对环境的责任感和极简主义心态为驱动。
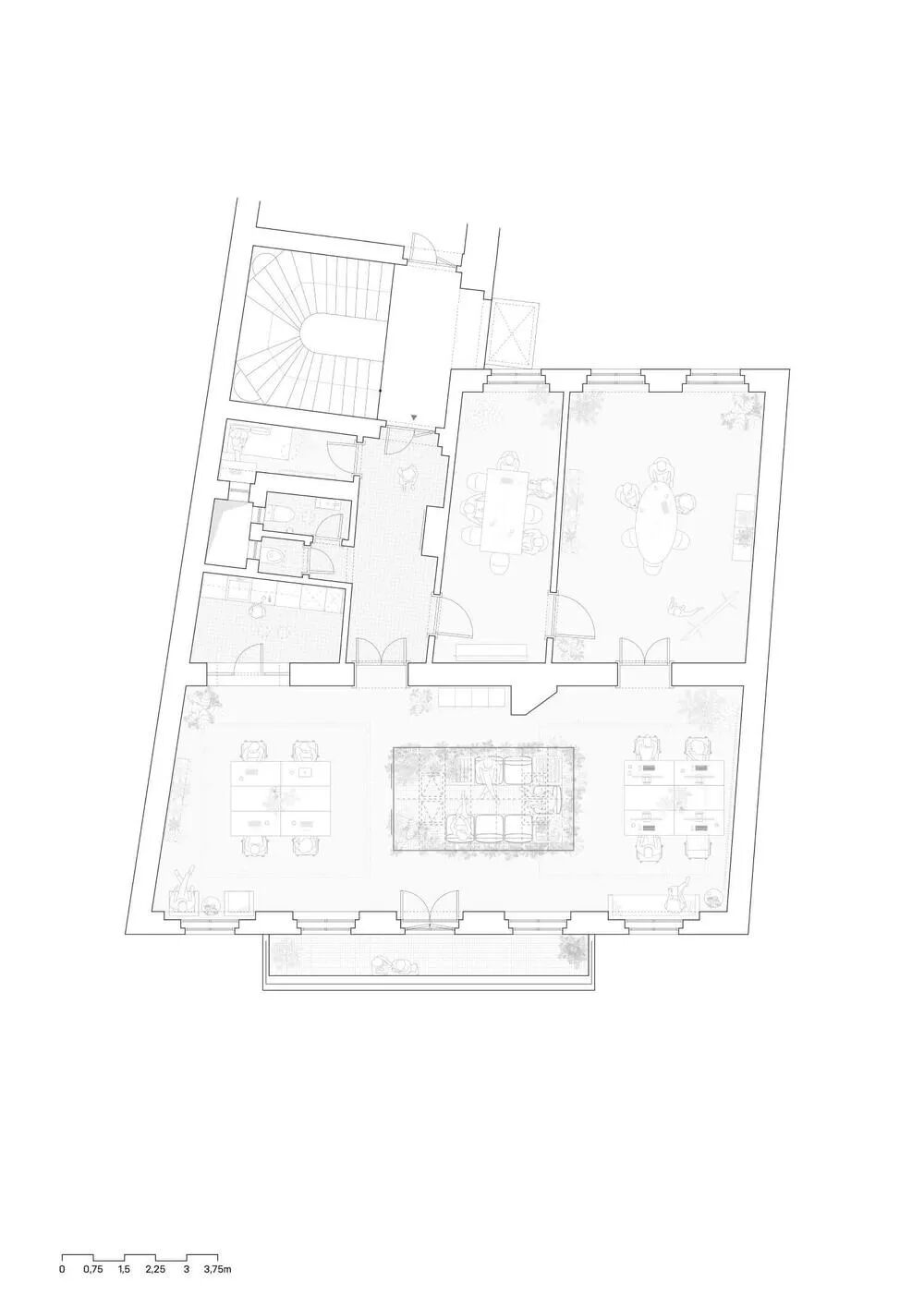
这处绿植花房灵感来自克劳德·列维·施特劳斯的思想观点。这位法国人类学家将直觉和联想思维比作富饶丛林的生态系统,与严格的理性思维形成对比。我们的古代先祖和当代诗歌都按照这样的结构系统运作:此办公室明确的空间元素也表达了这种自由思想。
绿植花房共种植了170多种植物,是非正式聚会、诗歌朗诵或休闲放松的场所。这处空间还容纳了两处岛状布置的工作站(办公桌带有滑轮可轻松移动、自由组合),用于日常工作和会议需求,而且这里还与厨房和阳台直接相连。
此外,从接待区可以进入另外两间会议室和一间可用于专注工作的独立小房间。
室内所使用的色彩和材料也体现了每个空间的功能。如白色,它是纸张的象征,是为专注工作区而设计的颜色。用于交流或社交的区域,则使用了暗调的深绿色,并点缀以品牌的橙色,形成对比的同时,打破暗调的沉闷。
本文来自微信公众号“时尚办公网popoffices”(ID:popoffices)。大作社经授权转载,该文观点仅代表作者本人,大作社平台仅提供信息存储空间服务。










