UND设计事务所
Shenzhen, China
享受时光静好,一分一秒
生活中的喜悦不是在特定的时间、地点才会发生,也不需要用力去寻找。正如gaga所提倡的“全时段享乐主义”,为不同的城市带来新的活力和热情。gaga和UND设计始终希望能够在忙碌的都市生活外,可以开辟一处“绿洲”,让人们在此全心享受生活。
01|城市 — 时代的丰富性
在当下快节奏的社会中,城市的呼吸变得急促,生活和工作之间的界限变得模糊。整个城市处于被束缚着的状态,跑得很快,但并不自由。设计初衷是在城市中划出一块绿洲,让人们慢下脚步,在此处轻享片刻闲暇,感受自由的思想和社交带来的愉悦。给予生活一些喘息,找回生活中的那份喜悦。
©小乐
©小乐
©小乐
设计将原有的建筑外墙玻璃拆除并内退,在立面上形成错峰的凹凸关系,让原建筑的界面变得模糊,拉近与城市的距离。通透的立面让外部的视线更好地延伸至空间内部,使整片“绿洲”构成一个半开放性的社区型空间,人与人的社交关系在此也得到了更为舒适的延展。
©UND设计事务所
©小乐
空间材质以温和的木质搭配绿植为主,让人与物的关系从城市的工业属性转化为自然属性,为就餐空间创造一个具有场景性的绿洲环境。空间气质上尽可能避免给人一种“效率化”感受,颜色、材料选择尽可能地体现“亲生物性”,而空间中留有原建筑的迹象,让二者之间并没有形成强烈的分隔感,使其相互保持着一种对立与统一。
©小乐
©小乐
内置的餐位也呈现出多样性,满足了不同群体在不同的时间段的进餐需求。柔和的光照恰好打亮就餐区域,结合温润的木色与品牌特有的暗绿色为空间基调,给予顾客一个松弛且自然的用餐氛围。光影的捕捉是对时间流逝最好的记录,光的生命强而有力,在材质上及形体上,缓慢地留下痕迹,映射出时间与空间的流转,二者之间融合而又统一。
©小乐
©小乐
©小乐
©小乐
空间满足了不同人群的就餐条件与多样的社交需求,在各种的时间段不同的群体皆可来此就餐。“绿洲”坐落于都市中,在此提供全时段各类餐饮的休闲空间无疑是必要的。全时段用餐空间亦是对人们工作种类变得更加丰富,社交需求变得更加多样的回应。
©小乐
©小乐
©小乐
©小乐
将更加整合的生活状态重新赋值,场景化的就餐空间呈现出轻餐饮及社区性的文化氛围,正如gaga的品牌理念,探寻真正适合自己的生活方式,找到内心的平衡与快乐。一味追求效率及速度并不见得是最好的,打造具有归属感的空间,优化都市人的生活品质也很重要。放松下来,进行闲暇的享乐主义生活,人们围聚在一起,追逐光影享受宁静。
©小乐
©小乐
©小乐
©小乐
天花上若干木质板片横竖交错,板片上随机开出大小不一的洞口,板片的“简洁性”好比一张画布基础,透过板片的洞口和板片之间的缝隙将原本应该隐藏在内的天花管道体系的“复杂性”给强化出来。
©小乐
©小乐
当工作和生活交织在一起,意味着生活中那种纯粹享受自我的时间将会越来越难得。UND设计给这片城市留余呼吸的空间,在绿洲里重拾生活的喜悦,或许这更有意义。gaga店面在不同的城市落地是起点,但远不是终点。
©小乐
©小乐
©小乐
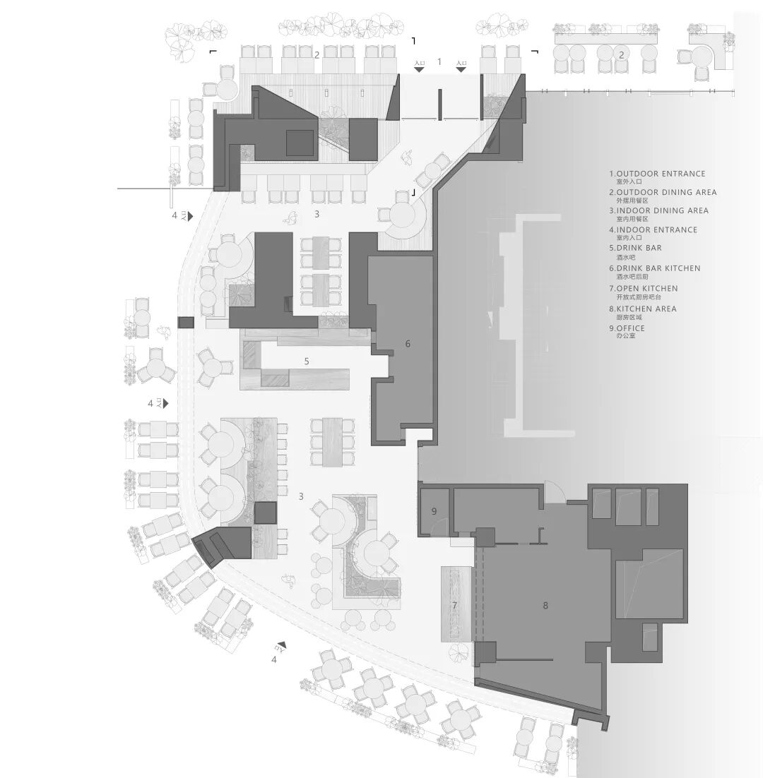
平面图 ©UND设计事务所
剖面图 ©UND设计事务所
立面图 ©UND设计事务所
室内设计:UND设计事务所
设计主创:马英康、马衍浩、张明统、王润维、黄树斌
设计团队:周昊辉、谭炫华、陈希雯、莫受觉、黄爽
施工团队:深圳市领尚装饰设计工程有限公司
项目地址:中国,深圳
项目业主:gaga鲜语
项目图片:小乐
▼ 公司介绍
UND设计事务所,由几位青年设计师共同创立。致力于在东方与西方、传统与现代之间寻求融合与突破,关注当代美学与空间尺度的合一,实践和探索多维度的思考方式,以衡量实际环境及空间运用为准则,在经济与美学的原则中寻求适当平衡,推动创造每一项设计的唯一性和空间创新体验。UND从商业品牌体验、室内设计、建筑空间、产品设计等领域为客户提供创意设计服务,以严谨的专业设计服务和多维创作思考为每个项目带来高溢价的设计价值。
本文来自微信公众号“OffsetDesign设计偏移”(ID:offsetdesign)。大作社经授权转载,该文观点仅代表作者本人,大作社平台仅提供信息存储空间服务。










