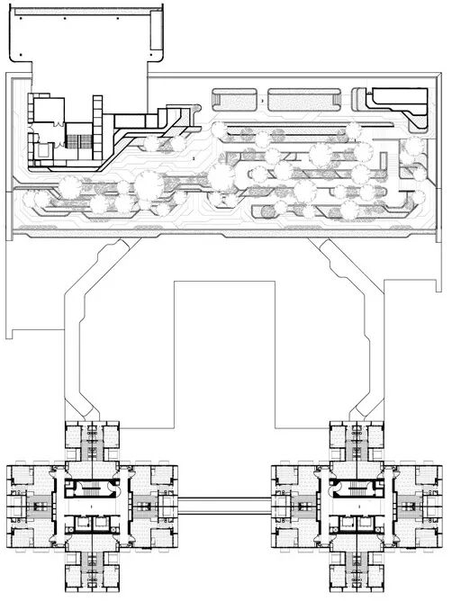
01
海军部村庄-WOHA
居家养老+社区养老+医疗中心+
公共社区中心+商业+公共交通
02
黄庭芳综合医疗社区-deciBel (Architecture)
医疗中心+社区养老+周边商业+公共交通
03
竖向复合养老社区的特点
版权说明 | 本文分享自网络,版权归原作者所有。
本文来自微信公众号“睿商业”(ID:sylsysydc)。大作社经授权转载,该文观点仅代表作者本人,大作社平台仅提供信息存储空间服务。
01
海军部村庄-WOHA
居家养老+社区养老+医疗中心+
公共社区中心+商业+公共交通
02
黄庭芳综合医疗社区-deciBel (Architecture)
医疗中心+社区养老+周边商业+公共交通
03
竖向复合养老社区的特点
版权说明 | 本文分享自网络,版权归原作者所有。
本文来自微信公众号“睿商业”(ID:sylsysydc)。大作社经授权转载,该文观点仅代表作者本人,大作社平台仅提供信息存储空间服务。
