Kloof 119A
室内设计
INTERIOR
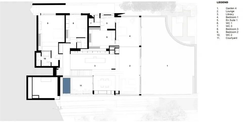
居住者首先从介于石墙和房屋之间的金属大门穿过一个小型的门厅,随后便进入到花园庭院内部。
庭院的氛围十分安静。
整栋住宅分为三个楼层,顶层的视野最为开阔,容纳了开放式厨房、餐厅和休息室等大部分起居空间。
从主入口,进入便可到达房屋的顶层休息区。
四周是落地玻璃,将外部风景尽数纳入屋内。
客厅两边的落地玻璃门可以完全打开,将室内的客厅转换成一个半室外的凉亭。
最前面还有一个无边泳池,可以一边俯瞰全城风景,一边享受阳光和水的照拂。
客厅角部悬挑,没有柱子的遮挡,视野开阔明朗。
室内空间的整体设计以原木为主,干净整洁。
办公区和卧室位于二层;书墙隔出工作间。
直跑楼梯旁边,也有一处小花园,工作疲倦时,可以走进小花园里散散心。
与顶层木板与大面积玻璃的装饰形成对比的是,二层主要材料选择了更重一些的混凝土装饰,最底层则以黑色为主。从低到高,选用的材料也越来越轻盈。
车库、健身房、家庭影院和客房则位于最底层。一条长长的坡道从街道引向最底层的车库。
每个楼层专属的花园和庭院从山坡一路延伸至房屋,在带来视觉遮挡的同时也为住宅引入了光线和新鲜空气,使建筑与自然的关系变得更加亲密。
室内空间采用了OKHA品牌的家具,包括Hunt沙发和Nate、Nicci Nouveau扶手椅等。摆放在顶层庭院的Planalto餐桌成为了空间中的焦点,可以用作工作区或私人空间。休闲区的To Be One和Lean On Me落地灯也是由OKHA提供。
☜ 滑 动 查 看 平 面 图
点个赞
点在看
本文来自微信公众号“一起设计”(ID:together-design)。大作社经授权转载,该文观点仅代表作者本人,大作社平台仅提供信息存储空间服务。










