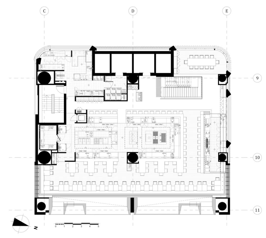
最新文章2024-02-20 赛博朋克风,东京 Yakimono 餐厅设计 墨尔本是世界上伟大的国际大都市的餐饮城市之一。它的餐厅多种多样,种类繁多。Yakimono是代表这种伟大餐饮文化的最新场所之一。 Yakimono位于柯林斯街80号的重建项目中,共有三层,占地685平方米。它的设计参考了雨后的东京街道和这个伟大首都的活力和能量。从充满电力和活力的入口开始,Yakimono显然是为了把你带到另一个地方。从你进入一楼餐厅的那一刻起,从其挑衅性的LED和霓虹灯入口到声音和灯光的袭击,你的难以置信的感觉就被暂停。 这家餐厅充满了活力。沿着楼梯往上走,你就进入了另一个世界,这是一个霓虹灯下的沉浸式空间,有一个大型的中央厨房、吸烟烤架和传统居酒屋风格的周边座位。但这并不是一家传统的日本餐馆。它的风格和方法是澳大利亚独有的。 在外部玻璃和主要流通楼梯上使用二色性薄膜,创造了一个随着你的移动而变化的环境。大型圆形吊灯根据你在餐厅内的有利位置而改变颜色,因为它们被应用在大多数玻璃表面的二色性薄膜所反射。日本传统的松木和橡木的使用与抛光不锈钢图案的反光天花板形成鲜明对比。隐蔽的声音衰减和夜总会级别的音响系统为这家餐厅增添了活力和生机。坐在吧台前成为一种变革的体验。 上层是酒吧,卡座是仿照日本火车上的座位设计的。这一层的体验有一种不同的能量,但反映了澳大利亚对日本体验的同样独特的看法。餐厅的所有家具都是当地制造的,座位由Ross Didier为JRF设计。桌子和综合家具是由建筑师设计的,与整体概念相一致。因此,这个空间是完全沉浸式的。从运营的角度来看,服务模式和员工流程与顾客体验同样重要。这家餐厅的设计将形式和功能完美地结合在一起,为顾客提供了一个无缝的体验。 项目信息 项目地点:澳大利亚・墨尔本 编译/排版:微信公众号 T5OP设计网 项目时间:2022年 本文来自微信公众号“T5OP设计网”(ID:T5opCom)。大作社经授权转载,该文观点仅代表作者本人,大作社平台仅提供信息存储空间服务。 TAGS: 体验日本活力设计餐厅 相关文章英赫日报 | 李宁 × 空…米兰时装周的异星来客,用结…米兰“MoLo”移动与物流…西班牙艺术家 Juan d…把小鸟画成美少女,她弃医从…这些鸡蛋包装不只是有趣,设…国产文具又炸了!晨光再造“…七点资讯 |《更衣人偶坠入…AlphaDraw筑绘通「…秦始皇的黑,是你不懂的黑。