source:google.cn
dop设计(ID:dopdesign)原创
作者丨dop设计
编辑丨那兰
作为设计师的我们都知道,一般会在交图前的5天左右进行图纸的审图工作(上级领导审图),而在此之前,我们还有一个比较重要的工作就是自审图纸。
那么,今天我们就从以下六个方面来说说自审图纸的内容和相关注意点:
1、封面、目录、设计说明、材料表
2、平面图
3、放大图
4、立面图
5、节点图
6、门表图
封面、目录、设计说明、材料表
source:google.cn
1、封面
首先,应该仔细核对项目名称、版次、日期(同图框相对应)、单位名称、图纸专业等封面内容;如果项目名称都错了,那就真的是没得救了,还和业主说我们是专业的设计公司?!说了鬼信啊,反正我不信!
(PS:顺便插一句就是现在大项目都用图框参照,那么图框上面的信息修改一次就能保证正确性)
2、目录
其次,关于图纸目录这项内容,通常每个公司有自己的标准模板,需要审对及注意的内容主要包括以下几点:
a、图名、图号同图框编号
b、图纸数量与图幅大小的选择
c、出图日期、修改版本日期
d、是否有本次不出图的内容并已标注
e、特殊备注内容等
△图纸目录示例
3、设计说明
关于设计说明的内容,就比较繁多,然而同类型的项目又大体相似,所以在自审图纸时,通常需着重注意工程概况内容、精装修设计范围、各类图例说明、材料与工艺的说明、各类规范要求等。
△图纸设计说明示例
这里重点说明一下,设计师们应该尤其注意规范图集是否过期,要选用现行版本。这是很容易被忽略的一点...
4、材料表
与设计说明相类似的,项目材料表在自审图纸时,需注意工程概况内容、精装修设计范围、各类图例说明、材料与工艺的说明、各类规范要求等。
除了要注意规范图集应为先行版本外,还需注意以下两点:
a、不要出现同种颜色材料的2个编号
b、平面、立面、节点、门表系统图纸标注材料要和材料表相匹配
△图纸材料表示例
平面图
source:google.cn
1、平面布置图
a、轴号:轴号顺序是否正确、轴号尺寸是否完整,如果是多层平面图,要注意每层平面图的轴号定位、轴号尺寸等内容是否保持一致。
△图纸平面布置图示例
b、文字:空间名称是否正确、字体大小是否一致。
c、门编号:门编号及类型是否按照门表图进行分类并统一标号。
d、索引:柱子的索引号、消火栓索引号等其它索引号是否正确性。
e、其他标注:楼梯及台阶的高差关系(上下标注),不同线形、范围示意或功能示意标注等。
△图纸平面布置图示例
2、尺寸定位图
a、尺寸标注:尺寸是否是统一原则的标注,按完成面标注还是原始建筑墙标注;哪些尺寸是要标注的,哪些是不要标注的。明确后,既可以减少工作量又可以方便后期施工。
△图纸尺寸定位图示例
b、索引:索引号是否按照逻辑来排序,索引号顺序和立面图纸是否对应上。
c、图例说明:检查图例说明中的材质是否可明确区分,填充图案是否正确。
△图纸尺寸定位图示例
3、地坪图
地坪图包含的内容比较多,既要保证图纸全面、完整、清楚,又要保证简洁明了。通常需要审对和注意的内容可以概括为以下几点:
a、地坪铺贴的起铺点需定位
b、地坪铺贴的模块示意图(根据地面拼花的样式决定是否需要)
△图纸地坪铺贴模块示意图示例
c、地坪标高标注(尤其是卫生间地坪降低了多少要标明)
d、地漏、管线等定位
e、地坪节点索引号是否和节点相同
f、门槛石材质标明(同一种门槛石可写备注上说明,不需要每个都表达)
g、不同材质要用不同的填充图案来区分
△图纸地坪铺装图示例
h、卫生间散水线需示意并标注相应坡度
i、家具的显示问题(通常固定家具显示,活动家具隐藏)
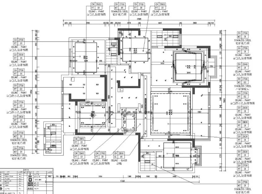
4、天花造型图
a、标注:每个造型的标高、尺寸、材质等(只标造型尺寸,不要标灯具)。
△图纸天花布置图示例
b、索引:检查天花节点索引号是否和节点相同。
c、显示:家具的显示问题(通常固定家具显示,活动家具隐藏)。
5、灯具定位图
a、定位:若有三级放大的图纸,则不需要灯具定位(在卫生间、电梯厅等三级放大图上面定位即可);当需要单独绘制灯具定位图时,可通过找规律,使用cl居中、EQ等关系进行定位。
b、图例:灯具图例及灯具型号是否一一对应。选用的型号是否符合设计要求。
△图纸灯具定位图示例
6、综合点位定位图
综合点位定位图通常需要审对和注意的内容可以概括为以下几点:
a、点位定位是否都完整全面,是否和机电设计提资过来的内容相符
b、点位的规范要求是否满足(规范要求已经说过很多次,就不强调了)
c、点位的图例和说明是否匹配
△图纸综合点位定位图图例说明示例
7、机电点位定位图
机电点位定位图通常需要审对和注意的内容可以概括为以下几点:
a、点位定位尺寸是否都完整全面,准确无误
b、特殊点位是否标注清楚,注明安装高度等具体内容
c、点位的图例、名称、说明等是否一一对应,是否表述清晰完整
△图纸机电点位定位图图例说明示例
8、墙身材质索引图
在一些比较大型复杂的项目里,通常会有选择性的绘制标准段的立面和主要立面,所以那些立面不单独绘制的,就用墙身材质索引图来表达该位置立面的材料。
墙身材质索引图通常需要审对和注意的内容可以概括为以下几点:
a、不同材料之间要有明确的区分
b、选用的材料标准是否准确
c、图纸标注的表达方式是否清晰:常用的表达方式有两种:
① 注明墙体材料的标号
△图纸墙身材质索引图示例
② 用不同颜色的PL虚线表示(打印的时候使用对象颜色打印即可)
△图纸墙身材质索引图示例
如何进行深入的图纸自审,完整而具体的内容可以到《dop室内施工图项目流程管控》来学习全流程
△长按扫码,进入专栏学习~
放大图
△source:google.cn
1、标注
放大图的标注内容通常需要审对和注意的方面可以概括为以下几点:
a、轴号、轴线及轴网的尺寸标注是否与总图保持一致
△图纸放大图示例
b、立面尺寸标注是否与平面图保持一致:建议立面标注只标注造型尺寸,因为所谓标的越多,可能错的越多,其他图纸能表达清楚的内容,就不要重复标注,一旦标注错误,不如不标注。
c、立面标高标注是否完整,准确:这里特别说明一下,卫生间的标高通常与楼层标高不同,需要确认卫生间标高是否有降低或抬高,需标注清楚,并与平面图保持一致。
d、卫生间洁具型号的标注是否完整,准确:既然我们标注了那么我们就要标注正确,要确保编号要同洁具选型表上面的编号相同。
2、索引
放大图的索引内容通常需要审对和注意的方面可以概括为以下几点:
a、总图的区域索引是否绘制:因为一层可能有几个电梯厅、卫生间,让看图的人清楚的知道是哪一个区域,所以总图索引是有一定必要的。
b、相应的立面索引是否绘制并完整准确,立面造型索引号是否与相应图纸匹配
△图纸放大图示例
3、图例说明
相对应的图纸的相关图例说明是否准确完整,注意图例的比例及线形,一些图纸因为比例及线形原因导致最终打印出来看不清楚,或与其他图例线形不一致,影响图纸表达效果。
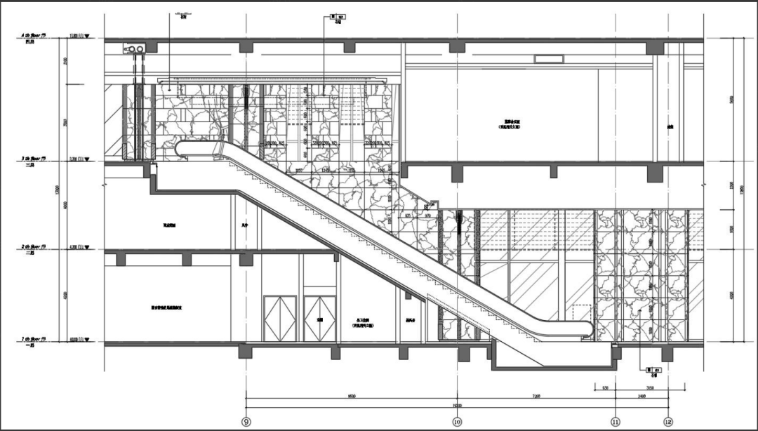
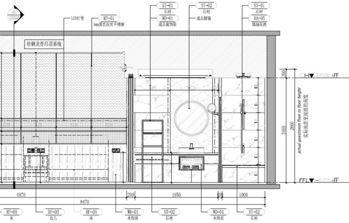
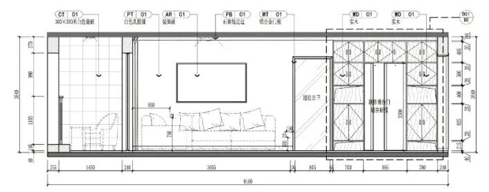
立面图
△source:google.cn
1、绘制内容
a、立面轴号是否需要:如果需要赶紧补上,这个问题不应该是最后才发现的,之前画的时候应该就要确认是否需要,不要到了最后才发现。
b、楼板和梁是否需要绘制:若绘制建议要么按照最终结构图纸标注准确的尺寸,要么不做尺寸标注,还是标错不如不标的原则。
△图纸示例
c、不同材质或同材不同色的区域区分是否清楚完整:通常不同材质的区域会用不同的填充图案来区分,注意同材不同色的位置通常可以通过不同的填充图案或同图案不同比例来区分。
d、线形区分是否明确准确:图纸中哪些是粗线,哪些是中线,哪些是细线,哪些需要淡显等等,一定要设置好,这样出来的图容易分清楚关系,同时具有一定的美观性。
△图纸示例
e、立面与平面的关系是否绘制准确,是否绘制全面:这是最重要的一点,也是最致命的一击啊!
2、标注索引
a、横向、竖向的标注尺寸是否是统一标注距离:这个没有对错,但是却应该符合制图标准规范要求,而不仅仅觉得只是画图的一个习惯和美观的要求而已,制图应该是严谨的。
b、立面尺寸标注是否与平面图保持一致:建议立面标注只标注造型尺寸,因为所谓标的越多,可能错的越多,其他图纸能表达清楚的内容,就不要重复标注,一旦标注错误,不如不标注。
△图纸示例
c、立面索引是否与节点图保持一致:索引号需与节点号对应一致。
d、立面的门窗等是否需要标注编号,并与门表图保持一致:根据项目需求标注。
e、立面的标高标注是否与平面图保持一致:立面标高需按照天花图和地坪图核实,特别注意天花造型标高及卫生间标高是否特殊。
f、立面的材料标注是否正确全面,标注线是否点到所标注区域或位置
△图纸示例
g、空洞的地方需要表示为开敞或者是通往哪个区域
节点图
△source:google.cn
1、绘制内容
a、图名下方是否备注节点所在位置:备注好是哪个区域,方便了解节点是哪个地方的。
b、节点图是否与立面索引保持一致:节点号需与立面图中索引号对应一致。
c、天花节点的内部基层是否表达绘制
△图纸节点图示例
d、地坪节点是否是一个区域的,若不是一区域表达出来是哪个位置的
△图纸节点图示例
e、墙身踢脚需要带到地坪,表达出地坪关系
△图纸节点图示例
f、地坪模块是否有放大图
△图纸节点图示例
g、节点有剖段的地方加剖段线,剖到的面和看的面是否有所区别
h、固定家具竖剖面,剖到地面最好不要带到地坪结构,只画一条线即可:因为如果地面材质改了,那你这个固定家具地面也要跟着改,那还不如不画。
2、线形比例
a、节点图的比例是否合适合理:图的比例要适合,不要太大了看起来吓人,太小了看起来需要放大镜。
b、材质图案填充的比例是否与图纸比例一致或适合:与图纸比例一样,图案填充的比例要适合并整体一致。
△图纸节点图示例
c、线形的使用原则:图纸中哪些是粗线,哪些是中线,哪些是细线,哪些需要淡显等等,一定要设置好,这样出来的图容易分清楚关系,同时具有美观性。
门表图
△source:google.cn
1、尺寸定位
门表图的内容相对简单,尺寸定位通常需要审对和注意的方面可以概括为以下两点:
a、立面尺寸同横剖竖剖尺寸应准确,并一一对应
△图纸示例
b、门把手是否绘制,其高度是否有尺寸定位
2、材料标注
门表图的材料标注通常需要审对和注意的方面可以概括为以下两点:
a、材料标注样式是否统一,清晰全面
△图纸示例
b、门的五金件是否表达
有关自审图纸的内容就先给大家讲解到这里了,总之,图纸自审需要你慢慢的来一条条的去进行审查的,而不要盲目求快。
更多施工图制图技巧,今晚dop设计视频号直播间来教你
点击预约~
最后,关于施工图项目的全流程内容,大家可以到设计得到官网专栏的《dop室内施工图项目流程管控》中寻找答案~
△长按扫码,进入专栏学习~
下面,还是用一张导图来总结一下今天的内容:
△点击保存,欢迎转发分享
△文中部分图片源于网络,如有侵权,请联系小编~
推荐一个优质公众号「1m建筑装饰沙龙」
收获更多工艺干货
现在关注还可立领《2022室内设计及施工》资料大合集
仅限24小时内领取!
领取设计大礼包
- End -
看完记得点赞、转发、在看3连
文中部分图片源于网络,如有侵权,请联系小编~
加dop032,领“dop设计大礼包”
点击“阅读原文”,为自己的实力加分!
↓↓↓
本文来自微信公众号“dop设计”(ID:dopdesign)。大作社经授权转载,该文观点仅代表作者本人,大作社平台仅提供信息存储空间服务。










