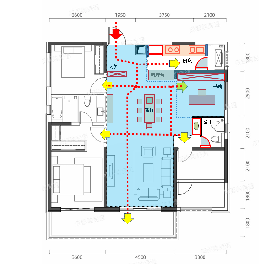
最新文章2024-02-21 如何让大户型(改善型)看起来“更大”! 01 楔子 前段时间,我写过一篇《观点| 如何让小户型看起来“显大”》的文章,大家反响比较热烈。而恰巧最近又有两个朋友向我咨询户型的问题,而他们两家的户型都是120平以上的改善户型。 由于建造时地产商用相对“平庸”的设计手法创造了它们,所以客户买了之后发现:不那么符合自己的需求。找到我,就是希望我能给点意见。 我发现:改善型的大户型并没有因为面积大了就挑不出“毛病”,同样有“面子”没照顾好的问题。所以才有了今天这篇文章,如何让改善型户型看起来更大。 02 案例一:L型公区 先上第一个案例,是成都的一个朋友在网上和我咨询的,他买的这个房子是158平的,应该算改善型户型里比较“奢侈”的了,但同样有不尽如人意的地方。(如上图) 一、问题梳理 1.这个户型最大的问题是北侧没有开窗的位置,而东西两侧可以采光,我一开始还误认为是农村自建房。餐厅窝在九宫格的正中间,几乎没有采光的可能,所以略显尴尬。 2.一进门,就能把整个客厅尽收眼底、一览无余,也比较尴尬,不符合改善型的定位。 所以,从这两个大的问题出发,我做了一轮平行设计,只针对公区(如下图)。这里要强调:建筑师做平面功能的调整,都是基于结构和设备可行的基础上,而不是想当然的天马行空。 二、平行设计 1.在进门位置做了一个玄关,我假想的是“透而不露,隐隐约约”的感觉。这样可以使得进餐客厅之前有个欲扬先抑的过程。平铺直叙,总觉得缺少了点趣味。 2.通过设置玄关,同时也改造了厨房的出入口方向,使得进入厨房更加直接。增加的料理台也能使得厨房和餐厅的互动更频繁。 3.餐厅在现代生活中已经不是那么纯粹了,吃饭只是很小一部分的功能。还可以干很多其他有趣的事情(就好比我现在,就在餐桌上写文章)。所以一个大餐桌能改变一个家庭的很多生活方式。 4.我将餐厅和书房之间的那堵墙打开了,让餐厅可以变得更加敞亮,却意外的发现:和我《两面宽户型,“东西厅” VS “L型”,你更中意谁?》这篇文章中写的L型厅,变成了一样的格局。当然也可以用玻璃隔断或者移门来做到:隔声而不隔绝光线。 这里要强调:户型设计成L型厅和装修改造成L型厅,本质是不一样的,前者是从0到1,后者是1到1.n。 5.我还将公卫的洗手台挪到了卫生间外侧,这样的干湿分离,不仅可以解决卫生间的效率问题,同时还能满足餐前洗手的需要,特别是盯着小朋友洗手更方便。(目前我家也是类似的做法,对有小朋友的家庭是有借鉴意义的) 三、流线分析 我做了一个流线分析图(如下图)。大家不难发现,餐厅这里有一个洄游的动线。可能有些家庭不太能接受这种方式,但更多的家庭会接受这种开敞式的餐厨方式。 我们的家庭生活已经从原来的看电视为中心,转移到了“料理、阅读、居家办公、娱乐”为一体的复合功能。 对于西侧两个卧室门开在餐厅里,有些朋友可能接受不了,我建议可以采取隐形门的方式增加整体性。(类似下图的背景墙做法) 当然大家最关心的是,改造之前和改造之后,变化有多大,我做了一张分析图去对比。发现随着将书房划入到客厅区域,整个公区的面积会增加不少,视野更开阔,光线更充足。(如下图,红色部分为增加区域) 在这个户型的平行设计中,我只对公共区域进行了调整,想要说明的也只是:如何让原本就不小的公共区域显得更大,来满足最求极致体验的客户的需求。 03 案例二:餐厨比例 第二个案例,是上海的一个做全屋定制的朋友。她看到我发在朋友圈的平行设计之后,让我帮她看看户型,我有点算命先生上身的“错觉”。(如上图) 一、问题梳理 1.这个户型最大的问题是厨房和餐厅的面积配比不协调。按理说一个喜欢做料理的大厨,怎么也得配张大餐桌,才对得起大厨的手艺啊。(如下图) 如果不喜欢下厨房,那么厨房那么大有什么必要呢? 2.由于餐厅太小,导致了客厅也不显大。对于改善型户型家庭来说,面子问题没解决好是绝不能忍的。 二、平行设计 所以我在此基础上做了一轮平行设计(如上图),就是解决这个”面子问题“。 1.将原来的厨房缩小一部分面积,但保持了U型厨房的格局。这样既不损失厨房的大部分功能,同时又把面积分配给了原本比较小的餐厅,使得餐厅更加宽裕一些。 2.将原来干湿分离的卫生间进一步分离,把洗手台开放到餐厅区域,可以很好的监督小朋友洗手。 3.将原来的走道变成了餐厅位置,而通往卧室的门可以作成隐形门,视线上拉长背景墙的长度,使得餐厅更完整一些。 三、分析对比 我做了一个流线分析图(如上图),大家不难发现,餐厅这里有一个洄游的动线。流线略有交叉,但人生总得有所取舍,而这次我们的需求就是要让餐厅更有面子。 没有对比就没有伤害,所以我又放了一张餐客厅区域的面积对比图(如下图)。 其实就只增加一条走道的面积,但是餐厅的使用就多了不少可能性。而原来的户型没有硬伤,只是对客户的面子照顾的还不够,仅此而已。 04 边界 不管是小户型,还是大户型,对于追求“大空间”的愿望都是一致的,手法都是类似的。最直接的方式就是打破原有的功能边界,将性质相近的空间“连成一片”,扩大视线可及的范围。 一个是老式的有框电视机,另一个是无边框的电视机,即使相同的尺寸,大家可能也会觉得下面那个显得大,而原因就是打破了边界。 有形的物质是用来分割、围合空间的;而无形的空间是由有形物质围合而成的中空部分,是留给人用的。空的地方越大,房间就看起来越空旷,反之越拥挤。 05 结束语 今天的两个案例,都是改善型的大户型,解决的是同样的”面子问题“,采用的也是相同的设计手法。只是因为户型不同,举一反三罢了。 合理的规划空间、有效的配置功能,打破某些物理边界,同时也是打破我们一些心理上的”约定俗成“,将有助于我们提高美好生活的居住体验。 作为一个建筑师,在阅户型无数的过程中,我仿佛有点”算命先生“的感觉。算命,算的是人的运;而我改的是房子的”运“。当然房子住的舒心,同样能影响人的”运势“,这就是设计的价值所在吧。 本文来自微信公众号“良有方”(ID:nomad_liang)。大作社经授权转载,该文观点仅代表作者本人,大作社平台仅提供信息存储空间服务。 TAGS: 做型户型设计餐厅 相关文章英赫日报 | 李宁 × 空…米兰时装周的异星来客,用结…米兰“MoLo”移动与物流…西班牙艺术家 Juan d…把小鸟画成美少女,她弃医从…这些鸡蛋包装不只是有趣,设…国产文具又炸了!晨光再造“…七点资讯 |《更衣人偶坠入…AlphaDraw筑绘通「…秦始皇的黑,是你不懂的黑。