△ a hybrid building amidst the city center
坐落于城市中心的混合建筑体
With its recent European launch, NIO is steadily entering the international electric vehicle market as a new player. Back in China, the brand has been a market leader and the public is familiar with the sleek NIO House and community concept. The development of user experience therefore seeks to connect more to the local culture, giving rise to site-specfic design. After collaborating on the NIO House in Nanchang, Lukstudio is given an opportunity to transform a standalone courtyard house in Jinan, the capital of Shandong Province.
随着近期欧洲发布会的成功举办,NIO蔚来成为国际高端新能源汽车市场一颗冉冉升起的新星。在国内,该品牌已经是市场的领军者,其倡导的用户社区概念及衍生出的一系列具有前卫设计感的蔚来中心为大众所熟知。为提升用户体验,品牌与设计师共同探寻项目所在城市的人文基因并将其融入方案中,造就独特的场景设计。在合作完成南昌蔚来中心后,芝作室再次受邀改造济南一座双层带庭院的独栋建筑。
△ the front, three pitched roofs and two in-between spaces
△ the south facade after renovation 改造后的南立面
△ the “new” showroom juxtaposes
the “old” gray-brick-clay-tile architecture
新旧共存的建筑外貌
△ a clear sight line from one end to the other
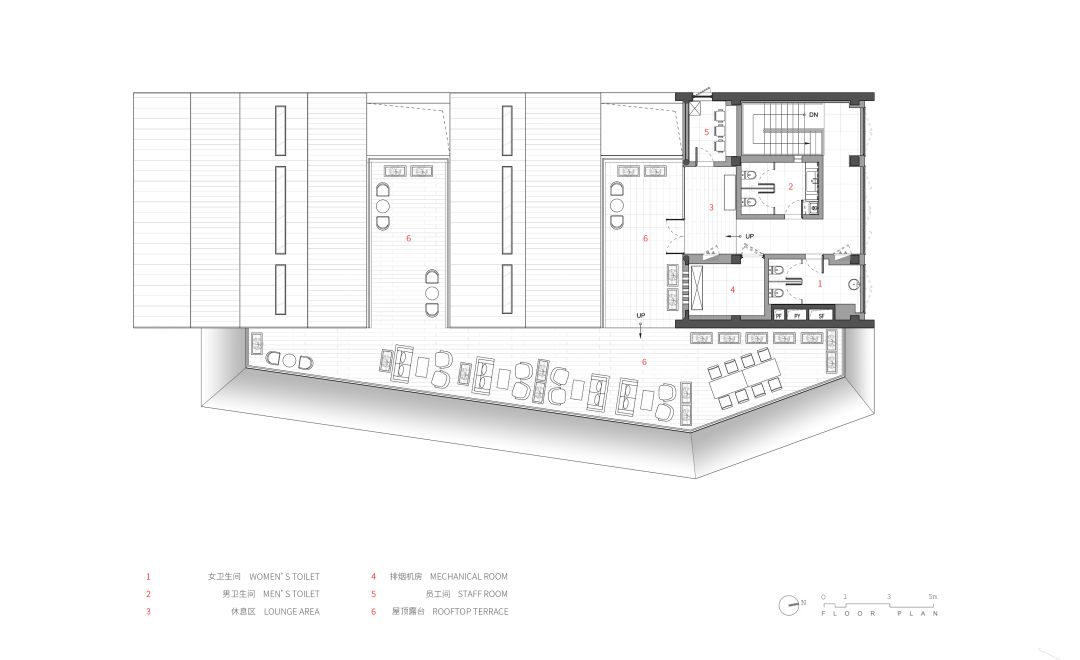
梁柱结构当中的开放布局贯通南北,
提供清晰通透的穿堂视野
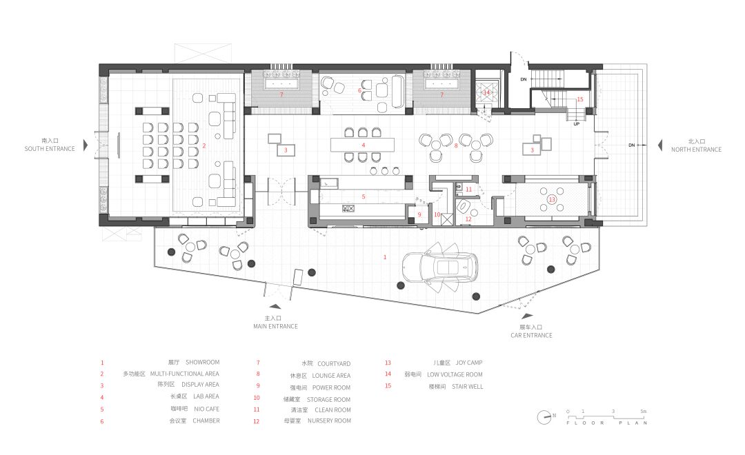
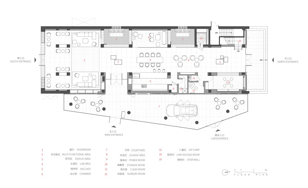
△ the NIO Café is at the center of the users’ area
NIO Café 在车主俱乐部的中心位置
△ a hangout spot under the skylight
在坡屋顶与天窗下的聚会场所
本文来自微信公众号“芝作室”(ID:lukstudio)。大作社经授权转载,该文观点仅代表作者本人,大作社平台仅提供信息存储空间服务。










