位于基辅的精品室内设计工作室,我们设计私人住宅和公共空间。以优雅的极简主义风格工作。
Kyiv based boutique interior design studio,We design private residences and public spaces.Work in elegant minimalism style.
我们所有人都生活在最艰难和可怕的时刻。我们努力保持生活,希望和平到来,停止暴力。有一段时间,我们没有情感资源来发帖或写作。目前,我们的工作室关闭,我们的团队相对安全。我们需要继续努力,尽最大努力为这个世界带来更多的美好和善良。
All of us live in the most tough and scary time. And we try to keep living, hoping for peace to come and stop the violence. For a while we had no emotional resource to post or write something. At the moment our studio is closed and our team is relatively safe. And we need to keep going and do our best to bring more beauty and kindness to this world.
由于战争,沙龙暂时关闭,但很快它将再次开门。我们每个人都应该找到力量,继续我们的工作,走向光明的未来
The salon is temporarily closed because of the war, but soon it will open its doors again. And each of us should find strength to continue our job and move towards our bright future.
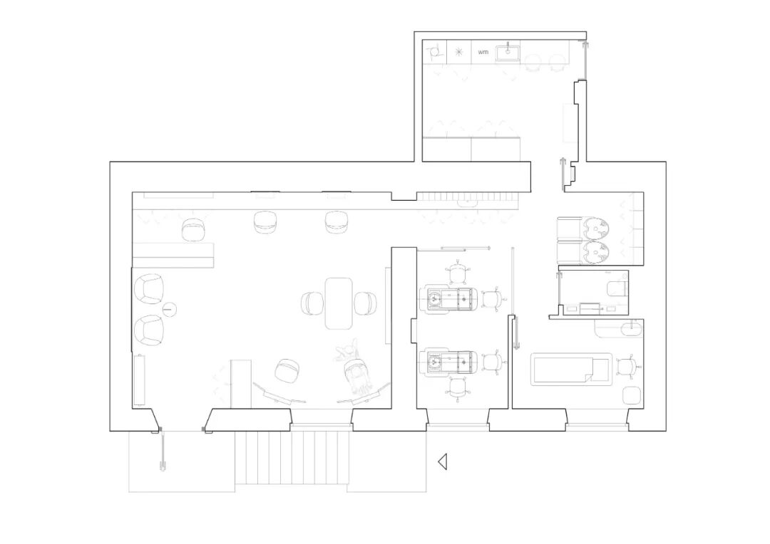
雇主的目标是一个舒适的环境——一个自我关怀的美丽绿洲。天然材料、原始纹理、柔和的调色板和波浪形的装饰元素让人想起了沙滩的形象。复古的家具、木质细节和照明设计营造出整洁简约的室内舒适感
The employer aimed at a comforting environment — a beautiful oasis of self care. Natural materials, raw textures, soft color palette and wavy shapes of the decorative elements call to mind the image of a sandy beach. Vintage furniture, wooden details and lighting design create coziness inside of a clean minimalist interior.
该项目以前是一家美发沙龙,位于该市商业中心莱雅-乌克拉尼卡大道(Lesya Ukrainka Boulevard)上世纪50年代建筑的一楼。外观与建筑的历史特征、颜色和风格融为一体。立面上没有招牌和涂鸦,以强调物体的视觉节奏。
The object, which previously served as a hairdressing salon, is located on the 1st floor of the 1950s building on the Lesya Ukrainka Boulevard in the business center of the city. Exterior blends with the historic character of the building, its color and style. The facade was cleaned from signboards and graffiti, to emphasize the visual rhythm of the object.
除椅子外,所有家具都是专门为这个项目定制的。尽管空间很小,但这个项目在技术上还是很有挑战性的。为了按计划完成工程,我们的施工人员不得不加班。我们成功了。
All the furniture, except for chairs, is made-to-order exclusively for this project. Even though the space is quite small, the project turned out to be technically challenging. Our construction crew had to work overtime in order to realize the project as planned. And we made it.
主墙用天然石红色石灰华装饰,手工磨砂,颜色为淡粉色。边缘也用手工处理,以创造自然的外观效果。这不仅是一种美学,而且是一种功能性的解决方案,因为石头保护墙底部区域不受灰尘的影响。脚踏板由不锈钢制成,并在先前安装的销上直接拧入石灰华本身。
The main wall is decorated with a natural stone — red travertine, which was frosted by hand to color pale pink. The edges were also treated by hand to create a natural-looking effect. This is not just an aesthetical, but also a functional solution, since the stone protects the wall from dirt in the bottom zone. The footrests are made from stainless steel and twisted straight into the travertine itself, on the previously installed pins.
整体式接待台由石英石制成。镜子中的反射创造了额外的几何尺寸和桌子的T形外观。根据我们的草图,等候区装饰着米色天鹅绒的沃尔特·诺尔(Walter Knoll)复古椅子和由石灰华和不锈钢制成的咖啡桌。衣柜和墙壁都涂上了相同的颜色,所以空间看起来是无缝的。
The monolithic reception table is made of quartz stone. The reflection in the mirror creates an additional dimension of geometry and a T-shaped look of the table. The waiting area is decorated with vintage Walter Knoll chairs in beige velvet and the coffee table, which is made of travertine and stainless steel, according to our draft drawing. The wardrobe and walls are painted the same color, so the space seems seamless.
进入沙龙,客户可以探索化妆产品的货架。化妆品货架由10mm钢化玻璃制成,并用隐藏的紧固件放置在金属管上
Entering the salon, the clients can explore the rack with makeup products. The shelves for the cosmetics are made of 10 mm tempered glass and placed on the metallic tubes with a hidden fastener.
彩条和洗头池位于橱柜对面,以便充分利用空间。水龙头和细节由不锈钢制成。卫生间是极简主义的。马桶的颜色与墙壁的颜色相匹配,水槽由与墙壁相同的石灰华制成。
The color bar and the hair wash sink are located opposite the cabinet, in order to get the best out of the space. The faucets and details are made of stainless steel. The restroom is minimalistic. The color of the toilet matches the color of the wall, and the sink is made of the same travertine as the wall.
彩色条的桌面由与接待台相似的材料制成。家具的材料不吸收染料和腐蚀性物质,而其颜色支持色调柔和的调色板。同时服务的区域由玻璃制成的滑动隔板隔开。玻璃的一部分是磨砂的,在美容过程中有一种隐私感
The table top of the color bar is made of similar material as the reception table. The material of the furniture doesn’t absorb dyes and aggressive substances, while its colors support the toned-down color palette. The area of simultaneous service is separated by a sliding partition made of glass. The part of the glass is frosted, allowing for a sense of privacy during the beauty procedure.
本文来自微信公众号“设计诗designer”(ID:shejishi_designer)。大作社经授权转载,该文观点仅代表作者本人,大作社平台仅提供信息存储空间服务。










