▲
_____________________
江山云和 地下玄关艺术品
初识台州,山海相依、傲岸秀拔为表,和合圆融、佛宗道源为里。飞龙湖畔 、青瓷窑边,背山面水之地,邂逅一群东方面貌的建筑……在自然与人文想象的交界,我与德信·江山云和的对话不止于设计。
▲项目视频
或吟风弄月,或借景抒怀,思及东方园林,总有一个「名字」诱引我们由境及意,以想象赋趣。与项目的前期接触时,这座落在「浙东唐诗之路」上的城市先天具有的文学意趣,以及庭园、建筑处处可见的江南人文印迹,成为室内空间设计发想的起点。
▲ ▼
________________________________
东方神话里,风神飞廉形态狰狞;而在波提切利的蛋彩画中,风神鼓腮、吹出玫瑰。「风生水起-起舞」以童趣、禅意,兼容东西方关于「风」的想象
由上风上水的区位条件出发,演绎出「风生水起」的题眼,我们在空间创作之时同步构想艺术,力图用色彩、叙事、想象力将室内建构为一幅移动画轴:以白描为始,以和合之境为终。雕塑景题、家具陈设、视看关系共同扣题……技与艺合谋,调动居者探问关乎空间与境界的艺术。
▲ ▼
________________________________
「风生水起-圆舞曲」由垂悬的水滴环抱而成,将「银河之水天上来」的意向与圆舞曲自由、热情的弦音融汇一体,圆舞曲男女相拥、舞步进退,亦是对圆融、和合精神的诠释
东西方文化关于风与水的想象被融合、物化为两尊雕塑,它们安放于地下,赋予其「标题性」,使之反客为主,由昏暗的冗余空间转化为整个别墅的诗意核心。「风生水起-圆舞曲」悬于入户玄关中,临靠一方下沉庭院,任天光与灯光染上不同颜色,又反射着院中葱茏绿意;「风生水起-起舞」则处在一处圆形天窗下方,将地上庭院的锦鲤池收于眼底,观微波荡漾、鱼跃云飞……
在自我的世界,
你可稚嫩如孩提,
而强大如飞廉。
阴阳相拥、进退相成,
在万事万物的变化中,
生成「道」。
▲
________________________________
概念草图 从艺术单品至空间艺术概念
水,是万物之源,因水而有生命;风,是流动的空气,因风而有鲜活。若以当代语境解读,「风生水起」即与自然共生,感知生命的节序——这亦点明了东方园居别墅的内涵意蕴。
在江山云和,设计以「艺」叙话,将自然之形、自然之声、自然之气、自然之意引入室内,以求重组时空、重构感知。受限于建筑条件,地下空间成为这一系列「重构」动作的核心与原点。
▲
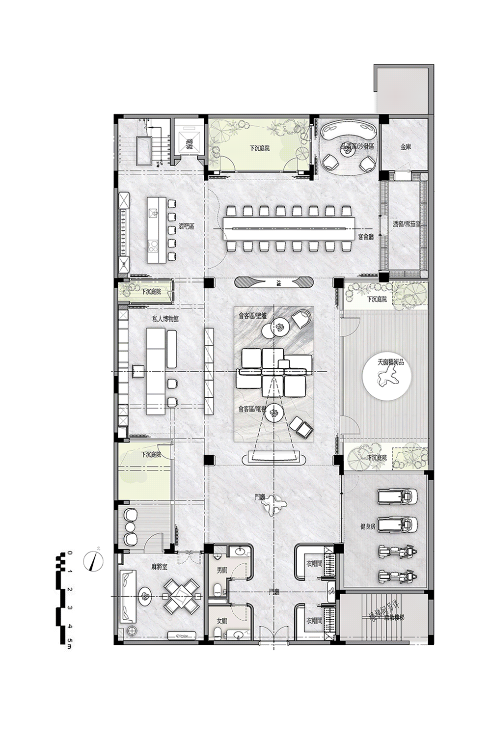
_____________________________
地下一层平面图调整前后对照
▲
__________________________________________
分析图 中轴之上,以礼序连接层高的起落
原始建筑平面被零散的墙体切分为彼此独立的「房间」,仅有的四处采光井将自然光有限地引至临近功能房,致使大面积空间昏暗、幽闭,难以停留。在台州德信的支持下,我们得以「再造」建筑。
▲ ▼
___________________________________________
主轴线上 空间以自然为始,亦以自然为终
以室内为「实体」,祛除非必要的隔墙、化零为整,使空间开朗舒阔;扩大采光庭院的「留白」,并令其均匀分布,让光线和视线自由流动;渐变瓦楞玻璃、书架、壁炉成为功能转换的「提示语」,亦形成漏景和框景……虚实之间,东方园林的空间结构悄然成型。
▲
__________________________________________
由宴会厅回望会客厅,柱与壁炉形成引景
▲ ▼
______________________________________________________
上:艺术品成为会客厅及私人博物馆的对景
下:由宴会厅透过壁炉与墙体的廊道空间回望艺术品
一条中轴自地下玄关开始蔓延,男女衣帽间与洗手间于两侧排开,墙上装饰画以水墨演绎「风生水起-圆舞曲」,延展了「雕塑景题」的生命力,又以互为图底的色彩回应主雕塑「阴阳相合」的艺术脉络。这种「非严谨轴对称」将地下空间整体串联,既还原了中式建筑平衡沉稳之美,又允许适当的跳脱,形成灵动生趣、步移景异的园林之韵。
▲
_________________________________________________
会客厅空间全景,壁炉位于中部,下方形成框景
▲
______________________________________
宴会厅正对酒窖 夹层的岛台成为装饰
「风生水起」之「水」经抽象演绎,流淌于天花、岛台、墙面,凝练于艺术品与装饰,又雾化于屏风……因上部结构差异(建筑或覆土层),地下空间形成层高差,我们以功能为依托局部做夹层,丰富并合理化高差,于空间漫游,颇有「山石开合共花木环抱」之雅意。山非山,水非水,一幅超现实的奇景引人翱翔杳冥,兼忘物我,像极了深藏于台州血脉中的山水佛画所讲述的细水流长。
首层空间 庭与院共生
大面积落地窗与中式建筑相配,各空间互为对景
▲
___________________________________________
茶室前有花院后有水园 室内室外皆为自然
行至地上,自然以更为显性的方式统领庭园、建筑及室内。首层空间是传统「三进式院落」的变体,大面积落地窗将建筑化为「廊」,一步一瞥,廊景相融。室内一应坐具、床具尽可能朝向风景,使居者心神汇聚于生机流转之自然、旷奥自如之山水,品咂庄子「率真忘我」的逍遥。
▲
______________________________________
上:客厅 以中轴实现空间的礼序
下:茶室效果图 以榻榻米区隔两空间
茶室顶部,透光的特殊材质描绘着「云」的模样,如日式手作皱纸,禅意延绵。自客厅望去,「云」似挂于树梢,在动与静的相对论中,以云游,喻风生。
▲
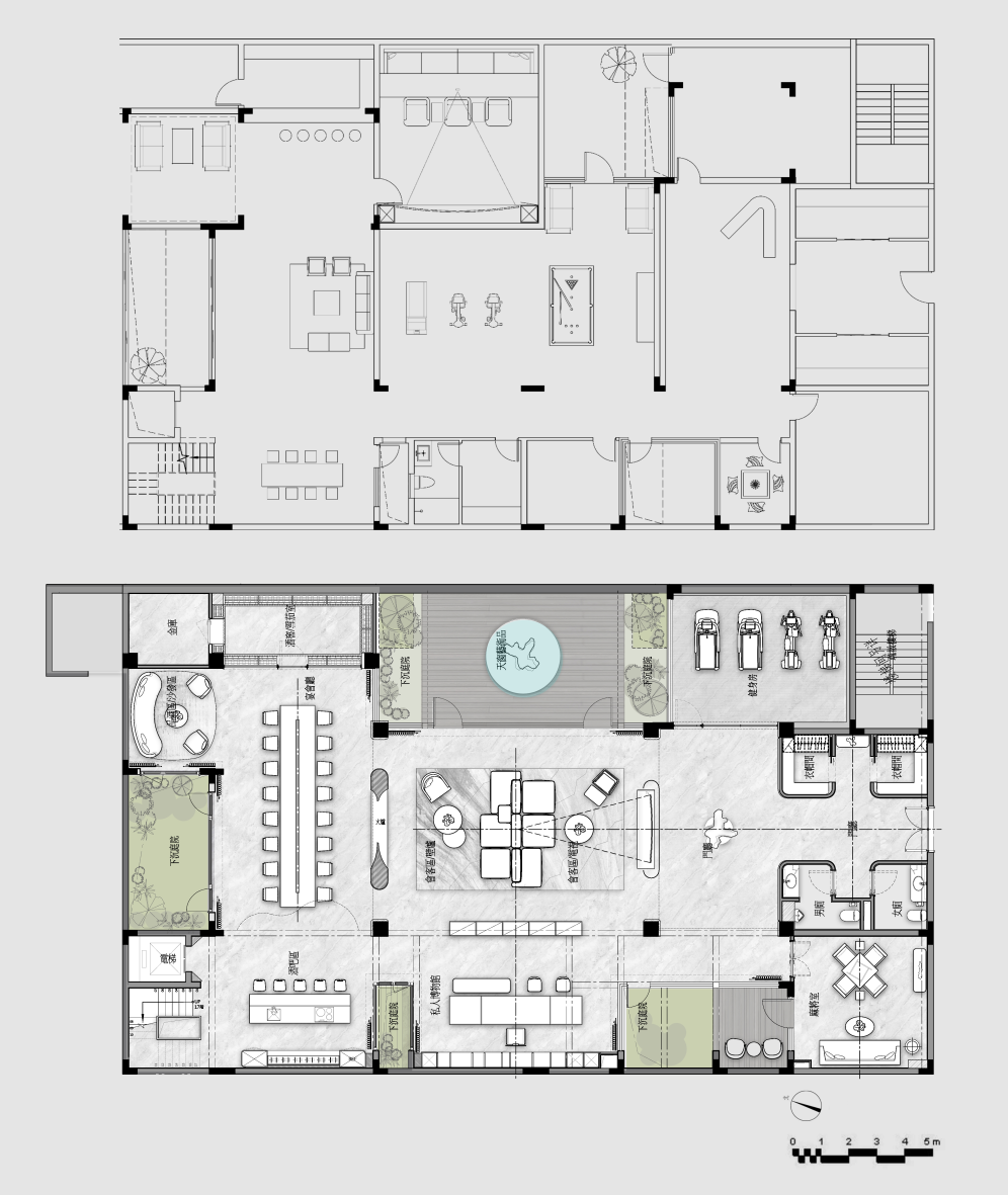
__________________________
首层平面图调整前后对照
茶室由原建筑平面中封闭的客房及会客厅转换而来,依结构条件,被一分为二。我们将里间的地面抬升,做榻榻米,保留其转化为临时客房的可能性。透明镜面将两空间连为一体,地面的高差又被桌面拉平……或抬或举,或围或遮,或景或境,空间总归是对人的关照。
东方不止于视觉,东方是一种生活。它既指向「与天地精神往来」的宏阔洒脱,亦兼容「团圆过朝夕」的和乐亲睦。在「江山云和」,我们由平面、剖面起笔,梳理甚至再造与家宅相关的「关系场」。
▲
_____________________
新增的地下夹层空间
新增的夹层空间以一条廊道串联各功能,提升了地下空间的使用价值,女主人工作室、家政套间分列于儿童游戏室两侧,便于以最短的路径照料玩耍的孩童。
夹层 女主人工作室
一侧经天井与儿童游戏室相连,另一侧对望宴会厅
透明的玻璃盒子、完全开放的岛台不仅为室内引入流动的空气,更让临近空间(女主人工作室与儿童游戏室/宴会厅)视线可流动。一方案几、一张圆桌,清茶与咖啡为伴,或阅读,或创作,又或与挚友小聚……心有挂念的女主人总能抽离出来,看家人闲坐,灯火可亲。
▲
________________________________________
宴会厅与夹层的女主人工作室视线相通
挑空的宴会厅尺度恢弘,可容纳20余人,与两侧吧台、酒窖共同谱写「置酒高会」的热闹。鲜花佳肴、长桌细语的西式宴饮补足了首层餐厅推杯换盏、圆桌相对的热闹,东与西的交融再次得到呈现。壁炉上的圆形装饰在宴会厅与会客厅呈现出色彩与形态的细微差异,似硬币的正反两面,暗喻文化在差异之上的共鸣。
▲ ▼
_________________________________________________
从会客厅看向宴会厅,沙发区成为被观赏的对象
装饰物的镜面材质成为借景的道具,记录着日光明灭、人影往来,反射的虚像与真实的空间共构属于生活的绚丽。挣脱画框的蓝色艺术装饰点题了沙发区,使之超脱功能,成为被观赏的对象。退行至会客厅,墙、窗、框、镜令艺术与自然隐约断续,借位置的经营关照身体的行游居停。
▲ ▼
____________________________________________________
上:从夹层俯瞰下方会客厅
下:剖面图 地下会客厅与夹层儿童游戏室视线互动
一个被德信营销团队戏称为「猫眼」的槽为夹层儿童活动区与下方会客厅建立关联。因上设覆土层,两空间交界处有厚实的梁架,夹层楼板与梁底相距不足一米。我们并未以一面墙来粗暴地封堵空间的可能性,而是开出形如微笑的窗,梳理人与人、人与景的关系。
▲
________________________________________________
从夹层的儿童游戏空间看向下方会客厅及艺术
它诱导夹层空间的孩子(甚至成人)为一隅风景弯腰或匍匐,去窥探抚琴礼茶、雅士相聚,去静观波光为艺术镀上的奇幻,任好奇心如树参天……陈列于儿童游戏室的家具来自T.K Home德光居Smile :P系列,每个单品均是「邱德光家庭成员」的标志性脸谱。
▲ ▼
_____________________________________________________
上:儿童游戏室看向天井中的艺术品
下:儿童游戏室所用的家具皆来自T.K Home德光居
它们以各自的方式微笑,与窗的造型对话,以童趣之形与「风生水起-起舞」的稚子之态对话,又构筑出创作者与居住者以「家」为单位的对话。我们希望借审美主体与客体的共鸣,诱发一种不局限于画面视域的知觉,一种更关乎诗意的想象。
东方文化主张主客融合,人与自然、社会、人际、心灵、文明……既涵摄又度越冲突、融合,世间万物即是相互依存的和合体。而将「和合」作为城市名片对外展示的,恰好是台州。
▲ ▼
_______________________________________________________
上:地下会客厅,圆形成为天花与墙面装饰的母题
下:地下庭院 艺术品顶部圆形的天窗与灯带扩散开来
作为和合文化的渊薮之地,这里三教合一、万善同归,滋养台州人形成豁朗包容、积极乐观的性情,亦使江山云和成为当代儒商的竞合之地、居游之所。若以一图腾概述台州文化精髓,无终无始的圆恰到好处。会客厅、餐厅、卧室……圆无处不在,得圆者即得和合之妙韵。圆润的曲线淌过传统的屋顶,使之经过变形和次序的重组,消解高差、隐匿棱角。
▲
______________________________________________
首层空间 客餐厅 以圆形天花为造型。两空间在层高上的差异经流畅的曲面被弥合,墙面装饰灵感来自瓦片
二层 主卧套房
床背板运动的云是对「风生」的再次回应
形式表象之上,江山云和的室内设计与艺术创作反复呈现着对差异与对立的弥合,连接着高与低、此与彼、内与外、中与西、过去和现在、物质空间与飘渺梦幻的两端,与天地合其德,与四时合其序。
真实与幻境的「和合」因技术的反复迭代逐渐生成新的可能。或许会有一场以「元宇宙」为终极形态的社会变革,世界终将不分虚实,空间即幻想;或许作为肉身世界创建者的设计师,最应参与甚至主导一个更为梦幻、更与性灵相通的「元宇宙」。未来已至,不妨一试。
▲项目平面
项目名称:台州德信·江山云和
主创人员:邱德光
项目管理:朱晓东
参与者:刘琼文、陈惠君、林纯萱、张喻捷、张舒涵、蔡欣妤、白澍云、江鎷如、赵铭、朱奕男
空间摄影师:朱迪
视频制作:李培桦(导演)、邱德光设计(监制)、李昊梦(摄影)、郑羽嘉(剪辑)
撰文及排版:Susanna Bai
空间性质:样板房
坐落位置:浙江台州
主要材料:特殊石材、木饰面、烤漆、特殊墙纸、不锈钢
家具品牌:T.K HOME, B&B, Reflex and Molteni & C
饰品品牌:Robert KUO, Kim Syberet, Tom Dixon, Gardeco, Gilles Caffier and Georg Jensen
面积:900㎡
设计时间:2020年10月至 2021年03月
施工时间:2021年09月至 2021年12月
《时尚北京》对话邱德光
2022.04
《时尚北京》杂志发挥北京国际化大都市文化底蕴深厚、时尚产业发达、消费市场巨大的独有优势,集思想性、时尚性、商业性、生活性、艺术性于一体。纸媒与网媒融为一体,在中国时尚界、影视文化界被评为受欢迎的都市刊物之一。
2022年4月,都市时尚权威刊物《时尚北京》针对“设计的实用性与艺术性”、“当代国风之美“、“设计的可持续发展”等问题,与邱德光进行了一场别开生面的对话。以下转载自《时尚北京》四月刊。
作为邱德光设计事务所创办人,邱德光始终推陈出新,以延绵不断的"时代风格"影响了一代代设计师。他糅合华丽、艺术及时尚元素,以设计为笔,形塑当代东方美学与时尚多元的生活形态。在过去的十几年中,邱德光设计事务所已成为了全球华人设计机构中的佼佼者。
邱德光坦言,“'邱德光设计'虽以我的名字命名,但数十年来'邱德光'早已不仅是我一个人的名字,而是一个团队或者是一种品质标准,我只是其中一部分。我的'室内设计师'身份与'邱德光设计管理者'身份几乎不分彼此。
事实上,我一直对于'独立设计师'心存怀疑,尤其是在当下。信息碎片化的时代,杂乱、快速流动的新事物层出不穷地叠现,单凭个人很难跟上变动的时代,没有对新事物的接纳和了解,创意定会终结。所以不论是作为室内设计师,还是作为邱德光设计管理者,我的角色始终如一——让信息和知识流动起来,转化为创意,实现恰到好处的落地表现。
在团队中,不论是否是'设计师'的身份,或提供的内容是文字或图像,都不重要。我们更倡导的是灵感的交流分享。我鼓励年轻人提供想法,用我的经验将灵感变成现实。"
Q&A
FB
经过这么多年的工作和思考,您认为什么是设计?现在,您对室内设计有什么样的审美意识?
TK
我理解的"设计"(或言design)与其词源含义一致,它是形、意、造的合集,是去符号化的符码(de-sign)。具体来说,是依据特定的现实条件或目的,提出某种设想,并通过合理的、周密的计划,以某物为载体,进行艺术创作并解决问题。
我对设计的审美可以归纳为:善假于物。室内设计所涉猎的内容甚为广泛,新兴技术、艺术创作、地域文化、审美潮流、生活观念等都需要综合去权衡。所以,作为设计者,尽可能地挖掘现状条件和客户诉求,来给出一条综合的线索、创造一种沉浸的体验。视觉(或者风格)则是最浅层的审美意识。
▲
____________
珠海仁恒·滨海中心
潮流、童趣的艺术品注入空间 缔造“孩子与海”的梦境
FB
您认为室内设计的实用性和艺术性的关系是怎样的?
TK
或许我们可以将"实用性"解读为"温饱",而将艺术性解读为"产生精神需求"。当物质匮乏时,人会将所有的关注点集中温饱层面,设计品满足基础要求,这便是我所认为的实用性。进入物质相对满足的阶段,我们会开始在意"色香味",在意健康管理或身材管理,在意适口性…我们开始主动选择,艺术便开始萌芽。当物质得到全面满足,我们的视域更广、自由度更大,曾经的艺术便成了实用,新的艺术尚待建立。
所以,实用性与艺术性是一种阶段性的浓淡关系,艺术性可以是实用性的一种,二者具备互辞与转化的可能性。
▲
_____________
从小孙女一家得到灵感
把面孔符号运用在家具、艺术品形成Smile产品系
FB
您是如何定义"新装饰主义NEO-ART DECO东方美学风格"的?
TK
Neo art deco是站在art deco巨人的肩膀之上,而后者发源于西方,是古典主义与现代主义的折中。所谓的neo,是在art deco之上增添了东方元素与时代元素,依据潮流的变化或繁或简。所以,我认为的neo art deco从定义上说,是一种"永远的现代进行时"。
永远的现代进行时
▲▼
________________
2021 杭州绿城卓越·傲旋城
2020 济南复星国际中心会所
▲▼
__________________
2019 北京首创远洋·禧瑞春秋南合院
2018 苏州仁恒·棠北浅山
▲▼
____________________
2011 上海星河湾花园酒店
2009 北京财富公馆
FB
"国潮"是现在很火的一个趋势,在这种趋势下,您会在室内设计中增加更多的中国元素,向世人展现现代国风之美吗?您认为怎样在室内设计中更好地展现东方美学?
TK
"国潮"确实是当下的流行风向,这或许与经济腾飞及民族自信的崛起有关。
在中国乃至全世界,对历史传统的崇拜早已入侵设计领域,并导致建筑与空间“迪士尼化”。我非常认同将中华文化以设计的形式再现,以当下的表达呈现于世,但我反对“迪士尼化”的设计。尊重和表达东方美学并不意味着纯粹模仿历史建筑或艺术的细节,而是要深入理解特定城市、特定场域的精神实质。譬如东方园林,它的位置哲学和空间布局方式都对我的设计颇有启发,但我极少照搬园林的构件或某个图腾。
运用当代别墅垂直发展的条件,将东方“自然山水”抽象模拟其中
FB
可持续发展的理念如何在室内设计中体现,请谈一下您的观点,同时可否分享实例?
TK
在室内设计中存在两种“可持续”。其一是材料与技术的“可持续”。毋庸置疑,低碳环保的材料和智慧家居系统都是实现室内空间可持续的重要手段。譬如东莞保利·首铸天际门厅处的艺术品就来自可再生材料。
其二则是美学与生活方式的“可持续”。变动不居的审美与生活方式,让室内设计必须"以变应变"。在北京万科大都会项目中,我们将室内空间拆解为“生活模块”,予以未来使用者应需求而自由重组的可能性;此外,我们提供极具趣味性的美学范式,让个性兼容经典,对抗万变的时尚;同时我们运用耐久的材质来增加空间的使用寿命。
▲
__________________________
北京万科·大都会79号 ”以变应变“
FB
您认为目前室内设计行业的市场发展如何,是否有什么新的趋势?当前中国大陆客户的需求有哪些特点,如何看待和应对这些需求?
TK
我的客户以房地产行业为主。众所周知,地产在中国大陆曾经经历过飞速发展,随后又迎来平缓,直到如今的下行趋势。
作为地产的下游行业,室内设计的发展与其休戚相关。这两年,我们越来越多地看到开发商的“故事线”文件,在满足消费者功能需求之外, 增加了文化与精神的内涵。我个人认为,这是一种发展,更是一种回归。大拆大建的发展期,地产往往无暇顾及文化——或者仅有极个别豪宅开发商愿意增加文化的糖衣以促进销售。今日,当消费者回归理性,开始重视精神生活,开发商及设计公司才开始真正将文化纳入设计。
我们回看千百年前的拙政园,又或者存在于诗文中的杜甫草堂,艺术、文化、志趣与生活相融是我们的居住传统。或许我们无须否定艺术与生活欢愉的关联,无须否认艺术家或诗人的远见,无须否认建筑空间也是一种艺术。我从去年开始创作艺术,并让艺术品在空间形成线索,整合出完整的艺术——这或许是一种应对当下客户需求的办法,也是面向未来的设计趋势。
玄关艺术品《你应当重新成为孩子》
FB
您认为今后整个室内设计,无论是从大设计概念还是细分设计,会呈现什么样的状态?
TK
我认为未来的设计与艺术将会无限趋近。时装可能成为一种身体的艺术,空间亦如是。技术已经打破了功能的壁垒,虚拟世界、元宇宙更打破了时空的界限,注重精神性的设计注定是一种新艺术——以空间为媒介。
▲
_________
武汉华侨城 原岸
FB
您是否与国内优秀的设计师、建筑师、艺术家,以及国外一些同行有过合作,收获最大的是什么?可否分享一下实例。
TK
我常常和优秀的设计师、建筑师、艺术家合作,印象最深的一次在东莞保利·首铸天际。建筑、室内、艺术都以“天际”这一品牌基因为主题进行演绎,我们以内建筑构筑飞船、质子中子,创作出“大爆炸之后的冰川之白”,约束艺术品的尺度及安装方式(如门口处《000FFF》便由原作《差翅亚目之目》演绎而来,改变了色彩,并将匍匐于地面改为吊装于空间),并组织各艺术品之间的对话。
FB
您认为青年设计师要成长,应该走一条什么样的路?
TK
我认为设计师需要“富养”,眼界与基础功同样重要。若要提升基础功,势必应在一个成熟的事务所中从学徒做起,积累图纸到落地的判断力。而若提升眼界,阅读与旅行是必尽之务。室内设计是与生活最为贴近的空间设计领域,时尚、艺术、消费文化等各行各业的新趋势、新审美都会作用于生活,进而影响设计。
FB
就室内设计的核心理念而言,您希望将邱德光设计事务所定义成一个什么样的事务所?
TK
我希望将它定义为“持续提供与时俱进的解决方案的创意团队”。创意大过天,它可以天马行空,但一定不能脱离土壤而存在。
总结过往的实践经验,我们提出过若干“理念”——譬如“新装饰主义”,譬如“做时代的设计”,又或者“东方是一种‘气’”,“我讨厌没文化的设计”……凡此种种。我们的风格几经迭代,但从未脱离“新装饰主义”这条主干,无惧时代更迭、潮流轮转。我们始终相信物质之上滋长着人们对于文化内容、艺术内容的向往,并将此定义为“装饰”——如收容一般,应对时代,应对场合,浓淡相宜。
▲
_________
北京懋源·璟玺
FB
未来您对自己和邱德光设计事务所有什么样的期望?
TK
我期待能在艺术与设计相融性的道路上做更多的尝试,期待邱德光设计的每位年轻人都不断积累自己的认知与眼界,让事务所充满着源源不断的创意。
事实上,我创办家具设计公司并创作艺术品是有自己的考量的。室内设计仅能服务一部分客户,而家具却可以传世。我们正在研发一系列的艺术品及周边产品,希望更多的消费者能够体验到我们的设计, 希望做快乐的设计,希望我们的创意与设计能够具备疗愈人心的力量,换得消费者的会心一笑。
邱德光T.K.Chu
新装饰主义大师
台湾设计界领军人物
邱德光设计(T.K.CHUDesign)于1985年由建筑师、室内设计师、产品设计师、“新装饰主义”大师邱德光先生创立于台北(中国台湾)。身为一家具备亚洲乃至全球影响力的创意型室内设计团队,邱德光设计在创
办至今、近四十年历程中经历了一段影响深刻的变革:2009年,因合伙人袁欣先生的加入,邱德光设计率先完善“创意结合商业”的设计思维,在大中华区市场大获成功,尤其是顶级居住和高端商业空间领域;2014年,为实现空间、装饰、艺术的一体化,邱德光设计发展出子品牌德光居,于上海设立总部,专注家具及软装产品的研发及全球采购;2017年,应产业结构升级调整的趋势,上市公司东易日盛(股票代码:002713)与邱德光设计并购重组,开启设计联姻资本、资源融合市场的新纪元。
如今,邱德光设计形成“一家公司,两个品牌(邱德光设计与德光居),四个中心(北京:创意中心、运营管理中心;台北:创意中心;上海:产品中心)”的布局,表现出快速成长的商业潜能、与时俱进的风格走向和创意设计解决能力。公司以理性思维,将室内设计视作市场营销的手段、补位建筑的工具;融感性表达,以装饰作为情感的唤起,实现“空间艺术化,艺术生活化”。
游刃于传统与当代、东方与西方,邱德光设计将装饰美学融入东方诗哲,不断丰富“新装饰主义”的含义和表现形式,设计版图囊括亚太地区各富裕城市,积累经典作品数百余座,可谓精品倍出、获奖无数,公司先后受《frame》、《ForbesFrance》、《BloombergAsia》、《designanthology》、《台湾建筑》、《domusChina》、《财经》、《周末画报》、《小资chic》、《澎湃楼市》、《时尚家居》等若干国内外知名设计、地产及财经及时尚领域媒体的关注报道,并屡获AndrewMartin、Architecturemasterprize在内的数十个国际奖项,创始人邱德光先生曾任北京清华大学美术学院艺术陈设与艺术工程管理专题讲师、台湾文化大学室内设计专题讲师,实践与教学相结合,并出版《邱德光的新装饰主义》(辽宁科学技术出版社,2009)、《T.K.CHUTrend》(台湾建筑报道杂志社,2012)、《新装饰主义+》(辽宁科学技术出版社,2015)等论著。
往期作品
邱德光设计事务所
Architecture & Design | Private | 50-100 staff | Interior
Projects: Hotel/Office/Residence/Education/Theme Park
Address: China Beijing-北京市东城区朝阳门北大街8号 富华大厦D座16层 BC室 T.K CHU Design
邱德光先生核心語錄
1、美好生活的創造者
空間設計是生活設計。設計師的職責是幫助消費者實現他的居室夢想。我們致力於用設計帶給當代中國人更好的生活,渴望讓設計契合當下中國人對「幸 福」的定義。
2、與時俱進的「新裝飾主義」
邱德光設計開創了影響⼀代中國室內設計的「新裝飾主義」風格,憑藉對潮流的預見性,我們始終認為:設計與社會密不可分。持續地對中國消費者的審美趨勢及生活方式進行著觀察與研究,並將之轉化為設計,是我們邱德光設計事務所最核心的工作之一。
3、締造有深度及內涵的尊貴宅邸
我們善於在設計中形塑中國消費者的內心需求,尤其善於把握中國高端族群的生活風尚及家宅嚮往。我們以藝術化的語言將居者的身份特徵及生活方式融入居室之內,締造有深度及內涵的尊貴宅邸。
4、形塑天人合一的自然居所 (或 夢幻居所)
邱德光設計的東方是骨子裡的。不在裝飾與形式,而是融於居室內在的一股「氣」。在一個西方的現代生活環境中,我們認為:東方在於一種態度,一種與世界相處的哲學。因此,邱德光設計的東方關乎一種「環境的營造」:人與自然,居所與外界,自我與他者。
5、 空間藝術化 藝術空間化
“用藝術創造空間的價值。”邱德光設計中的藝術,不僅僅是藝術品,而 是在設計中廣泛地應用藝術化的語言。「藝術」如鏡像般映現著居者的精神世 界,它能夠架起一座橋樑,使空間與居者的內心產生對話。
6、崇尚精工與細節的華麗居所
我們崇尚華麗,拒絕低調、扁平、冷淡的設計。華麗攜帶著精湛的工藝與豐富的情感, 它強烈的表現力,源于貴族的歷史與傳統。
7、藝術 - 生活空間情感的出口
裝飾是有其雋永的。這些「無用」的藝術喚起情感、儀式與慶典,將人帶離庸常的日常—— 對於任何年代的人而言,這都是生活中不可或缺的。
8、夢幻 – 引向詩意的棲居
夢幻,是邱德光設計所追求的。我們希望在設計中,通過營造夢幻的場景,使人獲得精神上的釋放,將居者引向詩意的棲居。
- END -
▲季裕棠 / 如何理解对家庭生活以及纯粹住宅精神思考?(30分钟)
▲全球TOP3酒店设计公司:CCD掌门人郑忠谈顶级设计 (16分钟)
▲琚宾解析东西小院 / 淡然无极而众美从之(7分钟)
本文来自微信公众号“云想设计美学”(ID:Yunxiang_Design)。大作社经授权转载,该文观点仅代表作者本人,大作社平台仅提供信息存储空间服务。










