Pastel Rita 咖啡馆
设计工作室|Appareil Architecture
项目地址|加拿大蒙特利尔(Montreal)
项目面积|139m2
第一眼看到这个咖啡工作室的时候,很难不被其明快的绿色、粉色和金色的色块所吸引。
这家位于加拿大蒙特利尔艺术社区的这家咖啡工作室属于 Gabriel Malenfant & Véronique Orban de Xivry 夫妇。分别在乐队和时尚品牌工作的他们希望创建一个将咖啡馆、艺术工作室和精品店相结合的空间。
Pastel Rita (柔和的丽塔)咖啡工作室是以 Malenfant 的祖母 Rita 的名字来命名的。
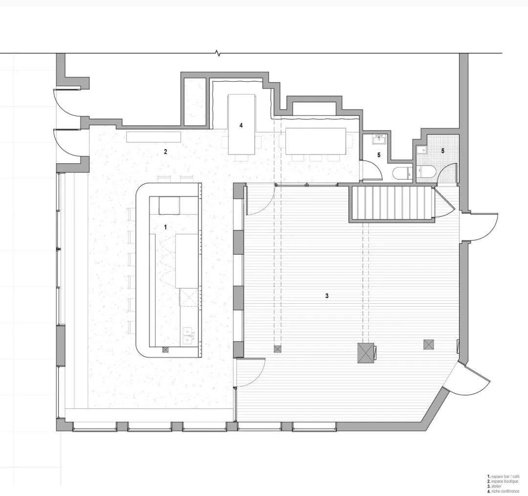
为了让顾客在享受咖啡时光的同时还可以观察和欣赏艺术工作室的运作,Appareil Architecture 设计工作室将原办公空间翻新,并用不同的色块来表达不同的功能区域。
吧台&陈列区
可以看到,绿色定制咖啡吧台占据了空间的主要位置,方便咖啡师和顾客交流互动。充满光泽感绿色涂层的让吧台和设计师设计的FLOE多了一抹现代风。
吧台后面绿色木制的隔栅作为空间的隔断,隔断上的大型拱形开口呼应了后侧粉色拱形壁龛的艺术品展示区,艺术家们设计的手提包、挂画、衣物配件等都可以在此被一览无余。
同时,浅色的油毡地板和宽敞明亮的落地窗有助于将各个区域自然过渡,并与街区形成互动。
落座区
穿过陈列区和吧台之间的过道,就来到了一个一个完全淡粉色的区域。清一色的玫瑰粉打造出一种梦幻感,让人即刻放松下来。灯具的局部点缀有着画龙点睛之笔,让空间看上去并不单调。此外,设计师也通过沙发靠垫层层叠叠的造型和空间的拐角营造出一种层次感。
洗手间
藏在角落里的洗手间也同样被漆成单色,厕所上方的霓虹灯用草书字体显示着“"artsy fartsy" (装模作样的艺术)。
工作室
艺术家的手工作坊就隐藏在走廊的另一侧,其实从座位区域的窗户就可以瞥见内部的活动。工作室的风格则不同于咖啡空间明亮大胆的撞色,而是更符合办公环境的色调,白色的墙壁和天花板,质朴的木材和钢铁家具,与外面的粉彩形成鲜明对比。
平面设计图纸
撰文、编辑|Lexi WANG
摄影|Félix Michaud
参考资料|DEZEEN
本文来自微信公众号“维度设计 Dimension Design”作者:Lexi Wang(ID:Dimension2021)。大作社经授权转载,该文观点仅代表作者本人,大作社平台仅提供信息存储空间服务。










