山
居
·
金
陵
江南岸,金陵东,静卧着一座闻名遐迩的佛教圣地——宝华山,层峦叠嶂、逶迤环绕、形似莲花,主峰海拔437.2米,宛如花蕊。「金科·观天下」便深藏于南京这座六朝古都中不可多得的颐养之境。
On the south bank of the Yangtze River, east of Jinling, lies a well-known Buddhist holy place - Baohua Mountain. It is surrounded by mountains and windings and looks like a lotus flower. The main peak is 437.2 meters above sea level, like a stamen. "Jinke·Viewing the World" is deeply hidden in Nanjing, a rare place of self-cultivation in the ancient capital of the Six Dynasties.
金科集团将观天下三期叠墅的设计托付于擅长从环境、建筑、历史开源溯流的派尚设计。设计师将三代同堂的山居生活以更加符合现代起居生活习惯的半山台墅呈现出来;而满足多年龄和多场景互动的现代墅居形式,让大隐于市的慢生活在每个年龄层的居住者心中都有更加准确的表达。
Jinke Group entrusted the design of the third phase of Guantianxia to Paishang Design, which is good at retrospecting from the environment, architecture and history. The designer presents the mountain dwelling life of three generations in the mid-level villa that is more in line with modern living habits; and the modern villa dwelling form that satisfies multi-age and multi-scene interactions allows the slow life in the city to live in every age group. occupants have a more accurate expression in their hearts.
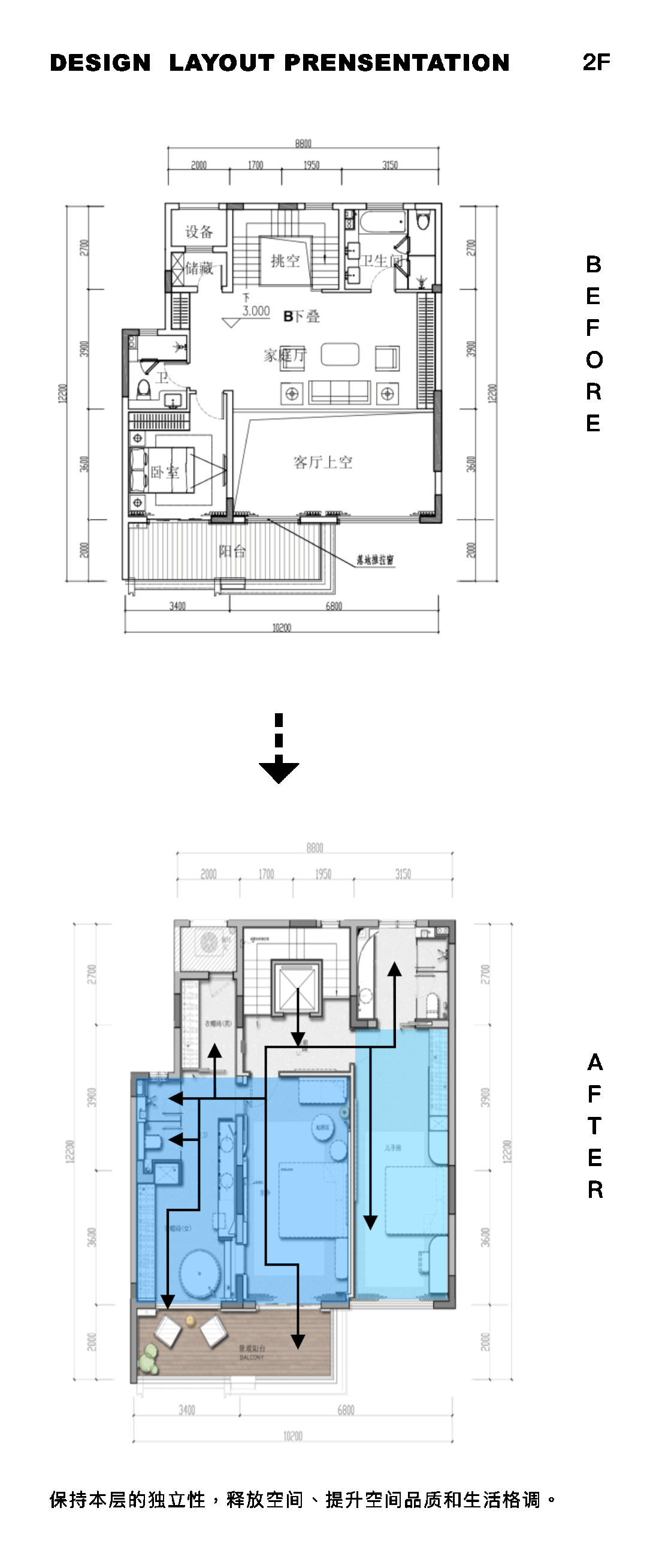
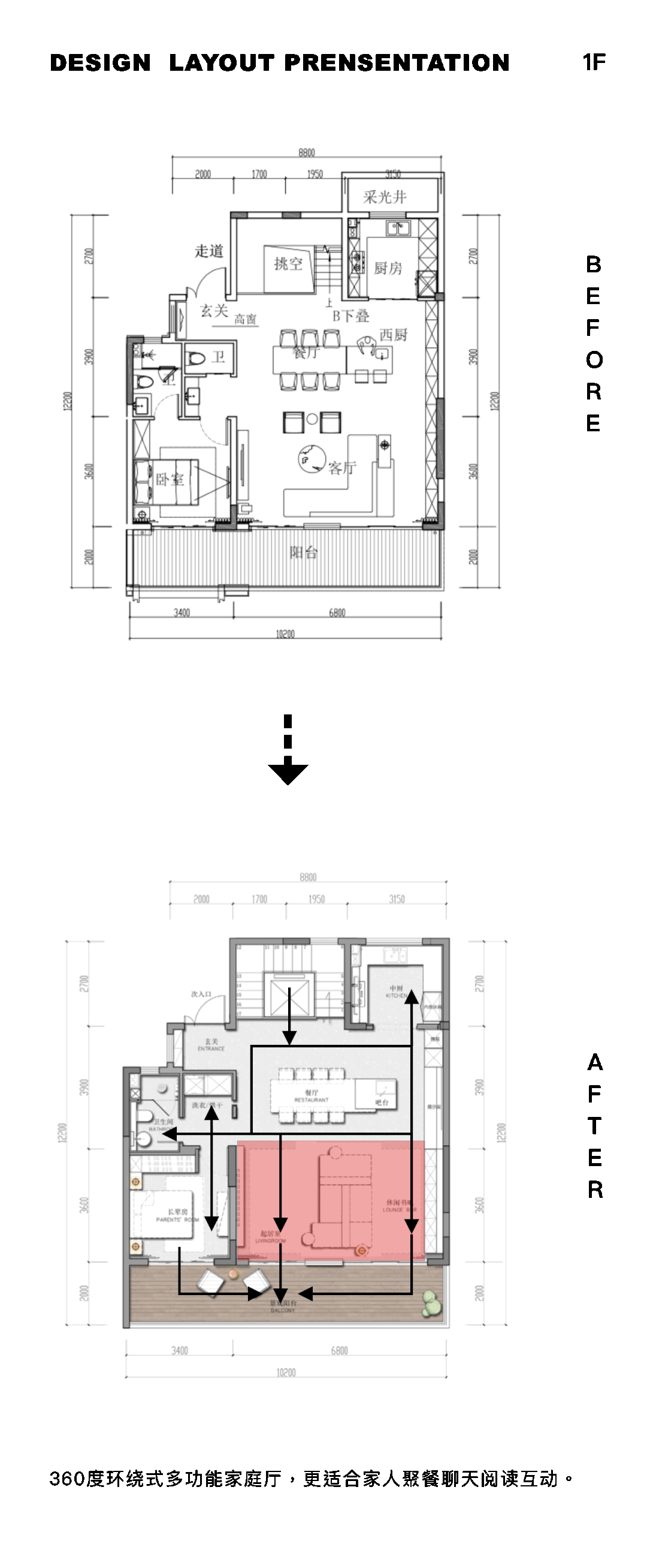
观天下三期叠墅名曰“见山”,比一期二期更加深藏山中。是南高北低,依坡而建的台地式建筑,比平地上的建筑位置更高,观景效果更佳。
除此之外,下叠户型拥有得天独厚的台地式庭院花园,且建筑规划的次入口的交通便利性并不亚于主入口。因此设计师大胆将入户动线从一层挪至负一层,让居住者得以由庭院归家。
归家途径依次经过郁郁葱葱的庭院、原始野趣的踏步小径。院落的景致四季交替,室内家人活动的身影依稀可辨,推门而入,便立刻踏入一片不乏人间烟火气息的都市桃花源、诗意栖居地。
亲密与自处
INTIMACY AND SELF
我们对“家”的想象,都藏在了不经意的时间定格里。家需要亲密无间的热闹,也需要怡然自处的冷静。负一层是这个三代同堂之家的枢纽空间,设计师希望在这里构建一个能让家人活动轨迹能频繁交汇的共处空间,但同时又能让每个人在这里能找到自己怡然自处的独立场域。
Our imagination of "home" is hidden in inadvertent time frames. Home needs intimacy and liveliness, as well as the calmness of being at ease. The negative floor is the hub space of this three-generation home. The designer hopes to build a co-existence space where the family's activity tracks can frequently intersect, but at the same time, everyone can find their own independence here. field.
负一层空间的挑高足有5.1米,并且附有一个夹层活动空间。为了减少层高跳跃变化的突兀感,设计师特意设置了一个缓慢降落的弧度穹顶,将人的视线自然的牵引至院外的景观和远山的从林,也使得空间体量更加轻盈生动。
Behind the extra-long table with a negative layer of sandalwood, the delicate light-transmitting marble sets off the tea set that my father had collected for half a lifetime. Sitting here, you can not only look at the distant mountains and relax your mind and body, but also paint with brush and ink. When a friend came to visit, my father took out the treasured love tea and brewed it for the guests himself. No matter how politely the young man tried to brew tea for the elders, he would never let go.
阁楼画窗,静中取静。
Attic picture windows, quiet in the stillness.
负一层的夹层空间是一个“静中取静”的私密性更强的空间,挑空的画窗能续接上客厅庭院的景观,也能保持与其他区域的对话。 无论是静态的瑜伽和冥想,还是热烈的拳击和器械训练,全家人都能在这里找到适合自己的方式。而运动区域一侧微微挑高的榻榻米,方桌小座,清雅宜人,是家中女性成员和闺蜜小聚的理想空间。
The mezzanine space on the first floor is a more private space of "quietness". The empty picture window can continue the landscape of the living room and courtyard, and can also maintain a dialogue with other areas. Whether it's static yoga and meditation, or intense boxing and equipment training, the whole family can find their own way here. On the side of the sports area, the slightly elevated tatami, the square table and the small seat are elegant and pleasant, which is an ideal space for female members of the family and girlfriends to gather together.
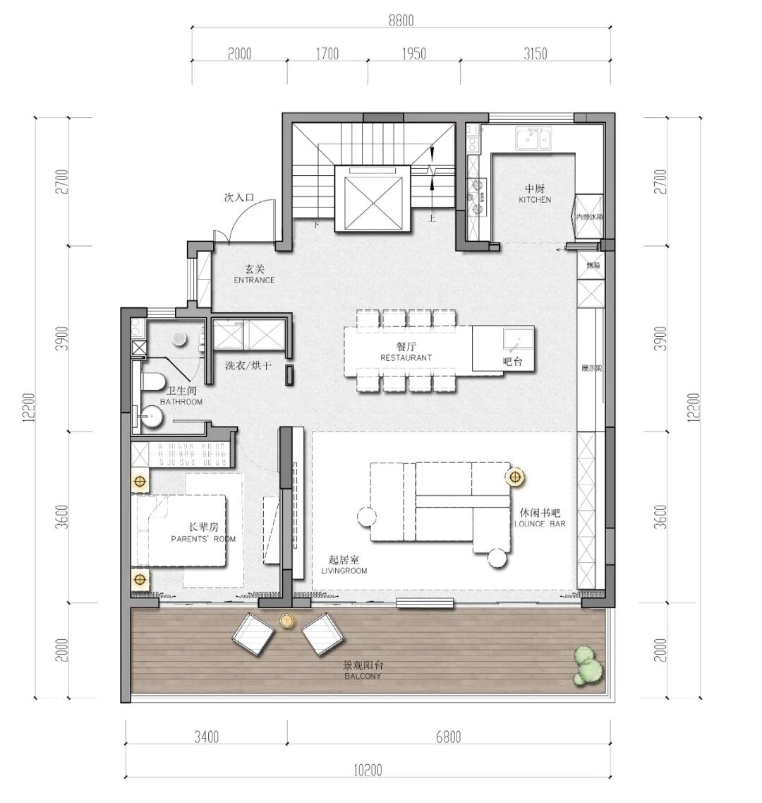
充裕的居住面积和三代同堂的人口结构,使得在餐厨空间的设置上,并没有选择互动性强的开放式厨房。但设计师仍然设置了一个超长岛台兼吧台成为整个一层空间的视觉中心。
The ample living area and the population structure of three generations living together make it impossible to choose an open kitchen with strong interaction in the setting of the dining and kitchen space. But the designer still set up a super-long island and bar to become the visual center of the entire first-floor space.
岛台的功能更加灵活多变,除了成为优雅的宴会长桌,也能在酒会、下午茶的活动中摇身变身成为装饰精美的取餐台。读书会、亲子绘画、家庭手工等活动中,宽敞的岛台既能容纳下数十人的欢聚,也能随时清洗弄脏的画具和餐具。
The function of the island table is more flexible and changeable. In addition to being an elegant long banquet table, it can also be transformed into a beautifully decorated dining table during cocktail parties and afternoon tea activities. In reading clubs, parent-child painting, family crafts and other activities, the spacious island can not only accommodate dozens of people to gather together, but also clean the dirty painting utensils and tableware at any time.
自由配置,多样组合
Free configuration, various combinations
设计师在一层的会客区域选用了模块式沙发,以其独特设计和量身定制的细节,在起居空间内最先引人察觉。模块式组合具有极高的搭配自由度,其各构件可共同打造真正的“舒适岛”,非常适合休息和用餐环境。沙发背景选用了质感细腻温润的高级灰烤漆板橱柜,封闭式储物和开放式陈列以3:1 的黄金搭配,让家居在实用性和装饰性之间取得了完美的平衡。
The designer chose a modular sofa in the reception area on the first floor, which is first noticeable in the living space with its unique design and tailor-made details. The modular combination has a high degree of freedom of collocation, and its components can work together to create a true "comfort island", ideal for rest and dining environments. The sofa background is made of high-grade gray lacquered board cabinets with delicate and warm texture. The closed storage and open display are matched with 3:1 gold, so that the home has achieved a perfect balance between practicality and decoration.
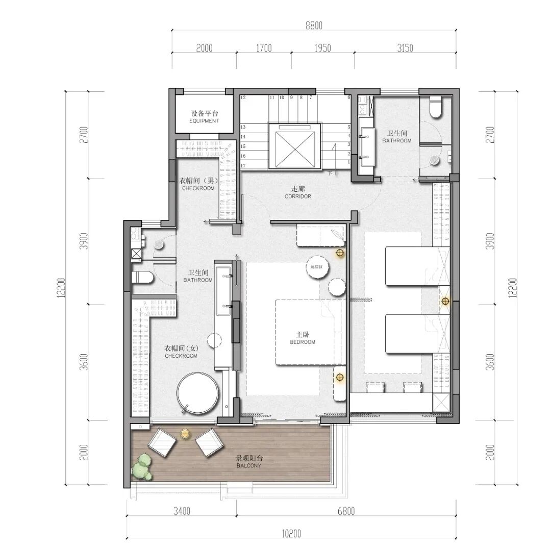
整个二层设置为私密性极高的主卧&书房空间,设计师将原户型中冗余的储藏间和一层客厅上方的挑空同时消掉,得以在二层空间中延展出更加实用的卧室套房空间。
The entire second floor is set as the master bedroom & study space with high privacy. The designer eliminated the redundant storage room in the original apartment and the overhang above the living room on the first floor at the same time, so that a more practical space can be extended in the second floor space. Bedroom suite space.
极简与生活
MINIMALISM AND LIFE
卫浴空间的设计极简而清新,功能循序递进而有仪式感。空间的端景仍然是翠绿的远山,让原本过于狭长的空间有了呼吸的自如。
The design of the bathroom space is minimal and fresh, and the functions are sequential and ceremonial. The end view of the space is still the emerald green mountains, allowing the originally too narrow space to breathe freely.
可供夫妇二人同时自如洗漱装扮的超长洗面台,选用了画卷般的折页式镜子,方便主人可以多角度立体的梳妆照镜,若掀起玻璃合页,极致简洁的背后,其实隐藏着方便主人随时取用小物的收纳空间。
The extra-long washstand can be used for both couples to wash and dress up at the same time. The folding mirror like a scroll is used, which is convenient for the owner to have a multi-angle three-dimensional dressing mirror. A storage space that is convenient for the owner to access small things at any time.
“成熟是一种明亮而不刺眼的光辉,一种圆润而不腻耳的音响,一种不再需要对别人察言观色的从容,一种终于停止向周围申诉求告的大气,一种不理会哄闹的微笑,一种洗刷了偏激的淡漠,一种无须声张的厚实,一种能够看得很远却又并不陡峭的高度。”
"Maturity is a kind of brilliance that is bright and not dazzling, a kind of sound that is round but not greasy, a kind of calmness that no longer needs to be observant of others, a kind of atmosphere that finally stops appealing to the surrounding, a kind of ignoring the noise A smile, a kind of indifference that washes away extremes, a kind of unspoken thickness, a kind of height that can see far but not steep."
父母房的设计回归了自然的拙朴,轻松而不浮夸,尊贵而不张扬。通过落地窗与户外庭院相连,将最清新的空气与最好的景观留给父母,想来应该是主人最体贴入微的孝敬父母的方式了。
The design of the parents' room returns to the natural simplicity, which is relaxed but not exaggerated, noble but not ostentatious. It is connected to the outdoor courtyard through floor-to-ceiling windows, leaving the freshest air and the best landscape to the parents, which should be the most considerate way for the owner to honor his parents.
本案的儿童房年纪设置为青春期的少年,因此不同于更加天真童趣的儿童房设计,设计师选用了更加冷感的,更加彰显个性的灰调和蓝调,并在陈列中加入更加街头与复古的青春元素。摄影、电影海报,LP的收藏品已经隐约透露出小主人的不凡品味,还有他追逐梦想的热情。
The age of the children's room in this case is set for adolescents, so different from the more innocent and childish children's room design, the designer chose gray and blue tones that are cooler and more individual, and added more street and retro in the display. Youth elements. Photography, movie posters, and LP's collections have vaguely revealed the little master's extraordinary taste, as well as his passion for chasing his dreams.
项目信息
ABOUT THE PROJECT
Project Name|Nanjing Jinke Views the World · Phase III Die Villa Model Room
Project owner | Jinke Group
Project Location|Jiangsu・Nanjing
Design area| 332㎡
Design Agency|Shenzhen Paishang Environmental Art Design Co., Ltd.
Design Guidance|Zhou Jing, Zhou Weidong
Interior Design|Wu Yaya, Li Suisheng, Wang Jiabao, Lu Shenglu
Furnishing Design & Execution|Hu Jinsheng, Xie Xiaoyan, Zhou Linling, Huang Ciyao
Special thanks | Jinke Group East China Region
Photography|Shenzhen Free Will Studio
深圳市派尚环境艺术设计有限公司
IID-ASC 中国建筑学会室内设计分会全国理事
SIID 深圳市室内建筑设计行业协会 副会长
广东省陈设艺术协会 副会长
在空间中骋怀赏景
细味中西设计美学
In space, there is a fine view of Chinese
and western design aesthetics
毕业于大连理工大学建筑系,米兰理工大学设计管理硕士。建筑师出身,后专注于会所、售楼处、商业空间、别墅、样板房等专业室内设计和陈设设计领域。周静主张建筑、空间、自然和人文的交互,在她看来时代的发展从来没有要求凝固历史,然而历史却以文脉传承的方式,映射着人们活跃的生活场景。她关注人性的本真需求,强调设计审美的精神表达与文化传承,用现代手法和纯净风雅的东方精神,实现空间的温暖感和体验感。在她的带领下,其团队执行的室内设计项目多次荣膺国际国内室内设计最高荣誉,如意大利A' Design Award & Competition 铂金大奖,英国SBID国际设计大奖、IIDA(国际室内设计协会)大奖、亚太地区年度最佳设计大奖,APSDA 亚太室内设计大奖赛,2016 AIDIA 亚洲室内设计竞赛、IID-ASC学会奖、CIDA中国室内设计大奖等各类专业奖项。
Graduated from the Department of Architecture of Dalian University of Technology, Master of Design Management of Milan Polytechnic University. He was an architect, and then focused on professional interior design and display design fields such as clubs, sales offices, commercial spaces, villas, and model houses. Zhou Jing advocates the interaction of architecture, space, nature and humanities. In her opinion, the development of the times never requires the solidification of history, but history reflects people's active life scenes in the way of cultural heritage. She pays attention to the real needs of human nature, emphasizes the spiritual expression and cultural inheritance of design aesthetics, and uses modern techniques and the pure and elegant oriental spirit to achieve a sense of warmth and experience in space.Under her leadership, the interior design projects implemented by her team have won the highest honors for interior design at home and abroad, such as the Italian A' Design Award & Competition Platinum Award, the British SBID International Design Award, the IIDA (International Interior Design Association) Award, the Asia Pacific Regional Annual Best Design Award, APSDA Asia Pacific Interior Design Awards, 2016 AIDIA Asia Interior Design Competition, IID-ASC Society Award, CIDA China Interior Design Award and other professional awards.
周静访谈:一个感性的理想主义者
导语:“我是一个钝感的人。”当问及个人特征的时候,一向给人睿智、浪漫、热情的周静给出的回答让人意外。
何为钝感?
日本作家渡边淳在其著作《钝感力》这样描述道:钝感力可以简单理解为“迟钝的力量”。
因为“迟钝”,我们面对生活中的伤痛时更从容不迫,更能坚定地朝着既定的方向前行。周静对这样的处世哲学十分赞同:“外界的纷扰太多了,如果我们太关注他人对自己的评价、看法,或者某个当下遇到的困境等,对此保持钝感,知道它存在而选择放下,我们才能够全身心地投入自己想做的事情中。”
正因如此,周静可以心无旁骛地以“感性”为基调,以“理性”为脉络,投入到自己所热爱的设计创作领域,谱写出华丽动人的篇章。
PART1
访谈故事
感性的理想主义者
“我是一个感性的理想主义者。” 钝感之外,周静这样描述自己。
作为一位建筑专业出身的女性设计师,周静思维里同时存有对空间概念的严谨不苟以及女性独有的细腻和温柔。她用工学思维引领设计,打造出众多具备温度、质感、人文气息的作品。
在当下以男性居多,理性色彩为主导的空间设计领域,女性要如何在激烈的竞争中脱颖而出?周静强调,感性并不是女性设计师独有的优势,设计从人的需求出发,从生活获得灵感,这本就要求设计师具备感受力强,情感细腻甚至敏感的特质。
“我们要做的是,如何平衡感性和理性这两者的关系。对于我来说,这两者的比重旗鼓相当。对于一个空间来说,需要理性地去分析功能性的匹配完善、凝练地表达艺术语言,同时运用女性特有的细腻、柔软的视角观察空间,化身为空间的使用者与维护者,感性地通过转译与注入在地文化精粹,赋予空间以人文意识精神,引起观者的共情与合鸣。”
挖掘在地文化
一方水土养一方人。
在设计的过程中,周静强调在地文化的结合,以叙事的方式去解读空间本身散发出的丰富性、多样性和不确定性。
“每一个项目离不开当地环境、日照、季风、人文历史、传说、风俗习惯的原本状态,每一座城市亦有属于他们自己的人文与性格。”地域人文底蕴在周静的眼里,不枯燥、不过期,是精神与文化在悠久的时间里的积淀与发酵。
在近期的项目——围炉山谷.山清水谈生活馆的设计中,周静带领设计团队将自然简朴的在地性做到了极致。
周静与团队潜心解密漓江山水,并将鲜活的渔火风情,灵动的山水美景谱写进空间交响乐的序曲篇章中,为山谷里的居民打造一座独一无二的围炉生活馆。波浪曲面的天花,让整个空间充满了水的韵律和节奏;在营销中心入门处,米白色大理石背景下,半弧形山水大理石巧妙的模拟了扁舟之形;暖色调的光源亮起,就如同船头那盏忽明忽灭的渔火;洽谈区天窗位置,设计师创新的以渔网作为材质,打造了一个大型的、会呼吸的、具有生命力的环境雕塑...
现代手法,东方精神
设计师并非只是设计一个具体的物、一个单纯形式美的空间,而是营造独特的空间气质与美学体验。
周静谈到,“空间”二字本身已经在诠释其本质:空是虚的部分、间可以是实体的隔断,也可以是若有若无的界限。因此除了利用材质营造空与间之外,仔细研究人的行为动线,如何最大限度运用到自然环境给予的一切,人在这虚空的部分的真实体验如何是周静不断思考的重点。
“设计师是光线的剪裁师,运用不同的设计手法把室外延伸到室内,让光线和空气有系统地、有条理地反馈到空间,使室内随着自然环境变化而层次迭变。”
空间有声,自不必言。
作为设计师,周静无疑是聪敏睿智的,她将女性的特质、能量与所识所悟所长相结合,并始终以满腔的热忱和不被外界干扰的专注态度,在建筑和空间里不断探索多变的美学符号,以一个个带有浓烈个人标签的作品,向世人诠释着设计的温度与价值。
PART2
访谈精粹
记者:您所说的“它指向温暖,有共情能力的空间。无论科技怎么发达, 无论设计做得多棒,永远都要回归到人的情感这个层面上来。”但无论时代怎样发展或进步,人的情感是没有多少进化的,表达情感的艺术手段也没高明多少。是不是说我们其实是在不断的重复自己或前人呢?有创新和探索吗?
周静:最近有两部大火电影《你好,李桓英》和《我的姐姐》,从情感的角度,分别传达了母女之情和姐弟之情,从更深的角度来看,是对女性问题的反映和思考。事实上,之前的影视作品中也有反映类似情感诉求的故事,但是你会看到思考的深度和广度是在不断进步的。
从古至今,人类的感情无外乎是亲情、爱情、友情这几种,不管哪个时代人们对这些情感的需求都是不可轻视的,正如马斯洛的基本需求理论中归属与爱的需要就落在了金字塔的较高位置。但是你会发现,随着经济的发展和人们生活水平的提高,人们对这些情感的诉求是越来越强,越来越清晰的。所以针对人们需求的变化,设计师也会不断思考和探索如何打造出有温度的、能与人的情感链接的空间。
记者:人类发展到今天,可能剩下两个东西是非常了不起的:一个是科技,一个是美学。科技在重构人的现实秩序,美学在重构人的心智秩序。您怎样理解科技和美学在您的空间作品里的关系?
周静:这两者并不对立也不矛盾。时代的进步,需要设计师迎接求变,在遵循美学基础上,加入科技的元素,会带给我们更舒适便捷的体验。
现代科学技术为人类审美创造的发展带来了新的材料、方式与手段,从而打破了传统创作介质的束缚,为审美创造开拓了前所未有的想象与表现空间。例如国外的极简主义的住宅和办公空间设计,正是因为科技的元素才能把一些基础的收纳和隐藏功能做到了极致,从而能营造出极简的空间可能。
派尚设计作品:青岛卓越天元样板房
我们负责的一个青岛项目,用艺术的力量丰盈空间气韵,同时采用多媒体装置来丰富空间的功能和科技感,勾勒美学和实用并存的当代风尚,兼纳中西审美特性。
记者:您认为美有形式么?
周静:有,但不是固定的,因为美的表达是没有统一标准的,但内在的逻辑和基础一定有共性。可以是热烈奔放的也可以是优雅宁静的。
真正的重点在于,形式美之外我们是否有足够的内容去支撑我们的作品,比如共鸣、体验感、实用性,形和意的结合会让整个空间更加丰富完整。
比如我昨天在深圳当代艺术馆参观的一场艺术展,很多作品从我的个人体验出发是设计偏建筑感,我认为整体的体验是给我带来视觉冲击和情感部分契合共鸣。另外,作品中有些放大体量的凹凸透镜面不锈钢装置,我发现身边有不少年轻人与之互动了很久,并不时开怀大笑。我觉得这是一个更加分的地方,让人有了参与感和体验感,印象会更深刻。
记者:您能具体地聊聊瑞士建筑师Peter Zumthor吗?他的乡村小教堂是否会对您的创作构成直接的影响?
周静:彼得·卒姆托(Peter Zumthor)是一个将建筑、空间、自然和人文糅合得非常完美巧妙的建筑师,他设计的瑞士乡村小教堂确实让我非常深刻,对我有很大的启发意义。一个是大家广为熟知的一把火烧了烤焦的木,取掉内核部分后形成的空间;其实还有一个在更山区的小教堂同样令人印象深刻,他用朴素的设计手法打造出与当地亲近的作品。从外围看就像是个谷仓,教堂矗立在一个较陡峭的斜坡上,屋顶如同树叶状的像两侧倾斜的弧面,脊棱上有一个十字架。屋顶下是一圈窗户,而建筑的主体外部是木瓦如鳞片一样裹满一身,木瓦由于不同的光照就呈现出不同的颜色,向阳面的红棕色,被暴晒的部分则变成了黑色,这部分的处理其实是当地民宅常用的处理方式,而背影面是教堂的门从一侧延伸出来,没有破坏建筑的整体,这些细节设计是非常能引起人们的共鸣。
这是感官与精神体验相结合的空间,我相信Peter Zumthor一定是在现场做设计的,可能蹲在某一点去观察环境的不同变化,前期做足了分析和体验。
我在想如何更好地营造空间可延续的体验感受,首要的依然是人,身处其中的人的切身感受和心灵感知是最重要的,其后才是风格审美的演绎。
记者:如果给年轻的设计师推荐一本必读的书,您会推荐哪本?
周静:路易·康的《静谧与光明》。
现代建筑史上,路易·康(Louis kahn)是一个有着重要意义的建筑师。他改变了现代建筑由其几何形体带来的生冷感,在静谧和光明之间寻求道,赋予普普通通的材料触感和视觉效果。这部作品我读了三遍,文风优美,充满诗意,其中所阐释的设计哲学观启发意义很大。
路易·康视建筑为可度量的物质和不可度量的结合,他用静谧这个字眼代表不可度量的事物,使用光明这个字眼代表可度量的事物。康认为建筑存在于静谧与光明之间的门槛处——也就是他所称的阴影的宝库。他认为伟大的建筑开始于对不可度量的领悟,然后把可度量的当做工具去建造它,当建筑物完成,它带领我们回到了当初对不可度量的领悟中。
PART3
作品赏析
采访后记:什么样的空间能真正打动人心?在周静看来,基于生活享受、精神满足、情感共鸣等多维度诉求,在意识感觉上,对于艺术品质生活的极致追求和人文的精神魅力是相辅相成的。
“我们要营造的,是一个接近居者内心的地方”。
在周静身上,我们能欣喜地感知到,能洞察万物呈现的美,并对设计葆有足够的热忱,用自己的智慧赢得一身光芒的同时,也能照亮、温暖他人的气质品格。当然,这并不是感性女设计师的专属,而是一名优秀设计师应有的自我修养。
- END -
精彩回顾
▲季裕棠 / 如何理解对家庭生活以及纯粹住宅精神思考?(30分钟)
▲全球TOP3酒店设计公司:C C D掌门人郑忠谈顶级设计 (16分钟)
▲琚 宾 解析东西小院 / 淡然无极而众美从之(7分钟)
本文来自微信公众号“云想设计美学”(ID:Yunxiang_Design)。大作社经授权转载,该文观点仅代表作者本人,大作社平台仅提供信息存储空间服务。










