OMA
New York, USA
Eagle + West 住宅楼是纽约布鲁克林滨水区的最新亮点,这是由 OMA 设计的一对阶梯式塔楼,已经初具规模。这两座建筑与一座较小的建筑相伴而生,该建筑高 7 层,被詹姆斯·科恩(James Corner)公司的新海滨景观所包围,令人印象深刻。总的来说,该项目引入了60万平方英尺的住房——总共有745套。更重要的是,该项目为不断增长的社区创造了30,000平方英尺的新公共空间。
该项目为 Greenpoint 的 Eagle Street 和 Dupont Street 提供了点睛之笔,这两条街已经通过该地块延伸至东河边。这个区域现在以一个新的广场和滨水平台的形式向公众开放。住宅塔楼和街道上的干预措施共同预示着该地区后工业化边缘的转变,延长了布鲁克林持续开放的滨水区。
OMA 的 Eagle + West 综合体位于布鲁克林滨水区的最北端,以激活布鲁克林和皇后区之间的新枢纽点。这个独特的位置使居民能够进入热闹和不断增长的 Greenpoint 社区,同时从一个前所未有的角度欣赏到曼哈顿的天际线和布鲁克林的屋顶。
OMA 合伙人Jason Long表示:“Eagle + West反映了Brookfield、Park Tower Group以及设计和施工团队的集体雄心,即创造一个连接过去和未来、室内和室外、城市生活和海滨生活的平台。”这两座塔楼——互补的兄弟姐妹——创造了一个不断变化的存在,使社区和海滨都参与其中。随着人们开始安家,看到这个项目以后的发展将是令人兴奋的。
©John Cole
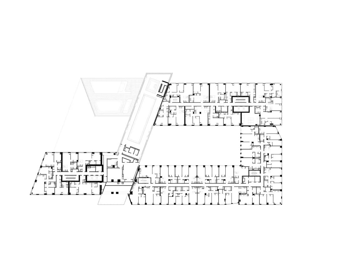
OMA 的建筑师们战略性地塑造了布鲁克林 Eagle + West 的两座塔楼,在每座塔楼中通过扩展和收缩形式以获得最大的效率。它们相互靠拢,又相互远离。四十层的塔楼随着它的上升而变宽,最大限度地扩大了视野,为社区创造了一个戏剧性的面貌。三十层楼的排屋向地面扩大,面向海滨广场。变化的阶梯和悬挑强调了这两座建筑的联系——这两座建筑之间的空隙将它们紧密地联系在一起。
阶梯将塔楼分为七至八层,与邻近建筑的规模相呼应。外立面加强了这种细分,借用了 Greenpoint 联排别墅常见的瓦片覆盖层的设计语言。预制混凝土板的网格由有角度的平面雕刻而成,每个街区的方向交替进行——这是一种动态的浮雕,对太阳的运动做出反应。
42,000平方英尺的设施分布在建筑群的中心,形成一个循环。两层的室外露台模仿了塔楼的变化形式,有角度地切入庭院,并向海滨开放。在它们的上方,一座可以俯瞰曼哈顿天际线的廊桥将两座塔楼连接起来。
©OMA
项目类别:建筑设计
建成时间:2022
建筑面积:80,000㎡
建筑设计:OMA
设计主管:Jason Long
项目主管:Yusef Ali Dennis, Christine Yoon
设计团队:Remy Bertin, Jingyi Bi, Sam Biroscak, Titouan Chapouly, Ken Chongsuwat, Marie-Claude Fares, Yashar Ghasemkhani, Anders Grinde, Wesley LeForce, Chong Ying Pai, Nathan Petty, Andres Rabano, Laylee Salek, Alan Song, Wo Hong Wu , Soojung Yoo, Steven Young, Juan Pablo Zepeda
项目地址:美国,纽约
本文来自微信公众号“OffsetDesign设计偏移”(ID:offsetdesign)。大作社经授权转载,该文观点仅代表作者本人,大作社平台仅提供信息存储空间服务。










