纽约 Canali 男装旗舰店 | Park Associati
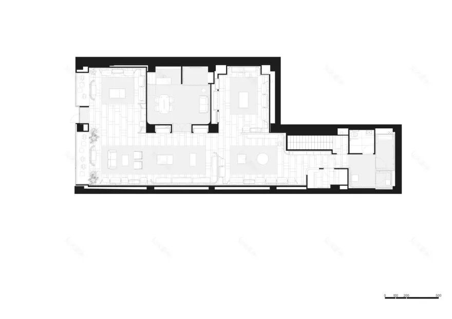
项目地点:美国・纽约
项目设计:Park Associati
设计团队:Filippo Pagliani、Michele Rossi、Davide Perin、Diego Fiori、Stefano Venegoni
项目面积:265 m²
本文来自微信公众号“T5OP设计网”(ID:T5opCom)。大作社经授权转载,该文观点仅代表作者本人,大作社平台仅提供信息存储空间服务。
T5opCom
T5OP设计网是国内最早关注针对服装零售空间设计的网站。于2015年成立公众号,发布一手国内外优质商业空间设计项目;我们有自己成立近20年商业空间装修公司,与国内外众多品牌合作,欢迎合作洽谈。
发表于
项目地点:美国・纽约
项目设计:Park Associati
设计团队:Filippo Pagliani、Michele Rossi、Davide Perin、Diego Fiori、Stefano Venegoni
项目面积:265 m²
微信扫一扫
关注该公众号
: , 。 视频 小程序 赞 ,轻点两下取消赞 在看 ,轻点两下取消在看
本文来自微信公众号“T5OP设计网”(ID:T5opCom)。大作社经授权转载,该文观点仅代表作者本人,大作社平台仅提供信息存储空间服务。
