50 Hudson Yards
纽约曼哈顿最后一处未被开发的黄金地段——Hudson Yards 哈德逊城市广场,最近新添了一栋办公大楼,由福斯特建筑事务所设计完成,为哈德逊河西岸注入一股新的活力。
哈德逊广场凭借富有创新精神的建筑群一跃成为西河岸的城市地标之一,作为美国历史上最大的私人地产项目,聚集了众多国际性商业、酒店、休闲和零售产业。
Related Companies 瑞联集团总部位于纽约,是美国最大的房地产开发企业之一,仅在纽约就有约 53 栋由瑞联开发及经营的大楼,集团旗下管理超过 200 亿美元的物业资产。
哈德逊广场50号塔楼以智能设施为基础,通过高度先进的技术、业务连续性系统和全天候现场安全指挥中心以获得最高水平的安全性与灵活性。
78层的哈德逊广场50号办公楼(50 Hudson Yards)覆盖了整个建设场地,塔楼底部的商铺、餐厅及街道层的交通系统将回馈当地居民,为他们提供便利。
“我们的项目是对哈德逊广场场地的回应,其立面几何形状也尊重并呼应纽约网格街道的特点,这栋建筑拥有美妙的景色和无限的灵活性。“foster + partners创始人兼执行董事长诺曼•福斯特说道。
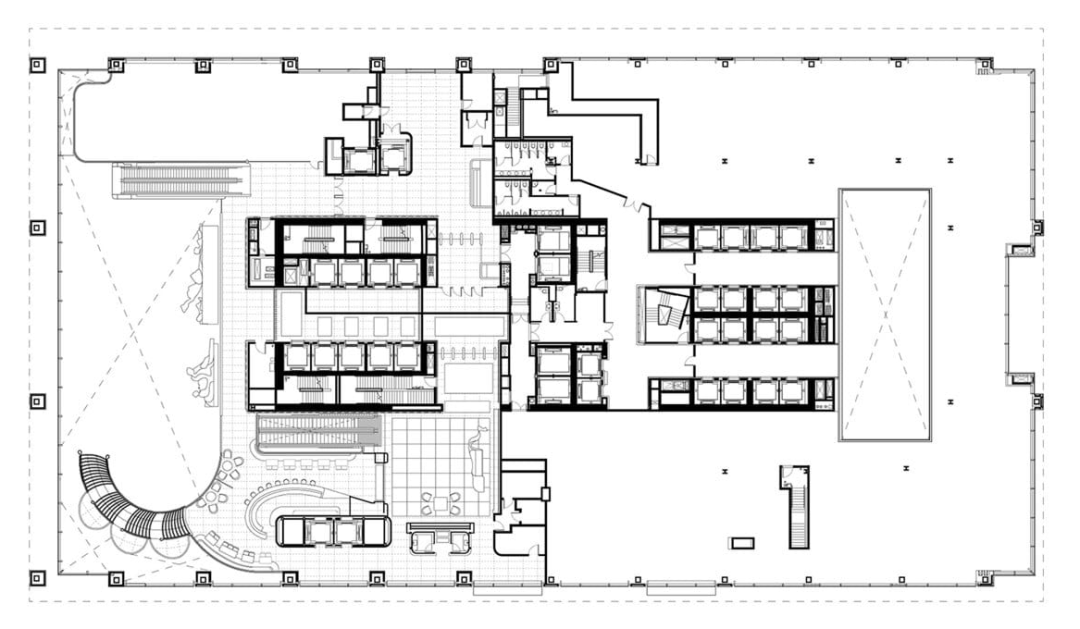
日照充足的首层玻璃空间囊括了丰富的零售商店、高端精品店及各类公共空间,吸引大批游客和居民汇聚于此。
办公大楼的室内设计由 Tony Ingrao 亲力打造,令人赞叹的内饰、纹理、色彩和富有表现力的设计融为一体。
#发布会大堂
墙面两张定制的动态艺术作品由涂漆钢、铝和玻璃纤维共同制成,宽敞高大的大堂平时也可开办各类研讨会、产品发布会或举办小型音乐会。
大堂右侧则通过一座弧形的特色楼梯与二层夹层相互连接,站在楼梯上可以欣赏到高大玻璃幕墙外的景色。
优雅的定制楼梯沿着 Frank Stella 设计的另一个标志性装置——连锁星星雕塑舒展开来。
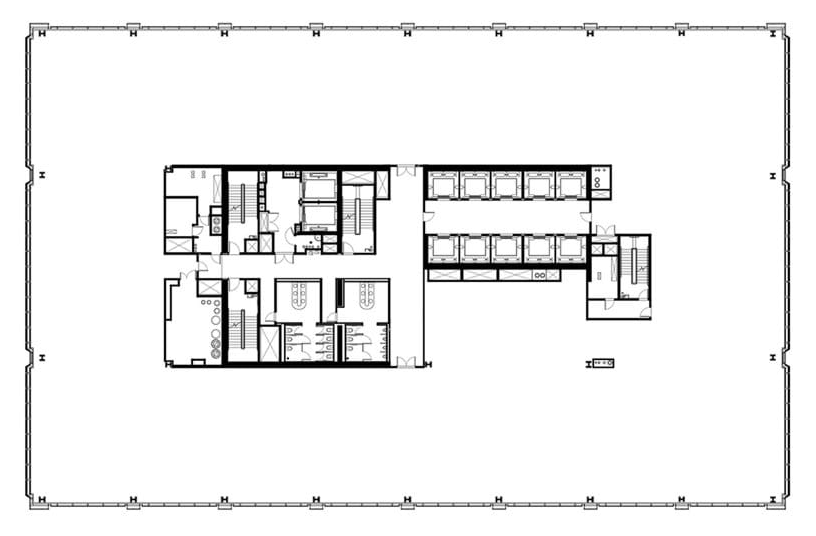
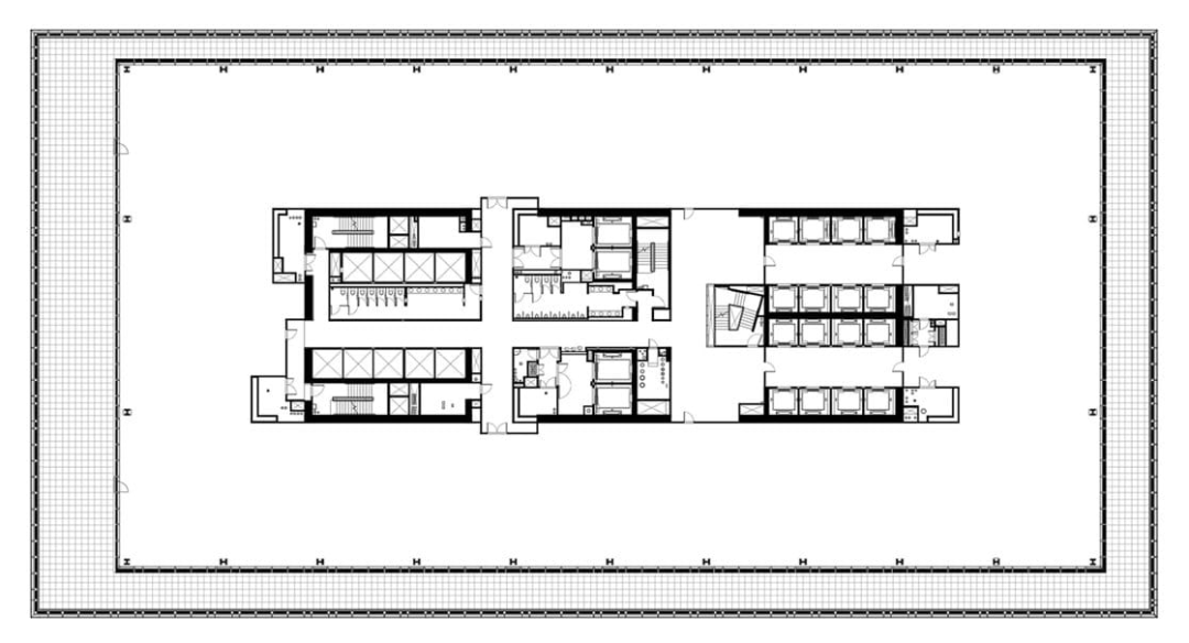
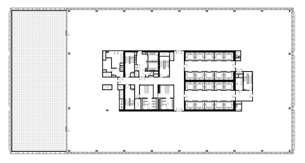
通过最小化建筑物的核心筒及向外推送外围结构,每层形成了宽敞的高质量无柱工作空间,在未来有助于人们根据需求自由灵活地调整布局。
△无柱大开间
△灵活划分办公空间
一侧的休息区墙面拥有整片独特的手工雕刻石灰饰面,底部的人造暖炉为室内持续输出丝丝暖意。
大楼内还设有一间独立的私人酒吧和休息间,其即可作为员工与客户间的社交场合,也可成为员工们工作之余放松身心的好去处。
这座办公塔楼是集低调纽约美学和精湛建造技术于一体的工程杰作,为未来城市的发展提供一种新的的工作和生活方式。
左右滑动浏览立面图
本文来自微信公众号“一起设计”(ID:together-design)。大作社经授权转载,该文观点仅代表作者本人,大作社平台仅提供信息存储空间服务。










