麻吉设计 | 390㎡宁静居所,解读艺术与设计
书桌与钢琴
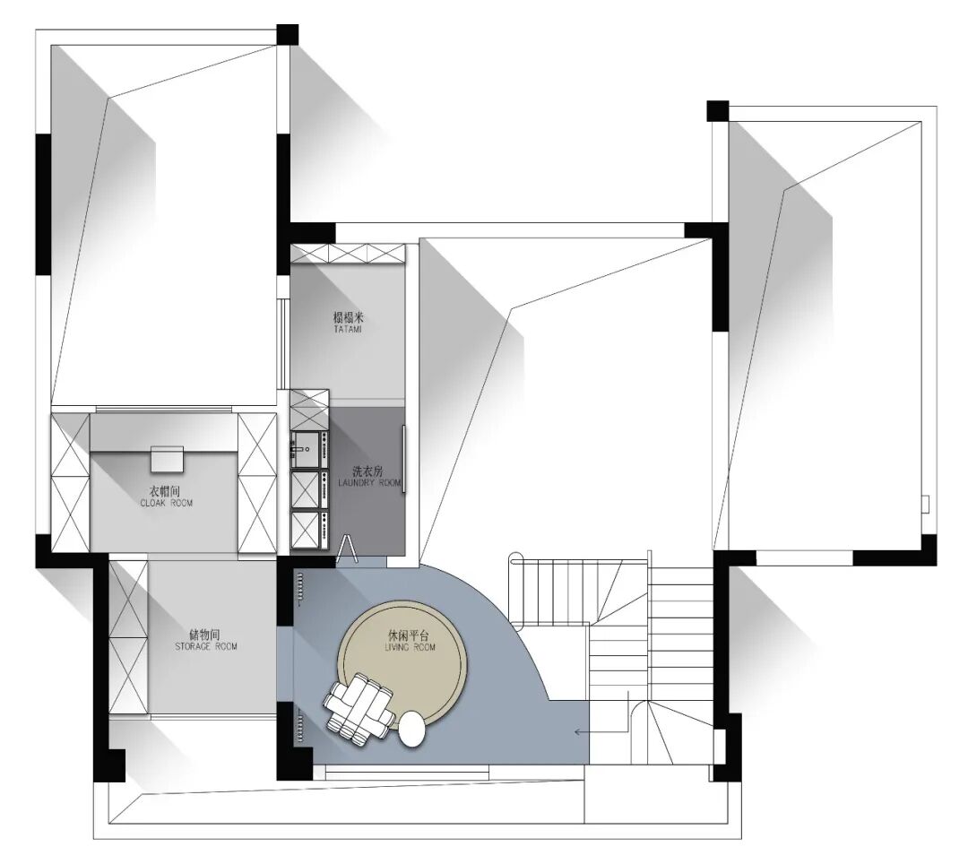
原户型阳台区域(纳入客厅休闲区)
主卧入口与书柜
走廊全景,从玄关看向主卧入口
①:厨房较小,整体功能单一需要优化。
②:主卧室偏小,楼梯位置需要优化。
③:原空间分配不符合功能需求。
④:结构需要进行改造搭建夹层以及阳台外扩。
荣 誉 奖 项
2019 第九届筑巢奖大户型 优秀奖
2019 PCHOUSE AWARD私宅设计大奖 城市榜 TOP10
2019 好好住营造家 提名奖
2019 芒果奖住宅/公寓空间类 住宅创意奖
2020 一兜糖年度设计师TOP100
2020 金堂奖年度杰出住宅公寓空间设计奖
2020 Kapok红棉室内设计奖
2020 PCHOUSE AWARD私宅设计大奖 城市榜 TOP10
联 系 我 们
本文来自微信公众号“M麻吉空间联合设计机构”(ID:MagicDesign1)。大作社经授权转载,该文观点仅代表作者本人,大作社平台仅提供信息存储空间服务。










