*感谢Spacemen Studio对OffsetDesign设计偏移的分享*
Spacemen Studio
Putrajaya, Malaysia
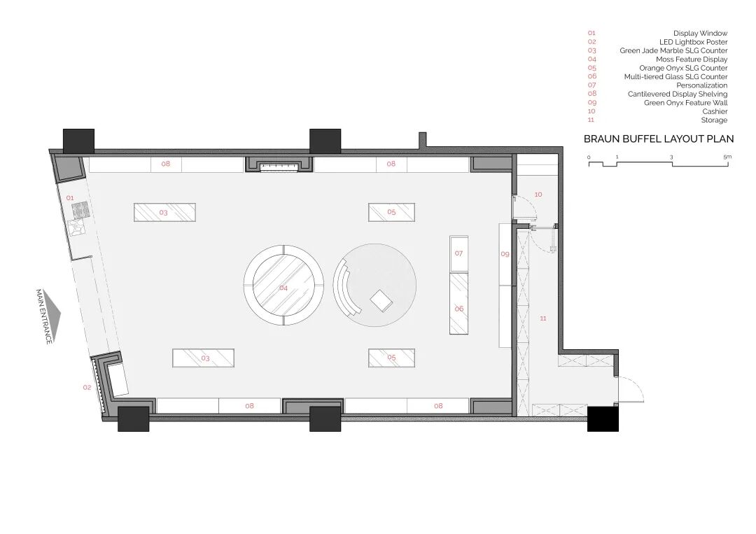
位于马来西亚布城的最新 Braun Buffel 旗舰店由 Spacemen Studio操刀设计,并由此开启名为 “Urban Bloom”(城事绽放)的概念空间系列。出于实验目的,设计的初衷是希望尝试将人性化设计置于设计内涵之前,创造一个介于画廊和实验室之间并具有视觉冲击力的概念空间,以此来达到吸引人们进入商店的效果。
该空间摒弃传统的轻奢的设计理念,从而追求极致的极简主义。中央摆设围绕一棵高至天花板的真树进行抽象演绎,给人带来一种身处实验室的科幻感。在商店的开放式布局中,覆盖在青苔下的装置呈现出自然的轮廓,给予人们片刻的宁静,建筑与雕塑形式融为一体,赋予空间独特的魅力。
在空间中的墙面大面积使用了淡色石膏,而中心则是由宝石组成的玛瑙墙和柜台,成为吸引目光的焦点,让产品在购物者面前脱颖而出。
©David Yeow Photography
©David Yeow Photography
©David Yeow Photography
商店的后端是一个全透明的玻璃展示柜搭配清透翠绿的玛瑙特色墙。顾客等候区选用两件定制家具:一把由同样的绿色缟玛瑙制成的弧形长凳和一把橡木扶手椅。
©David Yeow Photography
自然与艺术的有机结合,高雅与未来感共存的美学重新诠释了未来的零售品牌店内环境,给客户带来引人入胜,身临其境的沉浸式体验。
©David Yeow Photography
项目类别:零售空间
建成时间:2022
建筑面积:180㎡
室内设计:Spacemen Studio
设计团队:陈爱华,唐伟民,张菲莉,倪国华,周文杰
项目地址:马来西亚,布城
项目业主:Braun Buffel
韩国 Time to B 咖啡馆 — 将转瞬即逝化作永恒|NONE SPACE
武汉高合旗舰体验中心 — 未来宇宙穿越之径|INGROUP
奥地利采尔湖之家 — 将复杂丢弃在阿尔卑斯山|Steiner Architecture
本文来自微信公众号“OffsetDesign设计偏移”(ID:offsetdesign)。大作社经授权转载,该文观点仅代表作者本人,大作社平台仅提供信息存储空间服务。










