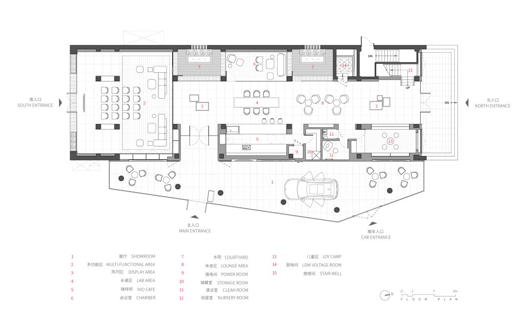
△ 隐藏的壁柜里存放有活动隔断,
在举办瑜伽课或分享会时能把多功能厅独立分隔出来
▼ 延伸阅读
本文来自微信公众号“designcool设计酷”(ID:designcool18)。大作社经授权转载,该文观点仅代表作者本人,大作社平台仅提供信息存储空间服务。
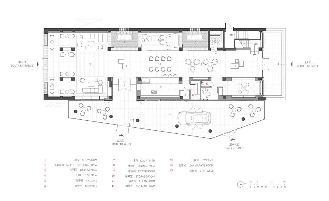
△ 隐藏的壁柜里存放有活动隔断,
在举办瑜伽课或分享会时能把多功能厅独立分隔出来
本文来自微信公众号“designcool设计酷”(ID:designcool18)。大作社经授权转载,该文观点仅代表作者本人,大作社平台仅提供信息存储空间服务。
