Novaplan 位于意大利当地最受欢迎的海滨度假城市之一耶索洛郊区,是一个九栋规则三角别墅的私人精品住宅开发项目,具有前瞻性的开发商业主联合 RBA 建筑师,于 2011 年开始对项目进行节能建筑私宅应用化的探讨,追求实现高标准的可持续建筑技术与市场造价,以及大健康人居环境的完美融合。
该建筑群由九栋独立的别墅组成,通过大型步行区连接市政绿地,九栋独立别墅通过三角造型,立面开窗,建筑高度与朝向的规划设计,保证了每座建筑之间的采光与景观最大化,也保证了保证了每一户住宅在冬季对太阳光的最大化储能。
新风系统模拟▽
社区光照分析▽
除了关注设计的原创度,设计的细节与建造的工程,当然这些是理所当然的基础,在此之上,我们更加反思新建建筑如何再城市人居环境中更友好地存在。
室内会客厅▽
如果让每个人描绘理想的生活环境,可能很容易产生共鸣,我们需要开阔自由的空间,需要情感交流,需要漂亮的街道,需要繁茂得恰到好处得植物。
这不是一种盲目的理想状态,这是从几百个世纪中人的行为与城市尺度关系的演化与磨合中得来的,是一种最典型又最原始的向往。
而在当下这个城市的建造者同样关注经济效益与制造成本的情况下,我们是否仍然有可能通过新的设计语言,更全面的规划概念以及新的技术研发与应用,既不违背城市现代化的生长,又提供一处自然舒适的住所。
能耗图表▽
左右滑动浏览项目图片
剖面图&立面图▽
左右滑动浏览图片
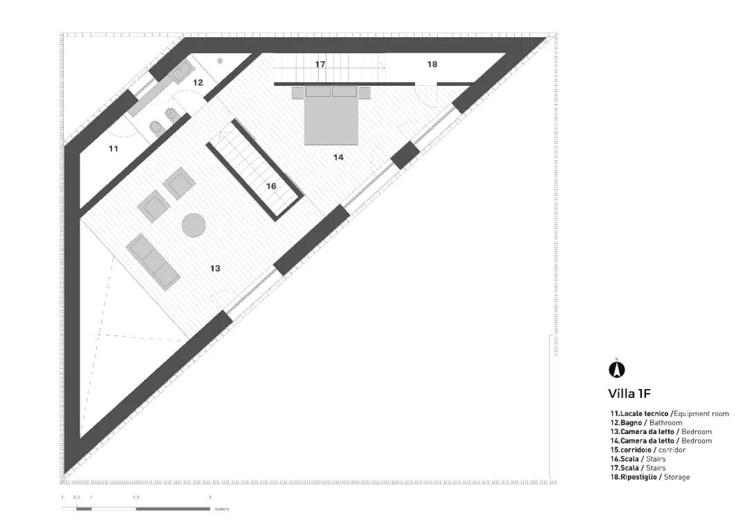
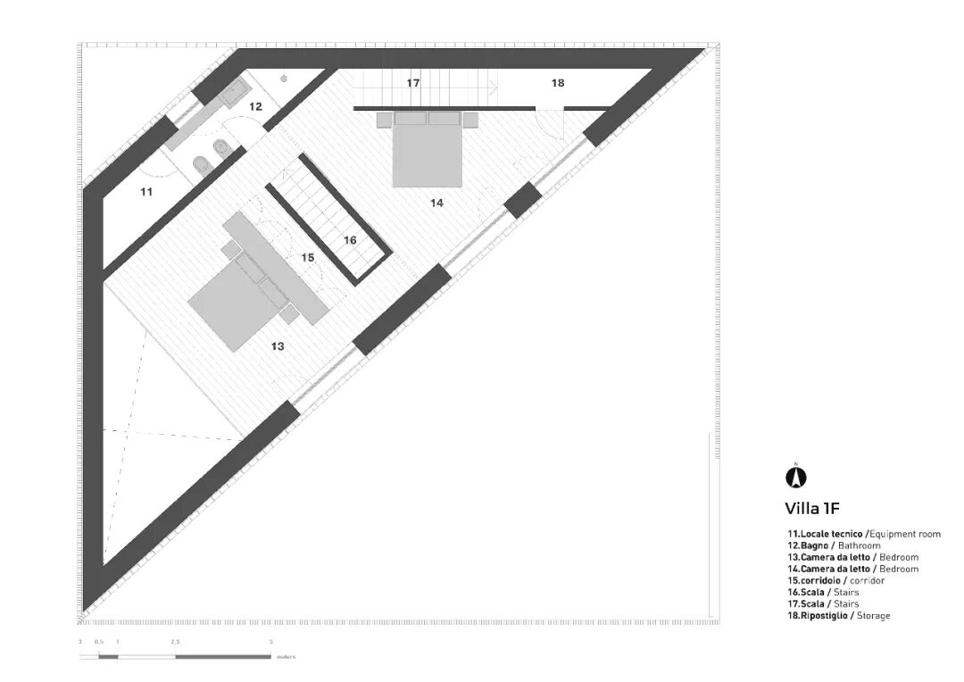
项目信息
项目地址:耶索洛,意大利
项目类型:建筑设计,室内设计,可持续设计
建筑面积:305㎡
单体体量:783㎡
设计时间:2011至今
建筑摄影:Marci Zanta
特别提示:CasaClima欧洲绿色建筑机构认证金奖项目
▼一起设计生活馆
点点赞
点在看
本文来自微信公众号“一起设计”(ID:together-design)。大作社经授权转载,该文观点仅代表作者本人,大作社平台仅提供信息存储空间服务。










